Bildegalleri

GIMLEKOLLEN/BORGHILDS VEI
Lekker ny høykvalitets enebolig med alt på en flate og nydelig sjøutsikt-Solrik opparbeidet tomt-Barnevennlig i blindvei
Prisantydning10 450 000 kr
Nøkkelinfo
- Boligtype
- Enebolig
- Eieform
- Eier (Selveier)
- Soverom
- 6
- Internt bruksareal
- 153 m² (BRA-i)
- Bruksareal
- 184 m²
- Eksternt bruksareal
- 31 m² (BRA-e)
- Balkong/Terrasse
- 56 m² (TBA)
- Etasje
- 1
- Byggeår
- 2025
- Energimerking
- B - Rød
- Rom
- 7
- Tomteareal
- 450 m² (eiet)
Fasiliteter
Balkong/Terrasse
Barnevennlig
Bredbåndstilknytning
Garasje/P-plass
Hage
Offentlig vann/kloakk
Parkett
Peis/Ildsted
Rolig
Sentralt
Utsikt
Bademulighet
Turterreng
Lademulighet
Balansert ventilasjon
Visning
torsdag, 08. januar
16:00 – 17:00
Eiendomsmegler Norge sine visninger har påmelding. Påmelding gjøres enkelt ved å benytte knappen under. Ta kontakt med megler dersom oppsatt tidspunkt ikke passer. Det vil ikke bli avholdt visning uten påmelding, frist for påmelding er senest kl. 12.00 på visningsdagen. Husk å laste ned salgsoppgaven digitalt før visning. Velkommen til en hyggelig visning!
VisningspåmeldingOm boligen
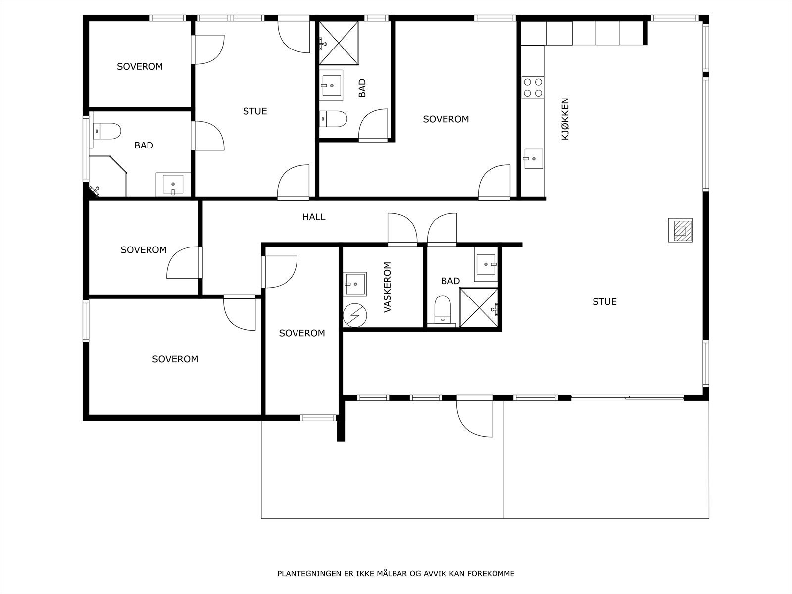
Lekker nyoppført enebolig med eksklusive materialvalg og med nydelig sjøutsikt både innenfra og fra terrasse. Det spesielle med boligen er den gode takhøyden og de utvalgte materialvalgene, samt de store vindusflatene mot den flotte utsikten. Fantastiske solforhold mot øst, syd, vest og nord sikrer sol fra tidlig morgen til sen kveld.
Boligen er bygget med eksklusive materialvalg og har en takhøyde på hele 4,9 meter i stue/kjøkken.
Innhold:
Entrè, stue/kjøkken, gang, 3 lekre flislagte bad/wc, vaskerom, tv-stue/soverom 6 med egen inngang og opplegg til kjøkken og 5 soverom
Mulighet for praktikantdel. Klargjort for kjøkken i tv-stue
Lekkert kjøkken og 3 lekre bad
Bortsettingsloft.
Flott opparbeidet tomt.
Lave omkostninger: Kun kr 31.500,- i dok.avgift.
MEGET EKSKLUSIVT!
BØR SEES!
Boligen er bygget med eksklusive materialvalg og har en takhøyde på hele 4,9 meter i stue/kjøkken.
Innhold:
Entrè, stue/kjøkken, gang, 3 lekre flislagte bad/wc, vaskerom, tv-stue/soverom 6 med egen inngang og opplegg til kjøkken og 5 soverom
Mulighet for praktikantdel. Klargjort for kjøkken i tv-stue
Lekkert kjøkken og 3 lekre bad
Bortsettingsloft.
Flott opparbeidet tomt.
Lave omkostninger: Kun kr 31.500,- i dok.avgift.
MEGET EKSKLUSIVT!
BØR SEES!
NB: Knappen for å vise hele beskrivelsen har kun en visuell effekt.
NB: Knappen for å vise hele beskrivelsen har kun en visuell effekt.
Salgsoppgaven beskriver vesentlig og lovpålagt informasjon om eiendommen
Se komplett salgsoppgaveNyttige lenker
Nærområdet
Eiendomsmegler Norge Kristiansand
Det viktigste stedet i Norge er der du bor
Annonseinformasjon
| FINN-kode | 443397762 |
|---|---|
| Sist endret | 29. des. 2025 09:47 |
| Referanse | 50250121 |
Annonsene kan være mangelfulle i forhold til lovpålagt opplysningsplikt. Før bindende avtale inngås oppfordres interessenter til å innhente komplett informasjon fra meglerforetaket, selger eller utleier.


















































