Bildegalleri

EiendomsMegler1 v/Eirik Hanekamhaug presenterer leilighet i Verven 10
Stavanger Øst
Flott leilighet i 3. etasje med 2 soverom. Solrik balkong med utsikt. Heis. Nærhet til turområder og sentrum
Prisantydning4 090 000 kr
Nøkkelinfo
- Boligtype
- Leilighet
- Eieform
- Eier (Selveier)
- Soverom
- 2
- Internt bruksareal
- 68 m² (BRA-i)
- Bruksareal
- 74 m²
- Eksternt bruksareal
- 6 m² (BRA-e)
- Balkong/Terrasse
- 13 m² (TBA)
- Etasje
- 3
- Byggeår
- 2003
- Energimerking
- D - Mørkegrønn
- Rom
- 3
- Tomteareal
- 730 m² (eiet)
Fasiliteter
Balkong/Terrasse
Barnevennlig
Bredbåndstilknytning
Garasje/P-plass
Heis
Kabel-TV
Offentlig vann/kloakk
Parkett
Peis/Ildsted
Sentralt
Utsikt
Bademulighet
Fiskemulighet
Lademulighet
Visning
onsdag, 07. januar
16:00 – 16:30
Ønsker du å delta på visningen ber vi deg melde deg på slik at vi vet at du kommer. Da kan vi bistå alle best mulig og gi deg tiden du trenger på visningen. Kontakt gjerne megler før visning hvis du har spørsmål. Visningen avholdes bare dersom det er påmeldte. Hvis det ikke er oppsatt visningstidspunkt eller tidspunkt ikke passer, kontakt megler.
VisningspåmeldingOm boligen
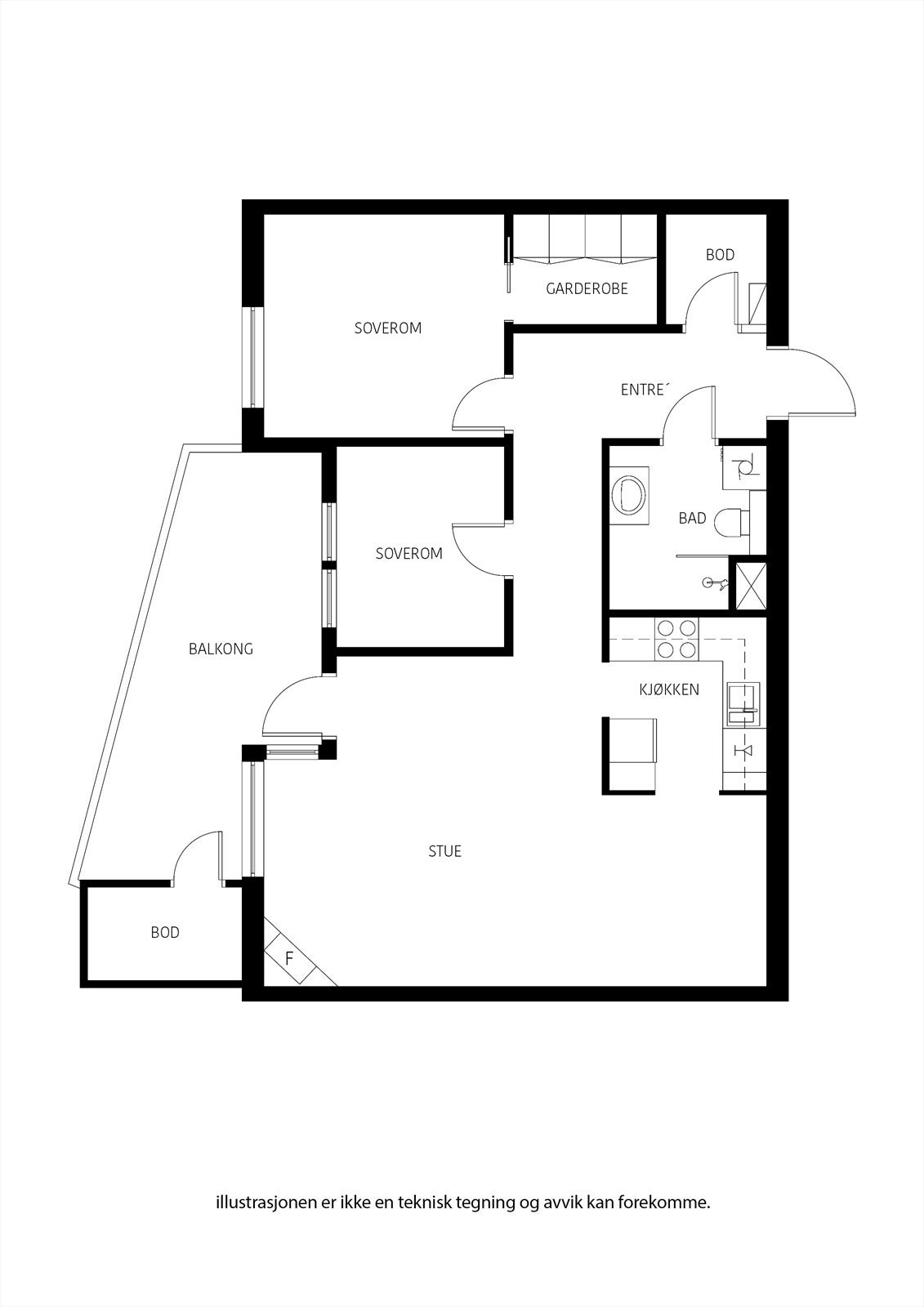
Verven 10 er en tiltalende leilighet i 3. etasje og fremstår med tilnærmet original standard. Parkettgulv binder sammen alle oppholdsrommene i boligen og byr på en god planløsning med entré, 2 soverom (ett med walk-in closet), bod, helfliset bad og stue/kjøkken i delvis åpen løsning med store vindusflater. Fra stuen har en utgang til en romslig sørvendt balkong på ca 13m2 med utsikt og god kontakt med omgivelsene. Bod ved balkong.
- Vannbåren fjernvarme
- Gasspeis
- Heis
- Bod i garasje
- Poolparkering i garasje med 80% dekning
Denne boligen er perfekt for deg som ønsker å bo sentralt. En meget attraktiv beliggenhet med kort avstand til det du måtte trenge i hverdagen. Området er preget av sin beliggenhet rett ved sjøen, med flotte turområder og bryggeanlegg.
NB: Knappen for å vise hele beskrivelsen har kun en visuell effekt.
NB: Knappen for å vise hele beskrivelsen har kun en visuell effekt.
Salgsoppgaven beskriver vesentlig og lovpålagt informasjon om eiendommen
Se komplett salgsoppgaveNyttige lenker
Nærområdet
EiendomsMegler 1 Mariero
En del av Sparebank 1 Sør-Norge
Annonseinformasjon
| FINN-kode | 443347523 |
|---|---|
| Sist endret | 29. des. 2025 11:17 |
| Referanse | 2206250257 |
Annonsene kan være mangelfulle i forhold til lovpålagt opplysningsplikt. Før bindende avtale inngås oppfordres interessenter til å innhente komplett informasjon fra meglerforetaket, selger eller utleier.





































