Bildegalleri

Meglerhuset & Partners har gleden av å presentere Valbrottveien 12A.
Påkostet vertikalt delt tomannsbolig - Sentral beliggenhet på Åssiden - Gode solforhold
Nøkkelinfo
- Boligtype
- Tomannsbolig
- Eieform
- Andel
- Soverom
- 4
- Internt bruksareal
- 124 m² (BRA-i)
- Bruksareal
- 124 m²
- Balkong/Terrasse
- 67 m² (TBA)
- Etasje
- 3
- Byggeår
- 1958
- Energimerking
- G - Rød
- Tomt
- Eiet
Fasiliteter
Om boligen
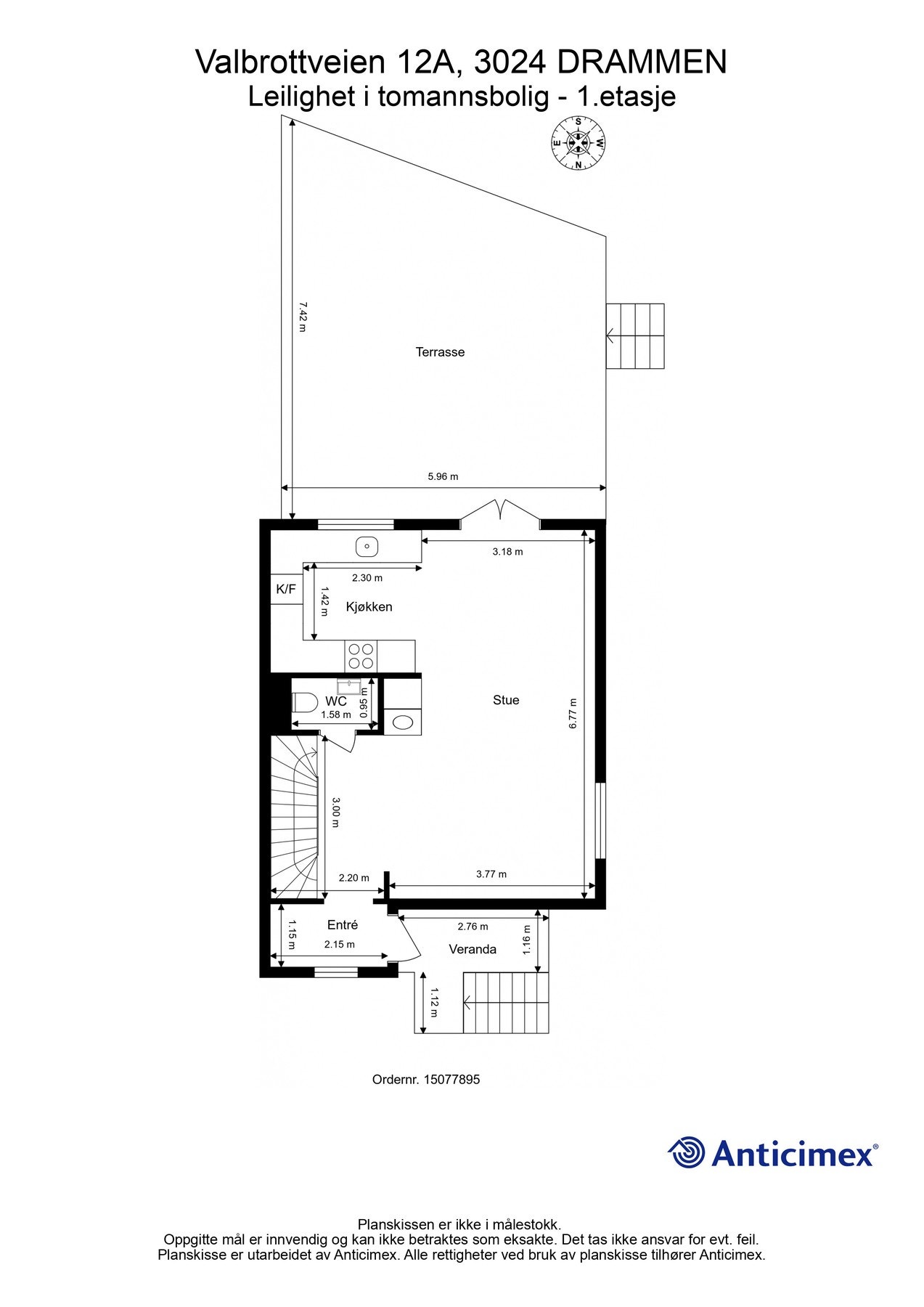
Boligen har fire soverom, to delikate bad samt separat toalettrom, og byr på høy komfort i hverdagen. Rommene er lyse med gode vindusflater og rikelig med naturlig lys. Selger opplyser at det er sendt inn søknad til kommunen om bruksendring av underetasjen, herunder godkjenning av hybel.
Eiendommen ligger i et rolig og attraktivt boligområde på Åssiden, skjermet for gjennomgangstrafikk og med kort vei til skoler, barnehager, dagligvarebutikker og flotte tur- og rekreasjonsområder. En lettstelt og familievennlig bolig med god beliggenhet og moderne standard.
Salgsoppgaven beskriver vesentlig og lovpålagt informasjon om eiendommen
Se komplett salgsoppgaveNærområdet
Meglerhuset & Partners Drammen
Prisstatistikk
Valbrottveien 12A
på annonsen
prisantydning per kvadratmeter
Prisfordeling
Pris per m² ligger 4 935 kr over snittet for tomannsboliger i Gamle Drammen.
Grafen viser antall tomannsboliger solgt i Gamle Drammen siste året fordelt på pris per m² - totalt 137 tomannsboliger
Antall boliger
Kvadratmeterpris tilsvarer prisantydning pluss fellesgjeld per kvadratmeter (p-rom eller BRA-i). Prisene i grafen er avrundet til nærmeste 1000 kr.
Lignende boliger til salgs






Herskapelig og innholdsrik villa m/godkjent utleiedel | Solrike uteområder | Dobbelgarasje | Attraktivt og barnevennlig


Sankthanshaugen - Praktfull og særegen villaeiendom med fjordutsikt og lang solgang


Energieffektiv 3-roms sentrumsleilighet med to terrasser | Høy standard | Nær marka | Felles takterrasse | Garasje
Annonseinformasjon
| FINN-kode | 443319704 |
|---|---|
| Sist endret | 08. jan. 2026 11:34 |
| Referanse | 10251002 |
Annonsene kan være mangelfulle i forhold til lovpålagt opplysningsplikt. Før bindende avtale inngås oppfordres interessenter til å innhente komplett informasjon fra meglerforetaket, selger eller utleier.






























