Bildegalleri

Velkommen til Myklegardgata 2B - Presentert av Eiendomsmegler Krogsveen v/Emilie Lie! Foto: Peter Futo.
Gamlebyen
Supersjarmerende 3-roms leilighet med klassiske detaljer. Oppussingsbehov. Vestvendt balkong. Peis. Gjennomgående.
Prisantydning5 300 000 kr
Nøkkelinfo
- Boligtype
- Leilighet
- Eieform
- Eier (Selveier)
- Soverom
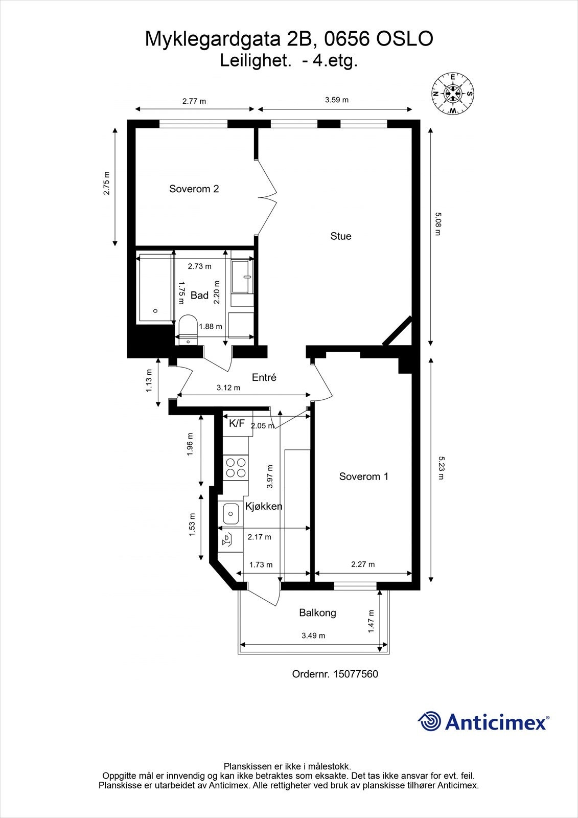
- 2
- Internt bruksareal
- 61 m² (BRA-i)
- Bruksareal
- 74 m²
- Eksternt bruksareal
- 13 m² (BRA-e)
- Balkong/Terrasse
- 5 m² (TBA)
- Etasje
- 4
- Byggeår
- 1902
- Energimerking
- F - Rød
- Rom
- 3
- Tomteareal
- 518 m² (eiet)
Fasiliteter
Balkong/Terrasse
Barnevennlig
Bredbåndstilknytning
Kjæledyr tillatt
Offentlig vann/kloakk
Peis/Ildsted
Rolig
Sentralt
Turterreng
Visning
søndag, 04. januar
13:30 – 14:15
tirsdag, 06. januar
16:30 – 17:15
For å delta på visning, ber vi om at du melder deg på. Da sikrer vi at du får nødvendig informasjon og at det er satt av tilstrekkelig med tid. Kontakt megler dersom annet tidspunkt ønskes. Husk å lese salgsoppgaven før visningen, så du stiller forberedt.
Ønsker du kun å bli holdt orientert, kan du fra eiendommens hjemmeside få varsel om solgtpris, eller kontakte megler.
VisningspåmeldingOm boligen
Velkommen til Myklegardgata 2B!
Dette er en lys 3-romsleilighet med attraktiv beliggenhet i Gamlebyen. Leiligheten har vakre, klassiske detaljer som stukkatur og rosett, og en god planløsning som består av entré, to soverom, bad, samt kjøkken og stue. Fra kjøkkenet har man utgang til en herlig balkong.
Leiligheten har oppussingsbehov, perfekt om man vil sette sitt eget preg på boligen!
Fra leiligheten har du kort vei til butikker, kafeer, restauranter og flotte turområder.
Noen høydepunkter:
Dette er en lys 3-romsleilighet med attraktiv beliggenhet i Gamlebyen. Leiligheten har vakre, klassiske detaljer som stukkatur og rosett, og en god planløsning som består av entré, to soverom, bad, samt kjøkken og stue. Fra kjøkkenet har man utgang til en herlig balkong.
Leiligheten har oppussingsbehov, perfekt om man vil sette sitt eget preg på boligen!
Fra leiligheten har du kort vei til butikker, kafeer, restauranter og flotte turområder.
Noen høydepunkter:
- Sentral og attraktiv beliggenhet i rolig område
- Nydelig vestvendt balkong på 5 kvm
- Flott utsyn og gode solforhold
- Vakre vinduer, klassiske dører og stukkatur
- Originalt gulv
- Peis
- Veldrevet sameie
- Trivelig bakgård
Velkommen til visning!
NB: Knappen for å vise hele beskrivelsen har kun en visuell effekt.
NB: Knappen for å vise hele beskrivelsen har kun en visuell effekt.
Salgsoppgaven beskriver vesentlig og lovpålagt informasjon om eiendommen
Se komplett salgsoppgaveNyttige lenker
Nærområdet
Krogsveen Grünerløkka
Velkommen til en enklere boligreise.
Annonseinformasjon
| FINN-kode | 443209741 |
|---|---|
| Sist endret | 29. des. 2025 07:39 |
| Referanse | KR42.2554 |
Annonsene kan være mangelfulle i forhold til lovpålagt opplysningsplikt. Før bindende avtale inngås oppfordres interessenter til å innhente komplett informasjon fra meglerforetaket, selger eller utleier.






































