Bildegalleri

EiendomsMegler 1 ved Adrian Dyrstad har gleden av å presentere Hyllveien 15 D!
Sverresborg
NYHET | Innholdsrikt enderekkehus beliggende i enden av blindgate | Pent opparbeidet hage med drivhus | Garasje/verksted
Prisantydning7 190 000 kr
Nøkkelinfo
- Boligtype
- Rekkehus
- Eieform
- Eier (Selveier)
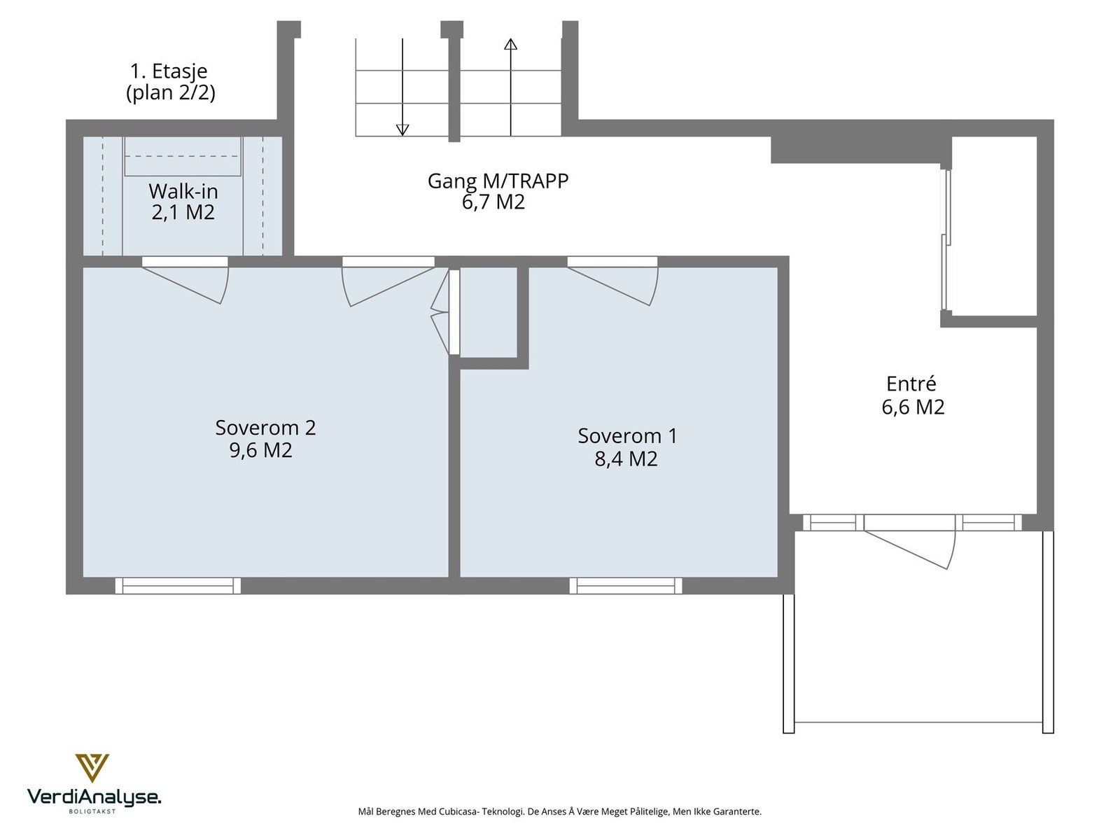
- Soverom
- 3
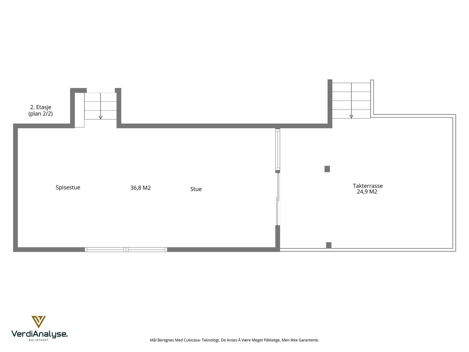
- Internt bruksareal
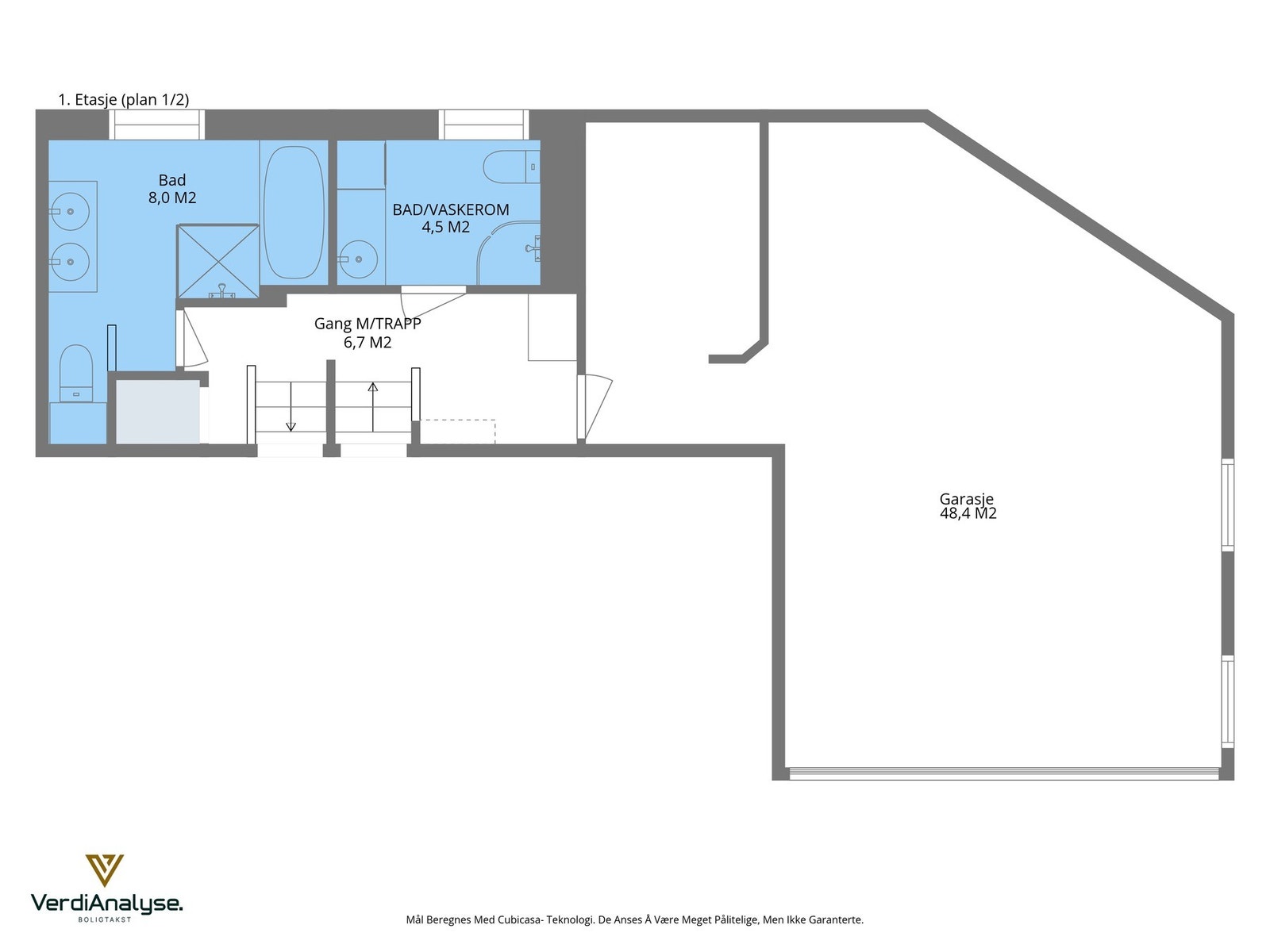
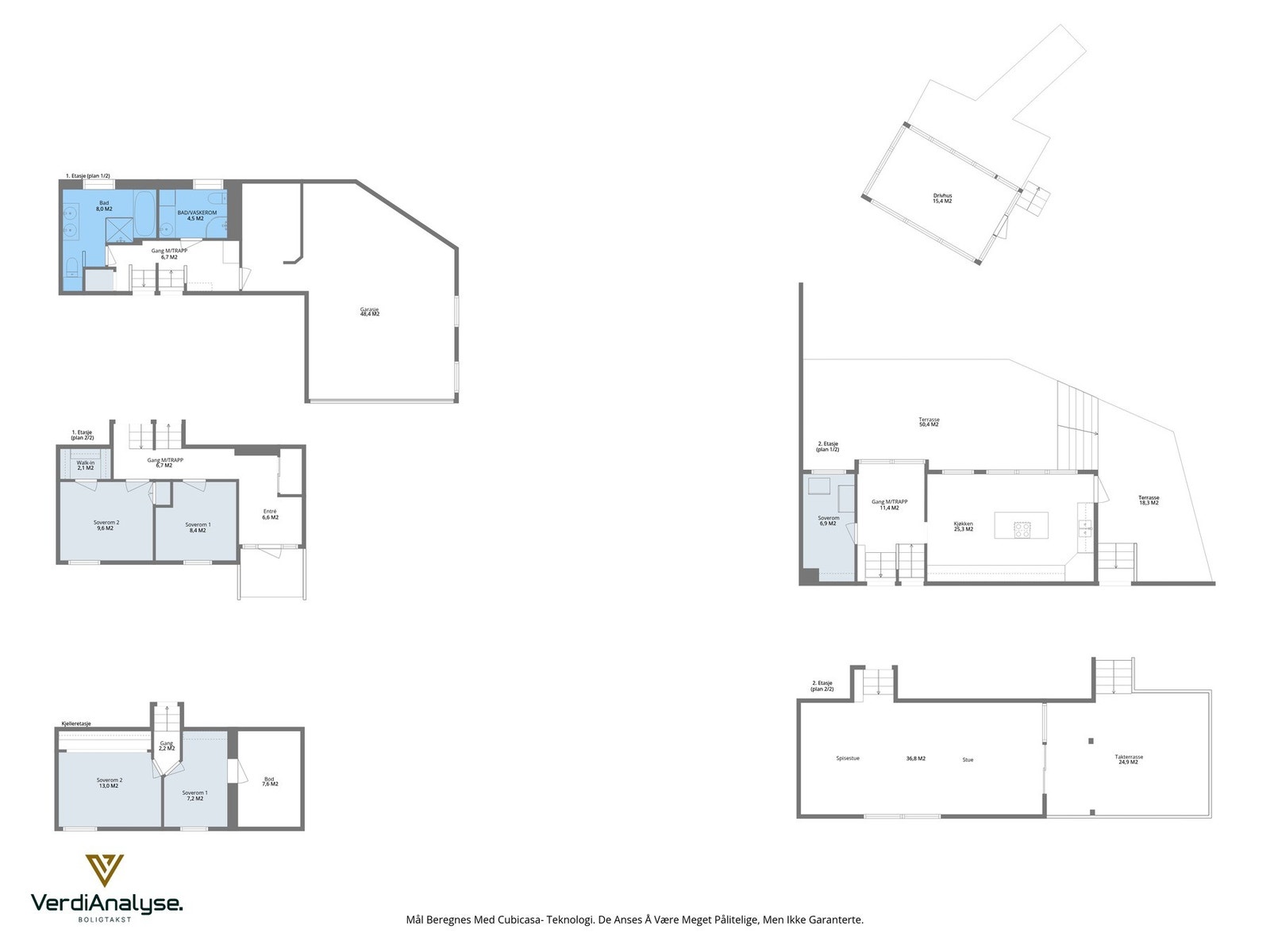
- 223 m² (BRA-i)
- Bruksareal
- 229 m²
- Eksternt bruksareal
- 6 m² (BRA-e)
- Balkong/Terrasse
- 93 m² (TBA)
- Byggeår
- 1956
- Energimerking
- F - Oransje
- Rom
- 6
- Tomteareal
- 490 m² (eiet)
Fasiliteter
Barnevennlig
Balkong/Terrasse
Garasje/P-plass
Kabel-TV
Offentlig vann/kloakk
Turterreng
Utsikt
Bredbåndstilknytning
Rolig
Visning
tirsdag, 13. januar
15:00 – 16:00
Våre visninger har påmelding. Dette gjør vi for å kunne yte bedre service for våre kunder. Verdifullt for boligkjøper og for oss. Vi anbefaler at salgsoppgaven lastes ned digitalt før visning, og ring oss gjerne på forhånd for spørsmål om boligen. Passer ikke angitt tidspunkt, ta kontakt så finner vi en løsning. Skulle det mot formodning ikke være påmeldte til angitt visningstidspunkt vil ikke visning bli gjennomført.
Om boligen
EiendomsMegler 1 ved Adrian Dyrstad har gleden av å presentere Hyllveien 15 D - et stort og innholdsrikt enderekkehus med mange attraktive kvaliteter!
Her får du en bolig som kombinerer sentral beliggenhet med rolige omgivelser uten trafikk og støy. Perfekt for deg som ønsker kort vei til det meste, men samtidig nærhet til naturen og flotte turmuligheter.
Kvaliteter verdt å fremheve:
- Stor og lys stue med rikelig gjennomlys
- Kjøkken fra 2007 med god størrelse og praktiske løsninger
- Bad fra 2013 med både dusjsone og badekar
- Praktisk vaskerom fra 2013 med toalett, servant og dusj
- Flere oppholdssoner ute med optimale solforhold
- Pent opparbeidet hage med frodig beplantning og stort drivhus med sittesone og arbeidsbenk
- Garasje/verksted på hele 48,4 m² - perfekt for bil og hobby
- Umiddelbar tilgang til turstier og Theisendammen som nærmeste nabo
- Endebeliggenhet i blindgate - ingen gjennomgangstrafikk
Her får du en bolig som kombinerer sentral beliggenhet med rolige omgivelser uten trafikk og støy. Perfekt for deg som ønsker kort vei til det meste, men samtidig nærhet til naturen og flotte turmuligheter.
Kvaliteter verdt å fremheve:
- Stor og lys stue med rikelig gjennomlys
- Kjøkken fra 2007 med god størrelse og praktiske løsninger
- Bad fra 2013 med både dusjsone og badekar
- Praktisk vaskerom fra 2013 med toalett, servant og dusj
- Flere oppholdssoner ute med optimale solforhold
- Pent opparbeidet hage med frodig beplantning og stort drivhus med sittesone og arbeidsbenk
- Garasje/verksted på hele 48,4 m² - perfekt for bil og hobby
- Umiddelbar tilgang til turstier og Theisendammen som nærmeste nabo
- Endebeliggenhet i blindgate - ingen gjennomgangstrafikk
NB: Knappen for å vise hele beskrivelsen har kun en visuell effekt.
NB: Knappen for å vise hele beskrivelsen har kun en visuell effekt.
Salgsoppgaven beskriver vesentlig og lovpålagt informasjon om eiendommen
Se komplett salgsoppgaveNyttige lenker
Nærområdet
EiendomsMegler 1 Valentinlyst
Vi loser deg trygt gjennom hele boligsalget
Annonseinformasjon
| FINN-kode | 443020173 |
|---|---|
| Sist endret | 31. des. 2025 15:12 |
| Referanse | 34250172 |
Annonsene kan være mangelfulle i forhold til lovpålagt opplysningsplikt. Før bindende avtale inngås oppfordres interessenter til å innhente komplett informasjon fra meglerforetaket, selger eller utleier.




























































