Bildegalleri

Velkommen til Olaf Bulls vei 11A, presentert av Henrik Munkvold v/EIE Røa, Skøyen og Ullern! Foto: Rekyl Foto (Arne N. Schram)
Solgt
Holmenkollens solside
Fantastisk 4-R utsiktsleilighet| Vestendt terrasse m/magisk utsikt & gode solforhold | Garasje m/lader | V.vann inkl.
Prisantydning8 250 000 kr
Nøkkelinfo
- Boligtype
- Leilighet
- Eieform
- Andel
- Soverom
- 3
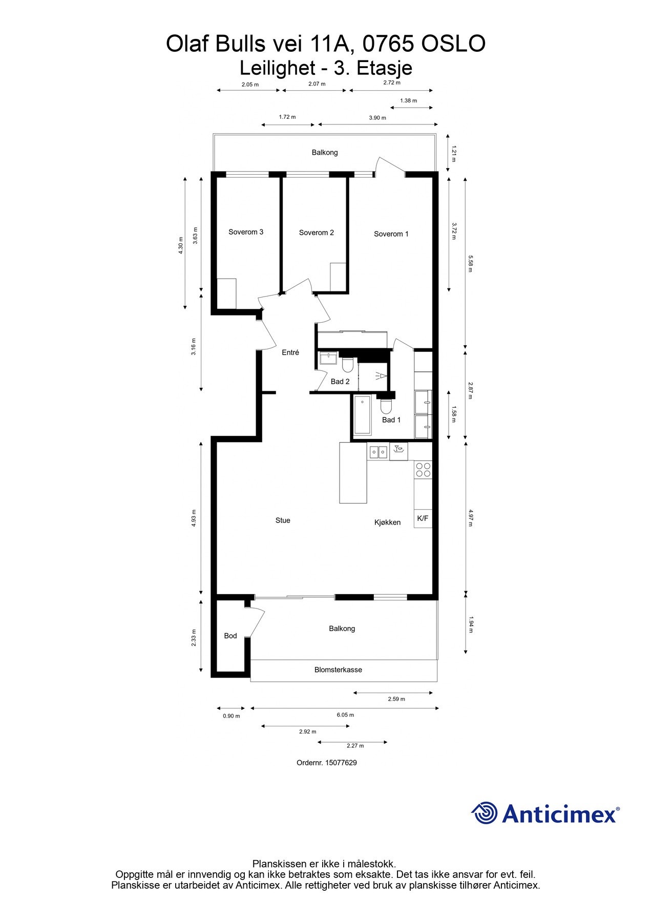
- Internt bruksareal
- 91 m² (BRA-i)
- Bruksareal
- 96 m²
- Eksternt bruksareal
- 5 m² (BRA-e)
- Balkong/Terrasse
- 21 m² (TBA)
- Etasje
- 3
- Byggeår
- 1982
- Energimerking
- D - Rød
- Tomteareal
- 27 679 m² (eiet)
Fasiliteter
Barnevennlig
Balkong/Terrasse
Garasje/P-plass
Kabel-TV
Ingen gjenboere
Parkett
Turterreng
Utsikt
Vaktmester-/vektertjeneste
Bredbåndstilknytning
Moderne
Rolig
Lademulighet
Om boligen
Velkommen til Olaf Bulls vei 11A - en lekker 4-roms med fantastiske solforhold. Her bor du høyt og fritt med magisk utsikt mot fjorden, marka og Bogstadvannet. Leiligheten er gjennomgående med utgang til sydvestvendt terrasse på 12 m2 samt nordøstvendt balkong på 9 m2. Høy standard med to bad fra 2018. Flytt rett inn!
Borettslaget har godt naboskap, flott beplantning, og ligger høyt og fritt til med marka som nærmeste nabo. Det er fantastiske rekreasjonsmuligheter sommer som vinter med skiløyper, alpinanlegg, turterreng, golfbane og badeplasser.
- Gjennomgående 4-roms med eksepsjonelle lysforhold
- En av de beste beliggenhetene i området med optimale sol- og utsiktsforhold
- Betydelig oppgradert i 2018
- Eventyrlig utsikt over Oslofjorden, Bunnefjorden, Oslo golfklubb, Bogstadvannet m.m.
- 3 soverom og 2 delikate bad
- Garasjeplass m/lader
- Lagringsplass i flere boder
- Tur- og rekreasjonsmuligheter rett utenfor døren
- Gangavstand til buss og søndagsåpen dagligvarehandel
Borettslaget har godt naboskap, flott beplantning, og ligger høyt og fritt til med marka som nærmeste nabo. Det er fantastiske rekreasjonsmuligheter sommer som vinter med skiløyper, alpinanlegg, turterreng, golfbane og badeplasser.
- Gjennomgående 4-roms med eksepsjonelle lysforhold
- En av de beste beliggenhetene i området med optimale sol- og utsiktsforhold
- Betydelig oppgradert i 2018
- Eventyrlig utsikt over Oslofjorden, Bunnefjorden, Oslo golfklubb, Bogstadvannet m.m.
- 3 soverom og 2 delikate bad
- Garasjeplass m/lader
- Lagringsplass i flere boder
- Tur- og rekreasjonsmuligheter rett utenfor døren
- Gangavstand til buss og søndagsåpen dagligvarehandel
NB: Knappen for å vise hele beskrivelsen har kun en visuell effekt.
NB: Knappen for å vise hele beskrivelsen har kun en visuell effekt.
Salgsoppgaven beskriver vesentlig og lovpålagt informasjon om eiendommen
Se komplett salgsoppgaveNyttige lenker
Nærområdet
EIE eiendomsmegling Røa, Skøyen og Ullern
Annonseinformasjon
| FINN-kode | 442998610 |
|---|---|
| Sist endret | 16. jan. 2026 13:39 |
| Referanse | 50250426 |
Annonsene kan være mangelfulle i forhold til lovpålagt opplysningsplikt. Før bindende avtale inngås oppfordres interessenter til å innhente komplett informasjon fra meglerforetaket, selger eller utleier.

















































