Bildegalleri

Velkommen til Helgesens gate 42J, presentert av Morten v/ EIE eiendomsmegling. Foto: ZOVENFRA

Grünerløkka / Sofienberg

Supersentral og særegen 2-roms fra 2015 med egen inngang, store vindusflater og Sofienbergparken som nærmeste nabo

Prisantydning4 375 000 kr
Totalpris
4 485 720 kr
Omkostninger
110 720 kr
Felleskost/mnd.
3 535 kr
Formuesverdi
1 114 639 kr

Nøkkelinfo

Boligtype
Leilighet
Eieform
Eier (Selveier)
Soverom
1
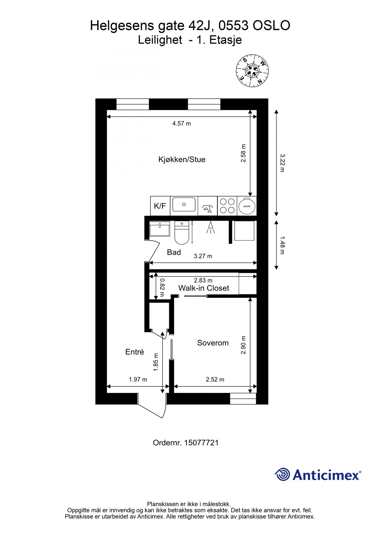
Internt bruksareal
41 m² (BRA-i)
Bruksareal
41 m²
Etasje
1
Byggeår
1884
Energimerking
G - Rød
Tomteareal
1 641 m²

Les mer om bruksareal her

Fasiliteter

Kabel-TV
Offentlig vann/kloakk
Parkett
Turterreng
Vaktmester-/vektertjeneste
Sentralt
Bredbåndstilknytning
Moderne
Rolig
Balansert ventilasjon

Visning

torsdag, 08. januar
17:00 – 18:00
søndag, 11. januar
13:30 – 14:30
Visningspåmelding

Om boligen

  • Sofienbergparken som nærmeste nabo - store vindusflater med utsyn mot parken
  • Ombygget og etablert som bolig i 2015 - gjennomgående oppgradert standard
  • Åpen stue-/kjøkkenløsning med heltre gulv, veggpanel og gjennomtenkt belysning
  • Stilrent kjøkken fra 2015 med integrerte hvitevarer, komfyrvakt og vannstopper
  • Bad fra 2015 med gulvvarme, dusjnisje (regn-/hånddusj) og opplegg for vaskemaskin
  • Soverom mot rolig bakgård + walk-in closet ca. 2 kvm
  • Dobbeltseng 1,6 m med oppbevaring (fra 2020, uten madrass) medfølger

Velkommen til Helgesens gate 42J - en smart og innflyttingsklar 2-roms midt på Grünerløkka, med parken rett utenfor. Her får du en leilighet som skiller seg ut med fine materialvalg, lun panelvegg og en praktisk planløsning som utnytter arealet godt. Den åpne stue-/kjøkkenløsningen gir et sosialt oppholdsrom med godt lys og utsyn, mens soverommet ligger vendt mot rolig bakgård. Med walk-in closet, balansert ventilasjon og oppgradert standard fra 2015 ligger alt til rette for en enkel og komfortabel hverdag - i et av byens mest populære nabolag.

Salgsoppgaven beskriver vesentlig og lovpålagt informasjon om eiendommen

Se komplett salgsoppgave

Nærområdet

Annonseinformasjon

FINN-kode442994951
Sist endret30. des. 2025 13:45
Referanse50250428

Rapporter annonse

Annonsene kan være mangelfulle i forhold til lovpålagt opplysningsplikt. Før bindende avtale inngås oppfordres interessenter til å innhente komplett informasjon fra meglerforetaket, selger eller utleier.