Bildegalleri

EiendomsMegler 1 v/Morten Høvik har gleden av å presentere Hjertåsveien 8. Foto: EFKT, Vilde Dahl
Kårvåg
Innholdsrik enebolig med attraktiv beliggenhet på Kårvåg! Ypperlige lys- og solforhold!
Prisantydning2 390 000 kr
Nøkkelinfo
- Boligtype
- Enebolig
- Eieform
- Eier (Selveier)
- Soverom
- 2
- Internt bruksareal
- 198 m² (BRA-i)
- Bruksareal
- 198 m²
- Balkong/Terrasse
- 76 m² (TBA)
- Byggeår
- 1975
- Energimerking
- G - Oransje
- Rom
- 3
- Tomteareal
- 1 100 m² (eiet)
Fasiliteter
Barnevennlig
Balkong/Terrasse
Kabel-TV
Peis/Ildsted
Turterreng
Sentralt
Rolig
Visning
onsdag, 14. januar
16:30 – 17:30
Våre visninger har påmelding. Dette gjør vi for å kunne yte bedre service for våre kunder. Verdifullt for boligkjøper og for oss. Vi anbefaler at salgsoppgaven lastes ned digitalt før visning, og ring oss gjerne på forhånd for spørsmål om boligen. Passer ikke angitt tidspunkt, ta kontakt så finner vi en løsning. Skulle det mot formodning ikke være påmeldte til angitt visningstidspunkt vil ikke visning bli gjennomført.
Om boligen
EiendomsMegler 1 v/Morten Høvik har gleden av å presentere Hjertåsveien 8!
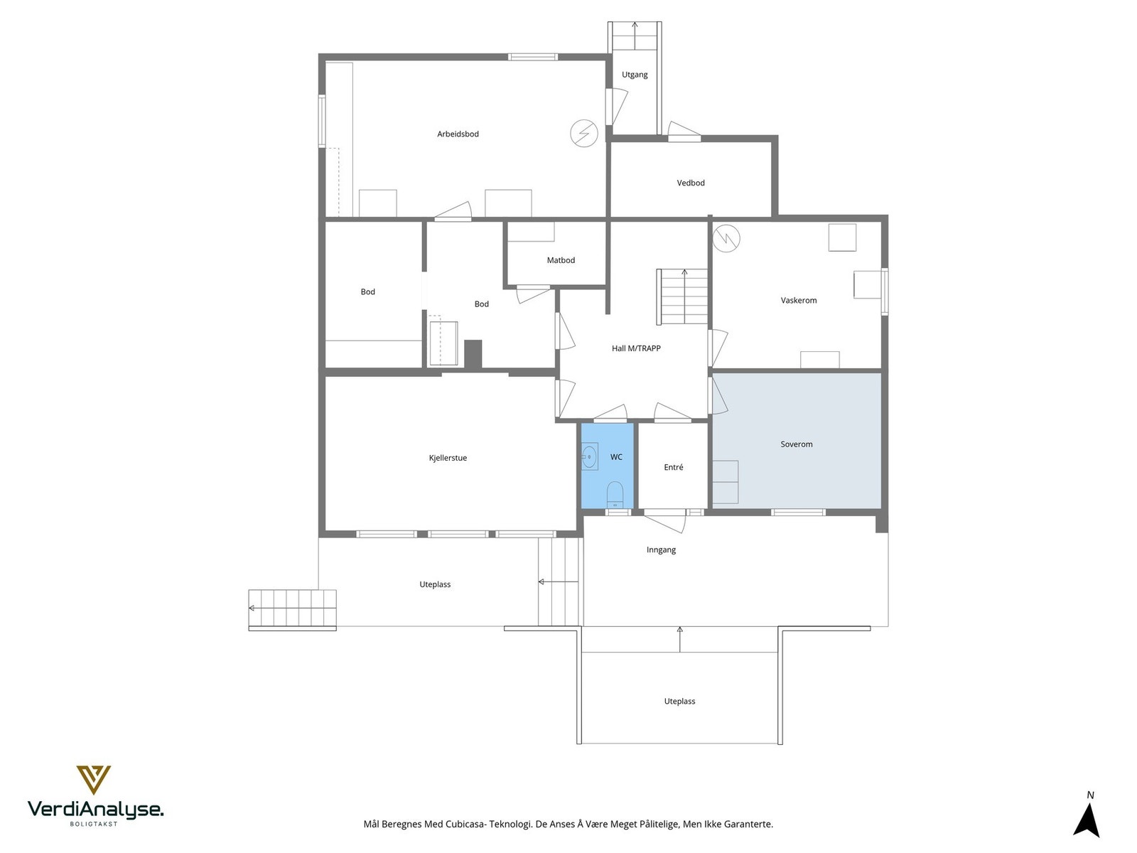
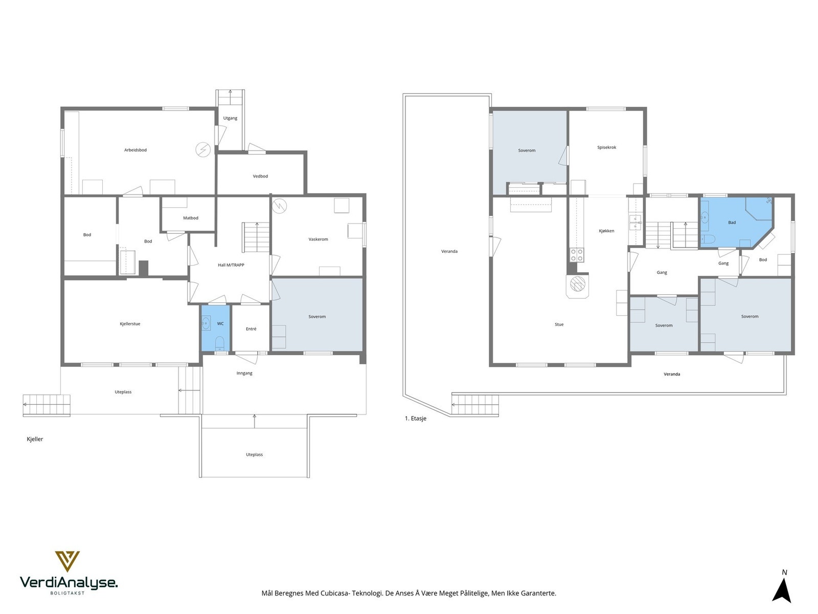
Koselig enebolig på Kårvåg. Boligen ble oppført i 1975, tilbygget i 1993 og inneholder bl.a Stue, spisestue, kjøkken, 2 soverom, bad, toalettrom, vaskerom, kjellerstue (ikke omsøkt og godkjent) og rikelig med innvendige boder. Boligen har også 2 ekstra soverom som ikke er omsøkt og godkjent. Fra soverom og stue i 1. etasje er det utgang til veranda som strekker seg rundt boligen fra syd mot vest. Eiendommen består av to bruksnummer på til sammen ca 1.100 kvm. Tomten er pent opparbeidet med gruset innkjøring og plen rundt boligen. Det er god plass for parkering i innkjørsel.
Sentral beliggenhet, nært Kårvåg, hvor man har dagligvarebutikk, skole og flotte turområder.
Velkommen til visning!
Koselig enebolig på Kårvåg. Boligen ble oppført i 1975, tilbygget i 1993 og inneholder bl.a Stue, spisestue, kjøkken, 2 soverom, bad, toalettrom, vaskerom, kjellerstue (ikke omsøkt og godkjent) og rikelig med innvendige boder. Boligen har også 2 ekstra soverom som ikke er omsøkt og godkjent. Fra soverom og stue i 1. etasje er det utgang til veranda som strekker seg rundt boligen fra syd mot vest. Eiendommen består av to bruksnummer på til sammen ca 1.100 kvm. Tomten er pent opparbeidet med gruset innkjøring og plen rundt boligen. Det er god plass for parkering i innkjørsel.
Sentral beliggenhet, nært Kårvåg, hvor man har dagligvarebutikk, skole og flotte turområder.
Velkommen til visning!
NB: Knappen for å vise hele beskrivelsen har kun en visuell effekt.
NB: Knappen for å vise hele beskrivelsen har kun en visuell effekt.
Salgsoppgaven beskriver vesentlig og lovpålagt informasjon om eiendommen
Se komplett salgsoppgaveNyttige lenker
Nærområdet
EiendomsMegler 1 Kristiansund
Vi loser deg trygt gjennom hele boligsalget
Annonseinformasjon
| FINN-kode | 442992558 |
|---|---|
| Sist endret | 28. des. 2025 18:27 |
| Referanse | 17250473 |
Annonsene kan være mangelfulle i forhold til lovpålagt opplysningsplikt. Før bindende avtale inngås oppfordres interessenter til å innhente komplett informasjon fra meglerforetaket, selger eller utleier.































