Bildegalleri

Christer Langstrand v/ EIE eiendomsmegling har gleden av å presentere Sørvangen 12D!
Ullern
Lekker, lys og moderne selveierleilighet | Terrasse på 8 m² | Rikt kollektivtilbud rett utenfor døren | Parkeringsplass!
Prisantydning4 700 000 kr
Nøkkelinfo
- Boligtype
- Leilighet
- Eieform
- Eier (Selveier)
- Soverom
- 1
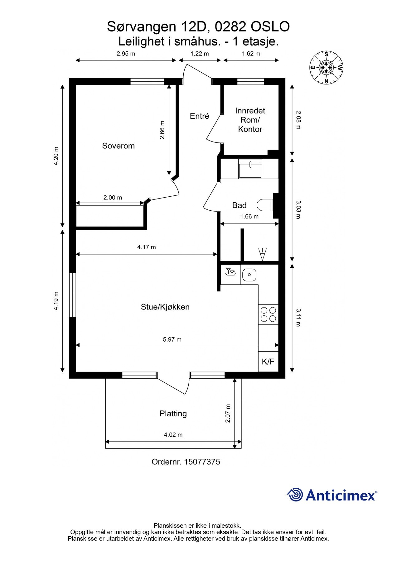
- Internt bruksareal
- 51 m² (BRA-i)
- Bruksareal
- 54 m²
- Eksternt bruksareal
- 3 m² (BRA-e)
- Balkong/Terrasse
- 8 m² (TBA)
- Etasje
- 1
- Byggeår
- 1993
- Energimerking
- F - Rød
- Tomteareal
- 1 468 m² (eiet)
Fasiliteter
Balkong/Terrasse
Garasje/P-plass
Offentlig vann/kloakk
Parkett
Turterreng
Sentralt
Moderne
Rolig
Visning
søndag, 04. januar
12:00 – 13:00
For å yte premium rådgivning, har alle våre visninger påmelding. Dette sikrer at megler har god oversikt og tid til å imøtekomme alle interessenter på aller beste måte. Dersom ingen interessenter er påmeldt, kan visningen bli avlyst.
Om boligen
Velkommen til Sørvangen 12D - en lys og gjennomført selveierleilighet med flere oppgraderinger gjort de senere årene. Leiligheten ligger i byggets 1. etasje med enkel adkomst direkte fra bakkeplan, og har en effektiv planløsning som utnytter arealet svært godt.
Boligen fremstår moderne og velholdt med parkettgulv, lyse overflater og gulvvarme i stue og kjøkken. Kjøkkenet ble oppgradert i 2024 og har stilren innredning med integrerte hvitevarer, komfyrvakt, lekkasjestopper og ny varmtvannsbereder fra samme år. Badet er flislagt med gulvvarme og ble rehabilitert i 2015.
Leiligheten har i tillegg et ekstra kontor/innredet rom, som gir god fleksibilitet i hverdagen. Fra stuen er det utgang til delvis overbygget platting med tilknytning til felles hage, som gir et hyggelig uterom i sommerhalvåret.
Det medfølger biloppstillingsplass på eiendommen og ekstern bod, noe som gir høy brukerverdi i hverdagen!
Boligen fremstår moderne og velholdt med parkettgulv, lyse overflater og gulvvarme i stue og kjøkken. Kjøkkenet ble oppgradert i 2024 og har stilren innredning med integrerte hvitevarer, komfyrvakt, lekkasjestopper og ny varmtvannsbereder fra samme år. Badet er flislagt med gulvvarme og ble rehabilitert i 2015.
Leiligheten har i tillegg et ekstra kontor/innredet rom, som gir god fleksibilitet i hverdagen. Fra stuen er det utgang til delvis overbygget platting med tilknytning til felles hage, som gir et hyggelig uterom i sommerhalvåret.
Det medfølger biloppstillingsplass på eiendommen og ekstern bod, noe som gir høy brukerverdi i hverdagen!
NB: Knappen for å vise hele beskrivelsen har kun en visuell effekt.
NB: Knappen for å vise hele beskrivelsen har kun en visuell effekt.
Salgsoppgaven beskriver vesentlig og lovpålagt informasjon om eiendommen
Se komplett salgsoppgaveNyttige lenker
Nærområdet
EIE eiendomsmegling Lørenskog
Annonseinformasjon
| FINN-kode | 442984017 |
|---|---|
| Sist endret | 29. des. 2025 17:22 |
| Referanse | 32250293 |
Annonsene kan være mangelfulle i forhold til lovpålagt opplysningsplikt. Før bindende avtale inngås oppfordres interessenter til å innhente komplett informasjon fra meglerforetaket, selger eller utleier.




















































