Bildegalleri

Velkommen til Solvangvegen 20 - Foto: Mari Staveland
Solvang - Innholdsrik enebolig med attraktiv beliggenhet
Prisantydning3 490 000 kr
Nøkkelinfo
- Boligtype
- Enebolig
- Eieform
- Eier (Selveier)
- Soverom
- 3
- Internt bruksareal
- 190 m² (BRA-i)
- Bruksareal
- 193 m²
- Eksternt bruksareal
- 3 m² (BRA-e)
- Balkong/Terrasse
- 11 m² (TBA)
- Byggeår
- 1939
- Energimerking
- D - Gul
- Rom
- 5
- Tomteareal
- 832 m² (eiet)
Fasiliteter
Balkong/Terrasse
Garasje/P-plass
Hage
Peis/Ildsted
Sentralt
Turterreng
Om boligen
Velkommen til Solvangvegen 20!
Beliggende i et av byens mest populære boligområder på Solvang. Her har man gangavstand til det meste. Flere skoler, barnehager, flotte turområder, flere idrettsanlegg, nærbutikker og sentrum ligger kun en spasertur unna. Solrik beliggenhet.
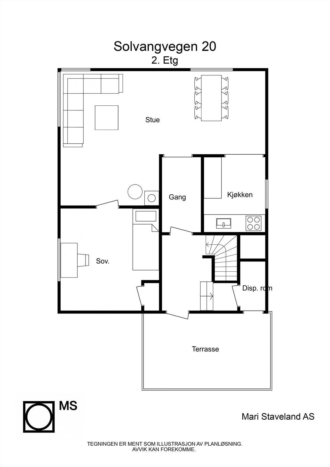
Boligen er innholdsrikt innredet over 2 etasjer i tillegg godt med lagringsplass i kjelleren og loftsetasjen. 2. etasje inneholder bla. koselig stue med vedovn og varmepumpe, praktisk kjøkken, 1 dobbelt soverom, bad og gang med utgang til østvendt altan. 1. etasje består av stue, 2 doble soverom, wc, svært tiltalende bad som ble innredet som nytt bad i 2021, entre med god garderobeplass.
Velkommen til visning!
Beliggende i et av byens mest populære boligområder på Solvang. Her har man gangavstand til det meste. Flere skoler, barnehager, flotte turområder, flere idrettsanlegg, nærbutikker og sentrum ligger kun en spasertur unna. Solrik beliggenhet.
Boligen er innholdsrikt innredet over 2 etasjer i tillegg godt med lagringsplass i kjelleren og loftsetasjen. 2. etasje inneholder bla. koselig stue med vedovn og varmepumpe, praktisk kjøkken, 1 dobbelt soverom, bad og gang med utgang til østvendt altan. 1. etasje består av stue, 2 doble soverom, wc, svært tiltalende bad som ble innredet som nytt bad i 2021, entre med god garderobeplass.
Velkommen til visning!
NB: Knappen for å vise hele beskrivelsen har kun en visuell effekt.
NB: Knappen for å vise hele beskrivelsen har kun en visuell effekt.
Salgsoppgaven beskriver vesentlig og lovpålagt informasjon om eiendommen
Se komplett salgsoppgaveNyttige lenker
Nærområdet
EiendomsMegler 1 Haugesund
En del av Sparebank 1 Sør-Norge
Annonseinformasjon
| FINN-kode | 442982559 |
|---|---|
| Sist endret | 23. des. 2025 13:32 |
| Referanse | 2501250274 |
Annonsene kan være mangelfulle i forhold til lovpålagt opplysningsplikt. Før bindende avtale inngås oppfordres interessenter til å innhente komplett informasjon fra meglerforetaket, selger eller utleier.



















































