Bildegalleri

Velkommen til Myrvollvegen 88! Boligen ligger i et etablert og barnevennlig boligområde i Navnebergtunet Boligsameie. Fotograf Pål Godager, EFKT.
STANGE
Moderne enebolig i kjede fra 2021 - 3 soverom - Stor takterrasse og markterrasse - Integrert garasje - Barnevennlig
Prisantydning3 375 000 kr
Nøkkelinfo
- Boligtype
- Enebolig
- Eieform
- Eier (Selveier)
- Soverom
- 3
- Internt bruksareal
- 84 m² (BRA-i)
- Bruksareal
- 106 m²
- Eksternt bruksareal
- 22 m² (BRA-e)
- Balkong/Terrasse
- 34 m² (TBA)
- Byggeår
- 2021
- Energimerking
- B - Oransje
- Rom
- 4
- Tomteareal
- 92 m² (eiet)
Fasiliteter
Takterrasse
Balkong/Terrasse
Barnevennlig
Bredbåndstilknytning
Garasje/P-plass
Hage
Kjæledyr tillatt
Kabel-TV
Offentlig vann/kloakk
Rolig
Sentralt
Turterreng
Lademulighet
Balansert ventilasjon
Om boligen
Velkommen til Myrvollvegen 88!
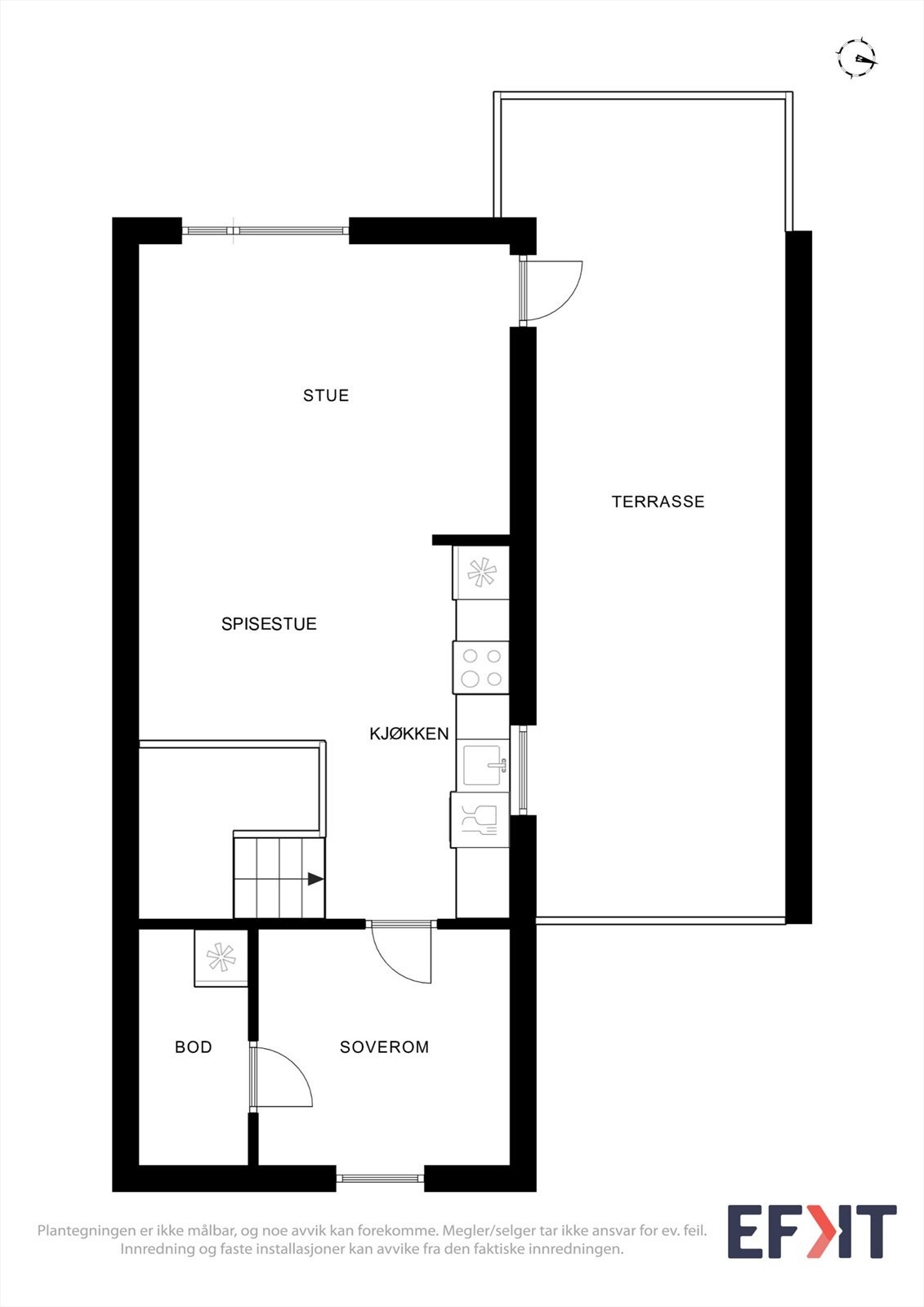
Vi har gleden av å presentere et moderne og innholdsrikt rekkehus/enebolig i kjede fra 2021 i et meget barnevennlig nabolag. Stor takterrasse, samt markterrasse, begge vent mot syd. Boligen har en smart planløsning med åpen stue- og kjøkkenløsning, tre soverom og integrert garasje. Beliggenheten i et nyere boligfelt i Stange gir nærhet til både natur, skoler, barnehager og servicetilbud.
Høydepunkter:
- Nyere rekkehus/kjedet enebolig bygget i 2021
- Stor sydvendt takterrasse samt markterrase
- Tre soverom og arealeffektiv planløsning
- Stilrent kjøkken med integrerte hvitevarer
- Delikat, flislagt bad med opplegg for vaskemaskin
- Integrert garasje med fjernstyrt portåpner
- Balansert ventilasjon for et godt inneklima
Velkommen til en hyggelig visning!
Vi har gleden av å presentere et moderne og innholdsrikt rekkehus/enebolig i kjede fra 2021 i et meget barnevennlig nabolag. Stor takterrasse, samt markterrasse, begge vent mot syd. Boligen har en smart planløsning med åpen stue- og kjøkkenløsning, tre soverom og integrert garasje. Beliggenheten i et nyere boligfelt i Stange gir nærhet til både natur, skoler, barnehager og servicetilbud.
Høydepunkter:
- Nyere rekkehus/kjedet enebolig bygget i 2021
- Stor sydvendt takterrasse samt markterrase
- Tre soverom og arealeffektiv planløsning
- Stilrent kjøkken med integrerte hvitevarer
- Delikat, flislagt bad med opplegg for vaskemaskin
- Integrert garasje med fjernstyrt portåpner
- Balansert ventilasjon for et godt inneklima
Velkommen til en hyggelig visning!
NB: Knappen for å vise hele beskrivelsen har kun en visuell effekt.
NB: Knappen for å vise hele beskrivelsen har kun en visuell effekt.
Salgsoppgaven beskriver vesentlig og lovpålagt informasjon om eiendommen
Se komplett salgsoppgaveNyttige lenker
Nærområdet
EiendomsMegler 1 Stange
Vi loser deg trygt gjennom hele boligsalget
Annonseinformasjon
| FINN-kode | 442963569 |
|---|---|
| Sist endret | 23. jan. 2026 18:40 |
| Referanse | 6040260035 |
Annonsene kan være mangelfulle i forhold til lovpålagt opplysningsplikt. Før bindende avtale inngås oppfordres interessenter til å innhente komplett informasjon fra meglerforetaket, selger eller utleier.

































