Bildegalleri

Velkommen til Statsrådvegen 122A! Fotografert av: Siri Faafeng v/ EFKT.
Moderne og lettstelt 3-roms selveierleilighet i 3. etasje | Sydvendt veranda | Heis og garasje | Nær togstasjon
Prisantydning3 490 000 kr
Nøkkelinfo
- Boligtype
- Leilighet
- Eieform
- Eier (Selveier)
- Soverom
- 2
- Internt bruksareal
- 59 m² (BRA-i)
- Bruksareal
- 64 m²
- Eksternt bruksareal
- 5 m² (BRA-e)
- Balkong/Terrasse
- 9 m² (TBA)
- Etasje
- 3
- Byggeår
- 2021
- Energimerking
- B - Lysegrønn
- Rom
- 3
- Tomteareal
- 1 896 m² (eiet)
Fasiliteter
Barnevennlig
Balkong/Terrasse
Garasje/P-plass
Kabel-TV
Heis
Offentlig vann/kloakk
Utsikt
Sentralt
Moderne
Rolig
Visning
mandag, 09. februar
17:30 – 18:30
Etter positive tilbakemeldinger fra interessenter og selgere fortsetter vi med visningspåmelding. Meld deg på visning ved å klikke på "meld deg på visning"-knappen eller ta kontakt med megler. Påmeldingsfrist 24 timer før oppsatt visning. Ta kontakt for avtale av privatvisning dersom oppsatt visning ikke passer.
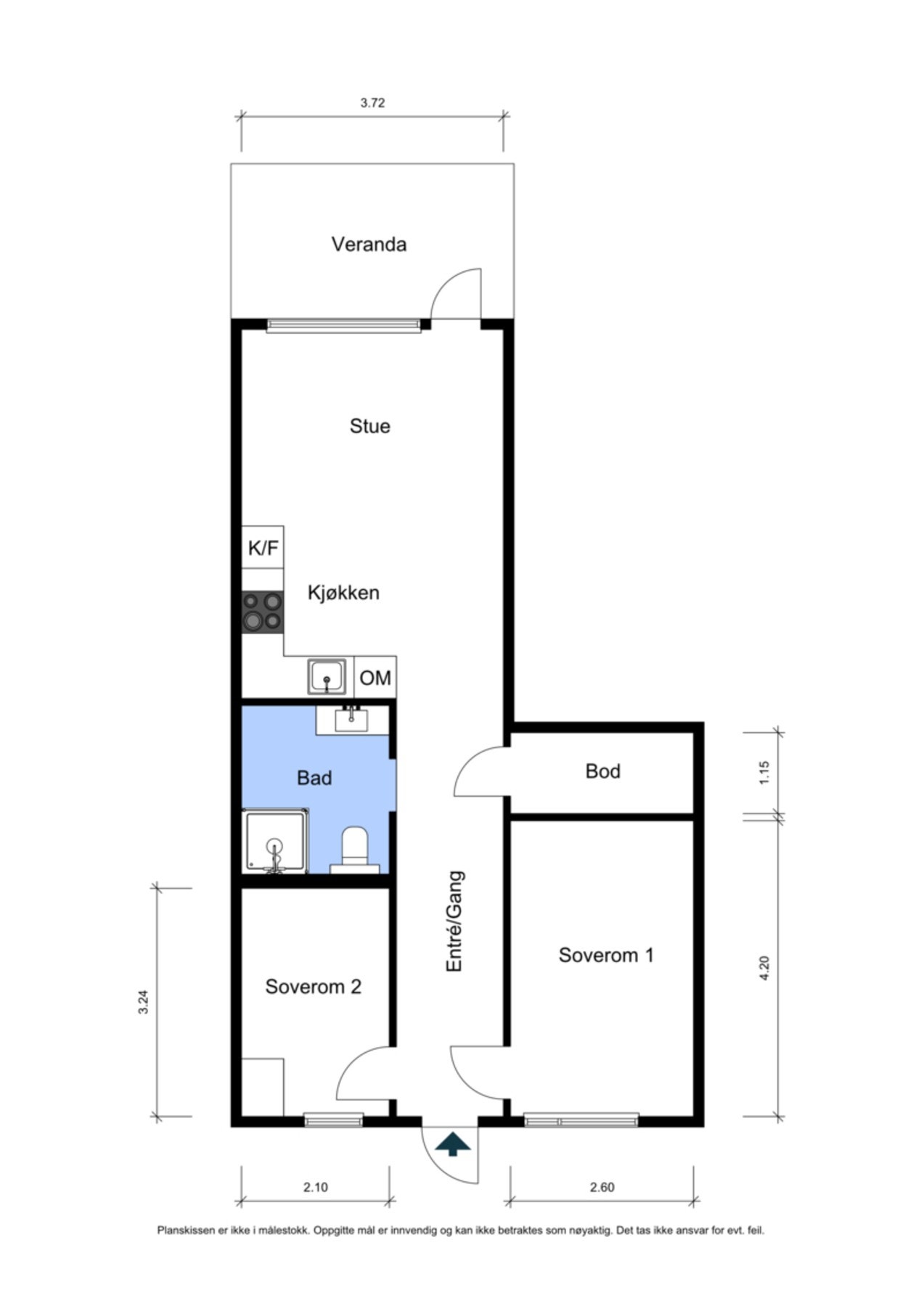
Om boligen
EIE Råholt/Jessheim v/ Roksana Risberg har gleden av å presentere Statsrådvegen 112A!
En attraktiv og moderne selveierleilighet fra 2021 med gjennomtenkt planløsning. Leiligheten ligger i byggets 3. etasje med heisadkomst og fremstår lys og innbydende. Boligen har to soverom, åpen stue- og kjøkkenløsning med gode lysforhold og utgang til en flott sydvendt veranda. Leiligheten har et samlet bruksareal på ca. 64 m² og disponerer både innvendig bod, kjellerbod og parkeringsplass i felles garasjeanlegg.
Leiligheten har tiltalende fellesarealer og en attraktiv beliggenhet på Sundbyhagan og vurderes å være godt egnet for førstegangskjøpere, pendlere og utleieformål, samt for øvrige som søker en praktisk og lettstelt bolig med rolig beliggenhet og nærhet til sentrale servicetilbud.
Velkommen på visning!
Mangler du egenkapital? Boligen kan kjøpes med Finit Deleie.
En attraktiv og moderne selveierleilighet fra 2021 med gjennomtenkt planløsning. Leiligheten ligger i byggets 3. etasje med heisadkomst og fremstår lys og innbydende. Boligen har to soverom, åpen stue- og kjøkkenløsning med gode lysforhold og utgang til en flott sydvendt veranda. Leiligheten har et samlet bruksareal på ca. 64 m² og disponerer både innvendig bod, kjellerbod og parkeringsplass i felles garasjeanlegg.
Leiligheten har tiltalende fellesarealer og en attraktiv beliggenhet på Sundbyhagan og vurderes å være godt egnet for førstegangskjøpere, pendlere og utleieformål, samt for øvrige som søker en praktisk og lettstelt bolig med rolig beliggenhet og nærhet til sentrale servicetilbud.
Velkommen på visning!
Mangler du egenkapital? Boligen kan kjøpes med Finit Deleie.
NB: Knappen for å vise hele beskrivelsen har kun en visuell effekt.
NB: Knappen for å vise hele beskrivelsen har kun en visuell effekt.
Salgsoppgaven beskriver vesentlig og lovpålagt informasjon om eiendommen
Se komplett salgsoppgaveNærområdet
EIE eiendomsmegling Jessheim
Annonseinformasjon
| FINN-kode | 442959784 |
|---|---|
| Sist endret | 04. feb. 2026 10:26 |
| Referanse | 20251450 |
Annonsene kan være mangelfulle i forhold til lovpålagt opplysningsplikt. Før bindende avtale inngås oppfordres interessenter til å innhente komplett informasjon fra meglerforetaket, selger eller utleier.







































