Bildegalleri

Velkommen til Trelastveien 20A. En moderne, innflyttingsklar endeleilighet i 2. etasje med heisadkomst.
Myrvoll Stasjon
Moderne 2-roms fra 2021. Energiattest: Grønn A. Balkong 10 m². Stort soverom med plass til hjemmekontor. Meget sentralt.
Prisantydning3 800 000 kr
Nøkkelinfo
- Boligtype
- Leilighet
- Eieform
- Eier (Selveier)
- Soverom
- 1
- Internt bruksareal
- 49 m² (BRA-i)
- Bruksareal
- 55 m²
- Eksternt bruksareal
- 6 m² (BRA-e)
- Balkong/Terrasse
- 10 m² (TBA)
- Etasje
- 2
- Byggeår
- 2021
- Energimerking
- A - Mørkegrønn
- Rom
- 2
- Tomteareal
- 5 560 m² (eiet)
Fasiliteter
Barnevennlig
Balkong/Terrasse
Kabel-TV
Heis
Offentlig vann/kloakk
Parkett
Turterreng
Vaktmester-/vektertjeneste
Sentralt
Bredbåndstilknytning
Moderne
Rolig
Balansert ventilasjon
Visning
søndag, 04. januar
13:00 – 14:00
Velkommen til visning!
Alle våre visninger har påmelding. På denne måten sikrer vi at megler har god oversikt og tid til å imøtekomme alle interessenter på beste måte. Dette er veldig verdifullt for boligkjøpere og for oss. Det er enkelt å melde seg på, og du kan like enkelt melde deg av. Kontakt også gjerne megler i forkant av visning dersom du har spørsmål.
Om boligen
Meget pent bebodd selveierleilighet i 2. etasje med "nyboligfølelse".
Grønn TG = 0 og Grønn TG = 1 på alle sjekkpunkter.
Heis rett ved inngangsdøren.
Arealeffektiv og praktisk planløsning.
Takhøyde i stue/kjøkken ble målt til 2,50 m gir sammen med store vindusarealer en god romfølelse.
3 lags vinduer, vannbåren oppvarming, balansert ventilasjon gir lave oppvarmingskostnader.
Energiattest: Grønn A
Sentral beliggenhet med kort gangavstand til diverse butikker, Myrvoll stasjon mm.
Innhold:
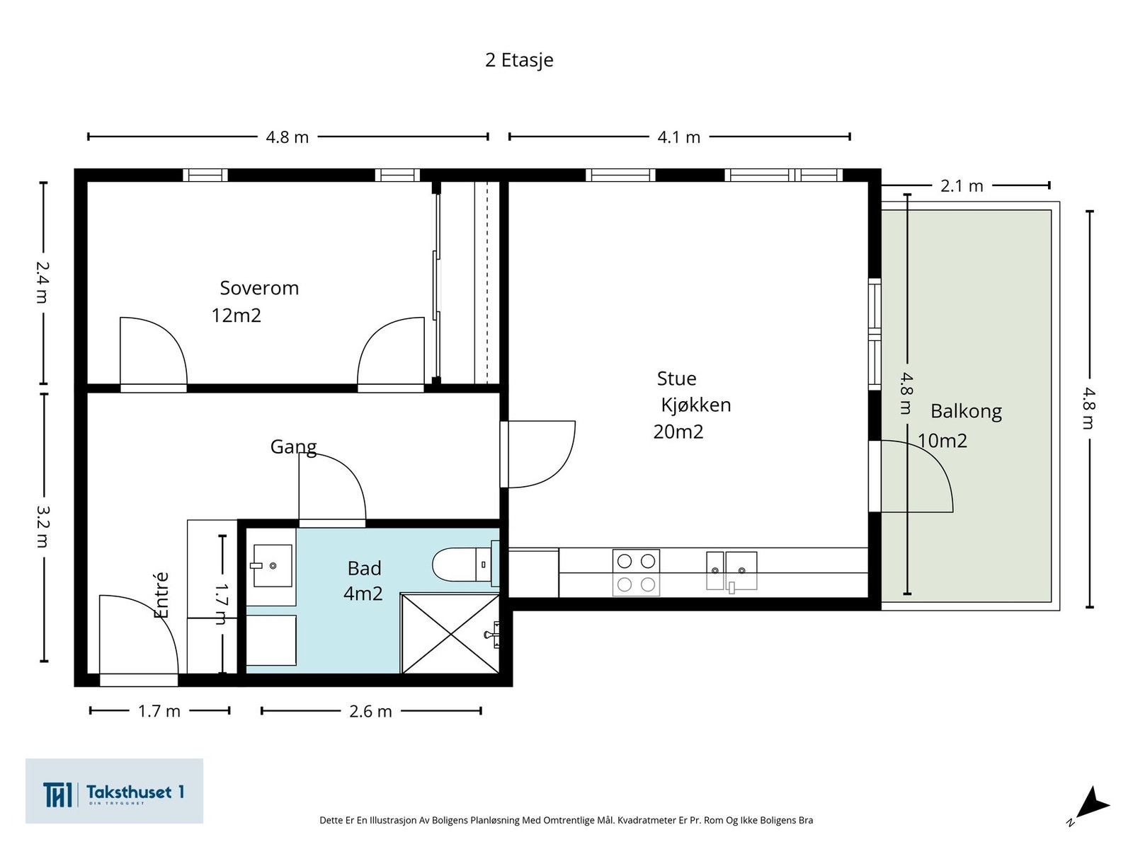
Entré/gang med garderobeskap, soverom 12 m² med kontorplass, bad/WC/vaskerom 4 m², stue/kjøkken 20 m² med integrerte hvitevarer og utgang til balkong.
Balkongen har tak med levegg i herdet glass, slik at den kan brukers også ved nedbør.
Grønn TG = 0 og Grønn TG = 1 på alle sjekkpunkter.
Heis rett ved inngangsdøren.
Arealeffektiv og praktisk planløsning.
Takhøyde i stue/kjøkken ble målt til 2,50 m gir sammen med store vindusarealer en god romfølelse.
3 lags vinduer, vannbåren oppvarming, balansert ventilasjon gir lave oppvarmingskostnader.
Energiattest: Grønn A
Sentral beliggenhet med kort gangavstand til diverse butikker, Myrvoll stasjon mm.
Innhold:
Entré/gang med garderobeskap, soverom 12 m² med kontorplass, bad/WC/vaskerom 4 m², stue/kjøkken 20 m² med integrerte hvitevarer og utgang til balkong.
Balkongen har tak med levegg i herdet glass, slik at den kan brukers også ved nedbør.
NB: Knappen for å vise hele beskrivelsen har kun en visuell effekt.
NB: Knappen for å vise hele beskrivelsen har kun en visuell effekt.
Salgsoppgaven beskriver vesentlig og lovpålagt informasjon om eiendommen
Se komplett salgsoppgaveNyttige lenker
Nærområdet

PrivatMegleren Panorama
Kun det beste på dine vegne
Annonseinformasjon
| FINN-kode | 442905303 |
|---|---|
| Sist endret | 27. des. 2025 14:15 |
| Referanse | 38251416 |
Annonsene kan være mangelfulle i forhold til lovpålagt opplysningsplikt. Før bindende avtale inngås oppfordres interessenter til å innhente komplett informasjon fra meglerforetaket, selger eller utleier.

























