Bildegalleri

Velkommen til Per Sivles veg 2 F, presentert av EiendomsMegler 1 ved Sigbjørn Shaswar-Vestå.
Kyvannet/Byåsen
EKSKLUSIV ENEBOLIG NÆRT BYMARKA OPPUSSET I 2025. Hybelleilighet + ungdomsavdeling med egen inngang, kjøkken og bad.
Prisantydning17 900 000 kr
Nøkkelinfo
- Boligtype
- Enebolig
- Eieform
- Eier (Selveier)
- Soverom
- 7
- Internt bruksareal
- 339 m² (BRA-i)
- Bruksareal
- 348 m²
- Eksternt bruksareal
- 9 m² (BRA-e)
- Balkong/Terrasse
- 97 m² (TBA)
- Byggeår
- 1968
- Energimerking
- E - Mørkegrønn
- Tomteareal
- 1 032 m² (eiet)
Fasiliteter
Barnevennlig
Balkong/Terrasse
Garasje/P-plass
Fiskemulighet
Offentlig vann/kloakk
Parkett
Peis/Ildsted
Turterreng
Utsikt
Aircondition
Moderne
Rolig
Bademulighet
Om boligen
Velkommen til Per Sivles veg 2!
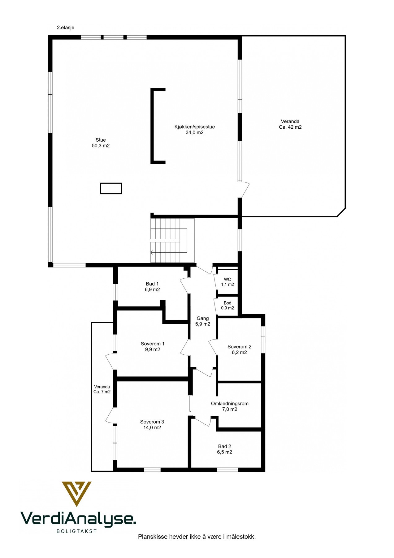
EiendomsMegler1 presenterer en nyoppusset enebolig fra 2025 med eksklusiv standard og attraktiv beliggenhet på Ugla. Boligen har hele 348 kvm fordelt på tre plan, romslige oppholdsarealer og en gjennomtenkt planløsning som gir plass til både familieliv og gjester. I tillegg følger separat hybelleilighet og ungdomsavdeling med egne innganger.
Eiendommen er ideell for barnefamilier med stor, pent opparbeidet hage, flere terrasser og god plass til lek og aktiviteter. Her bor du i et trygt og barnevennlig område med kort vei til skole, buss, butikker og flotte turmuligheter i Bymarka.
Høydepunkter:
- Nyoppusset i 2025 med eksklusiv standard
- 348 kvm fordelt på tre plan
- Hybelleilighet
- Ungdomsavdeling
- Grønn energimerking
- Effektiv oppvarming med bergvarmepumpe, vannbåren gulvvarme og vedfyring
- Herlig hage og flere uteplasser
- Asfaltert gårdsplass med carport og sportsbod
- Attraktiv beliggenhet nær marka
Velkommen!
EiendomsMegler1 presenterer en nyoppusset enebolig fra 2025 med eksklusiv standard og attraktiv beliggenhet på Ugla. Boligen har hele 348 kvm fordelt på tre plan, romslige oppholdsarealer og en gjennomtenkt planløsning som gir plass til både familieliv og gjester. I tillegg følger separat hybelleilighet og ungdomsavdeling med egne innganger.
Eiendommen er ideell for barnefamilier med stor, pent opparbeidet hage, flere terrasser og god plass til lek og aktiviteter. Her bor du i et trygt og barnevennlig område med kort vei til skole, buss, butikker og flotte turmuligheter i Bymarka.
Høydepunkter:
- Nyoppusset i 2025 med eksklusiv standard
- 348 kvm fordelt på tre plan
- Hybelleilighet
- Ungdomsavdeling
- Grønn energimerking
- Effektiv oppvarming med bergvarmepumpe, vannbåren gulvvarme og vedfyring
- Herlig hage og flere uteplasser
- Asfaltert gårdsplass med carport og sportsbod
- Attraktiv beliggenhet nær marka
Velkommen!
NB: Knappen for å vise hele beskrivelsen har kun en visuell effekt.
NB: Knappen for å vise hele beskrivelsen har kun en visuell effekt.
Salgsoppgaven beskriver vesentlig og lovpålagt informasjon om eiendommen
Se komplett salgsoppgaveNyttige lenker
Nærområdet
EiendomsMegler 1 Byåsen
Vi loser deg trygt gjennom hele boligsalget
Annonseinformasjon
| FINN-kode | 442897632 |
|---|---|
| Sist endret | 06. feb. 2026 13:23 |
| Referanse | 35230211 |
Annonsene kan være mangelfulle i forhold til lovpålagt opplysningsplikt. Før bindende avtale inngås oppfordres interessenter til å innhente komplett informasjon fra meglerforetaket, selger eller utleier.


































































