Bildegalleri

Velkommen til Børsteveien 17, presentert av Ruben Knutsen og Håkon Hovland v/ Emera eiendomsmegling! Foto: Paul Dragoman
LØREN BOTANISKE
Moderne og lys 4-roms fra 2022 m/ vestvendt balkong, heis og mulighet for garasje* |A-konto fjernvarme og takterrasse
Prisantydning4 490 000 kr
Nøkkelinfo
- Boligtype
- Leilighet
- Eieform
- Andel
- Soverom
- 3
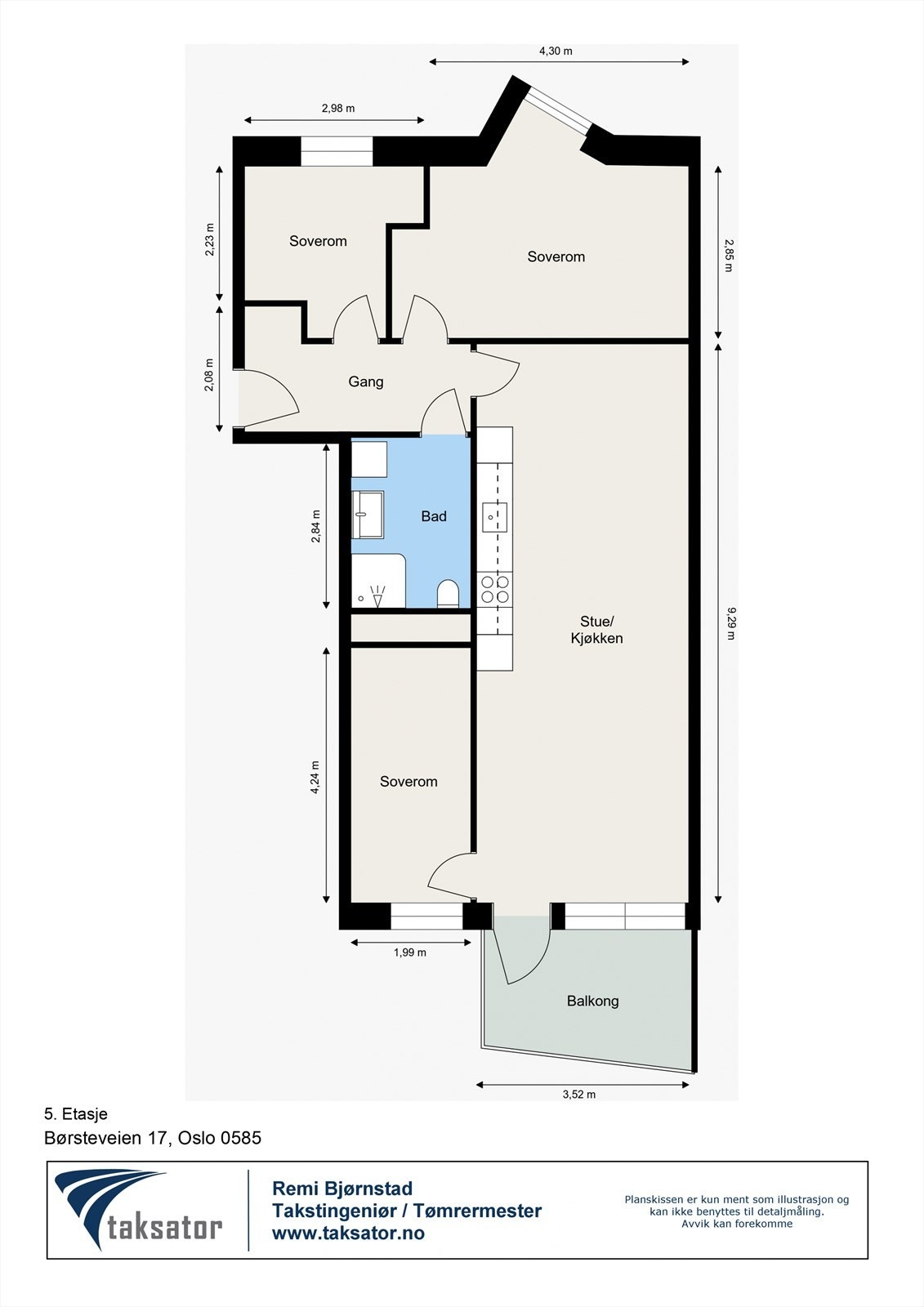
- Internt bruksareal
- 76 m² (BRA-i)
- Bruksareal
- 82 m²
- Eksternt bruksareal
- 6 m² (BRA-e)
- Balkong/Terrasse
- 7 m² (TBA)
- Etasje
- 5
- Byggeår
- 2022
- Energimerking
- B - Lysegrønn
- Rom
- 4
- Tomteareal
- 12 123 m² (eiet)
Fasiliteter
Takterrasse
Balkong/Terrasse
Barnevennlig
Bredbåndstilknytning
Garasje/P-plass
Heis
Kjæledyr tillatt
Offentlig vann/kloakk
Parkett
Rolig
Sentralt
Utsikt
Lademulighet
Balansert ventilasjon
Visning
søndag, 11. januar
12:30 – 13:30
Vi har påmelding til alle våre visninger. Dette gjør at eiendomsmegleren kan planlegge godt og gi personlig oppfølging til hver enkelt som kommer. For deg som vurderer å kjøpe bolig, betyr dette en mer ryddig og tilrettelagt visningsopplevelse. Påmelding og avmelding gjøres enkelt, og du er også velkommen til å ta kontakt med megleren i forkant dersom du har noe du lurer på.
VisningspåmeldingOm boligen
Velkommen til Børsteveien 17! En nyere og stilren 4-roms leilighet fra 2022 med heis, garasjeplass og balkong.
Her bor du i et moderne og familievennlig nabolag på Løren, med en urban livsstil i rolige rammer. Med dagligvarebutikker, Løren Torg og T-banen kun minutter unna, blir hverdagen enkel og effektiv. Leiligheten har en åpen og luftig stue- og kjøkkenløsning med store vindusflater som gir utgang til en hyggelig balkong.
Høydepunkter:
- IN-ordning, felleskostnader på kr. 4 671,- ved innfrielse
- Mulighet for garasjeplass* med el-lader
- Nybygg fra 2022 med høy standard
- Moderne HTH-kjøkken med integrerte hvitevarer, inkl. vinskap
- Vannbåren gulvvarme i stue/kjøkken og på bad
- God takhøyde på ca. 2,60 m og tre soverom
- Felles takterrasse med sjøutsikt og sykkelverksted
Her bor du i et moderne og familievennlig nabolag på Løren, med en urban livsstil i rolige rammer. Med dagligvarebutikker, Løren Torg og T-banen kun minutter unna, blir hverdagen enkel og effektiv. Leiligheten har en åpen og luftig stue- og kjøkkenløsning med store vindusflater som gir utgang til en hyggelig balkong.
Høydepunkter:
- IN-ordning, felleskostnader på kr. 4 671,- ved innfrielse
- Mulighet for garasjeplass* med el-lader
- Nybygg fra 2022 med høy standard
- Moderne HTH-kjøkken med integrerte hvitevarer, inkl. vinskap
- Vannbåren gulvvarme i stue/kjøkken og på bad
- God takhøyde på ca. 2,60 m og tre soverom
- Felles takterrasse med sjøutsikt og sykkelverksted
NB: Knappen for å vise hele beskrivelsen har kun en visuell effekt.
NB: Knappen for å vise hele beskrivelsen har kun en visuell effekt.
Salgsoppgaven beskriver vesentlig og lovpålagt informasjon om eiendommen
Se komplett salgsoppgaveNyttige lenker
Nærområdet
Emera Eiendomsmegling
Annonseinformasjon
| FINN-kode | 442884347 |
|---|---|
| Sist endret | 03. jan. 2026 12:35 |
| Referanse | EMERA2.25222 |
Annonsene kan være mangelfulle i forhold til lovpålagt opplysningsplikt. Før bindende avtale inngås oppfordres interessenter til å innhente komplett informasjon fra meglerforetaket, selger eller utleier.



















































