Bildegalleri

Velkommen til Beverveien 8! Foto: FOTOetcetera AS
Mysen - Stor og innholdsrik enebolig med bl. 4 soverom og 2 bad. Garasje og carport.
Prisantydning3 950 000 kr
Nøkkelinfo
- Boligtype
- Enebolig
- Eieform
- Eier (Selveier)
- Soverom
- 4
- Internt bruksareal
- 196 m² (BRA-i)
- Bruksareal
- 213 m²
- Eksternt bruksareal
- 17 m² (BRA-e)
- Balkong/Terrasse
- 75 m² (TBA)
- Byggeår
- 1985
- Energimerking
- D - Oransje
- Rom
- 4
- Tomteareal
- 703 m² (eiet)
Om boligen
Velkommen til denne flotte eneboligen i Beverveien 8, Mysen. Beliggende i det rolige og barnevennlige området Opsahlåsen, er denne boligen ideell for familier. Nærhet til Mysen sentrum gir enkel tilgang til skoler, offentlig transport og et bredt utvalg av butikker og servicetilbud. Området byr også på flotte turmuligheter, inkludert Helsestien langs Mysenelva og Trømborgfjella.
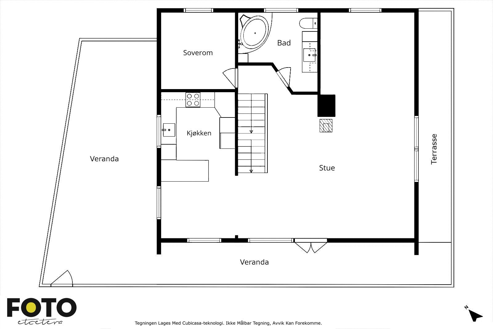
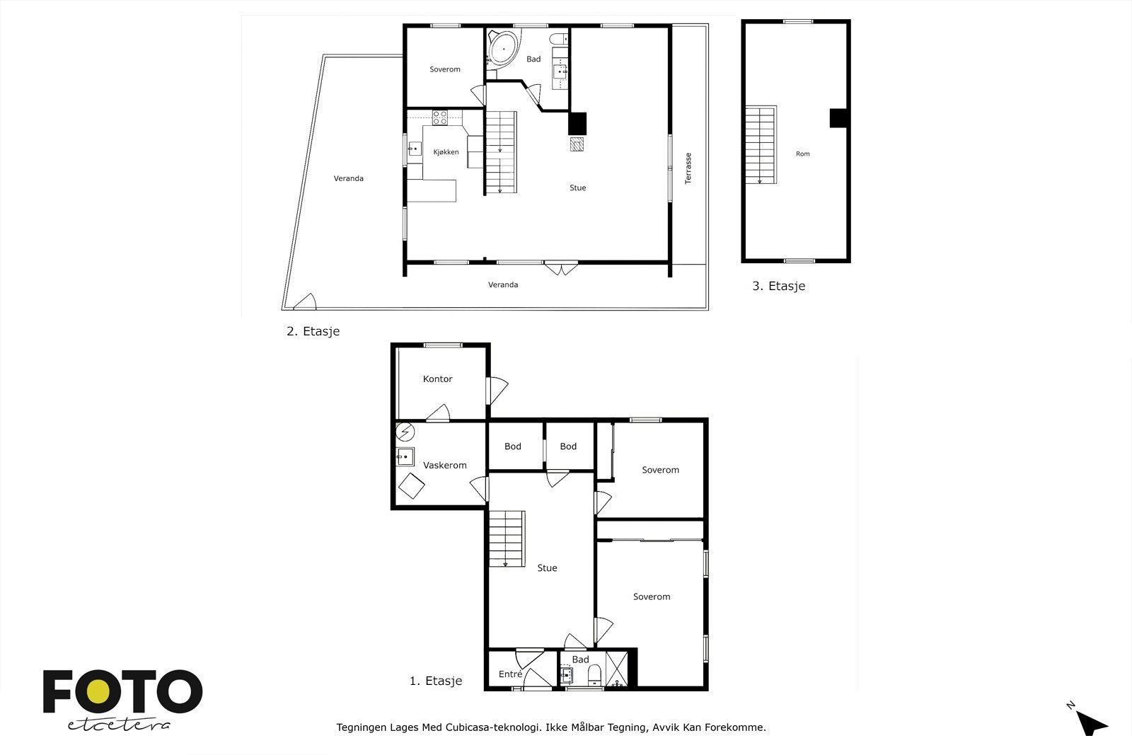
Eneboligen er fra 1985 og har et bruksareal på 213 m² fordelt over tre etasjer. Den har en romslig planløsning med loftstue, fire soverom, to bad, kjøkken, stue, hall med trapp, entré, vaskerom og bod. Uteplassen består av en stor veranda på 75 m² med tilgang fra stue og hage. Eiendommen inkluderer også en garasje på 17 m² og en carport. Tomten er på 702,6 m² og er opparbeidet med plen og diverse beplantning.
Eneboligen er fra 1985 og har et bruksareal på 213 m² fordelt over tre etasjer. Den har en romslig planløsning med loftstue, fire soverom, to bad, kjøkken, stue, hall med trapp, entré, vaskerom og bod. Uteplassen består av en stor veranda på 75 m² med tilgang fra stue og hage. Eiendommen inkluderer også en garasje på 17 m² og en carport. Tomten er på 702,6 m² og er opparbeidet med plen og diverse beplantning.
NB: Knappen for å vise hele beskrivelsen har kun en visuell effekt.
NB: Knappen for å vise hele beskrivelsen har kun en visuell effekt.
Salgsoppgaven beskriver vesentlig og lovpålagt informasjon om eiendommen
Se komplett salgsoppgaveNærområdet
Aktiv Mysen og Rakkestad
Annonseinformasjon
| FINN-kode | 442880643 |
|---|---|
| Sist endret | 23. des. 2025 09:25 |
| Referanse | 1113250275 |
Annonsene kan være mangelfulle i forhold til lovpålagt opplysningsplikt. Før bindende avtale inngås oppfordres interessenter til å innhente komplett informasjon fra meglerforetaket, selger eller utleier.











































