Bildegalleri

EIE Jessheim v/ Kristin Kjeksli /45445872) har gleden av å presentere Dampsaga allè 16! (Foto: Bjørn Sørheim)
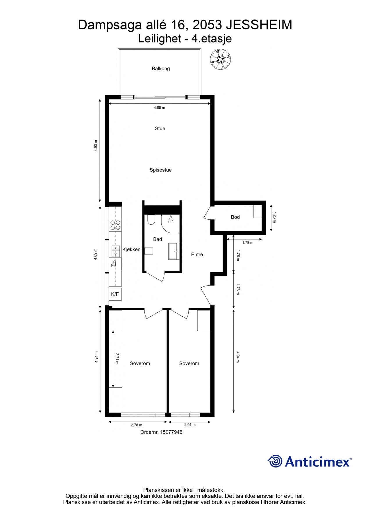
Lys og pen 3-roms toppleilighet på Dampsaga| Garasjeplass m/ elbil-lader | Vestvendt balkong | ca. 500m til storsenter!
Prisantydning4 790 000 kr
Nøkkelinfo
- Boligtype
- Leilighet
- Eieform
- Eier (Selveier)
- Soverom
- 2
- Internt bruksareal
- 77 m² (BRA-i)
- Bruksareal
- 83 m²
- Eksternt bruksareal
- 6 m² (BRA-e)
- Balkong/Terrasse
- 9 m² (TBA)
- Etasje
- 4
- Byggeår
- 2013
- Energimerking
- D - Mørkegrønn
- Rom
- 3
- Tomteareal
- 9 162 m² (eiet)
Fasiliteter
Balkong/Terrasse
Garasje/P-plass
Heis
Offentlig vann/kloakk
Parkett
Utsikt
Sentralt
Moderne
Lademulighet
Balansert ventilasjon
Visning
søndag, 22. februar
11:00 – 11:45
For å yte premium rådgivning, har alle våre visninger påmelding. Dette sikrer at megler har god oversikt og tid til å imøtekomme alle interessenter på aller beste måte. Dersom ingen interessenter er påmeldt 24 timer før oppsatt visning, kan visningen bli avlyst. Ta kontakt for privat visning om felles visning ikke passer.
Om boligen
EIE Jessheim v/ Kristin Kjeksli (45445872) har gleden av å presentere Dampsaga allé 16! Dette er en lys og pen 3-roms toppleilighet med garasjeplass og elbil-lader, beliggende svært sentralt på Jessheim. Leiligheten har en praktisk planløsning med entré, stue og kjøkken i åpen løsning, to soverom, flislagt baderom og innvendig bod. Fra stuen er det utgang til en vestvendt, overbygget balkong med gode solforhold på ettermiddag og kveld. Boligen disponerer bod i felles anlegg.
Leiligheten har en sentral og attraktiv beliggenhet med ca. 500 meter til Jessheim Storsenter, togstasjon og Storgata med et bredt utvalg av butikker, serveringssteder og servicetilbud. Tog gir enkel adkomst til både Oslo og Gardermoen, og området byr på en lettvint og praktisk hverdag.
Velkommen til visning!
Leiligheten har en sentral og attraktiv beliggenhet med ca. 500 meter til Jessheim Storsenter, togstasjon og Storgata med et bredt utvalg av butikker, serveringssteder og servicetilbud. Tog gir enkel adkomst til både Oslo og Gardermoen, og området byr på en lettvint og praktisk hverdag.
Velkommen til visning!
NB: Knappen for å vise hele beskrivelsen har kun en visuell effekt.
NB: Knappen for å vise hele beskrivelsen har kun en visuell effekt.
Salgsoppgaven beskriver vesentlig og lovpålagt informasjon om eiendommen
Se komplett salgsoppgaveNyttige lenker
Nærområdet
EIE eiendomsmegling Jessheim
Annonseinformasjon
| FINN-kode | 442861507 |
|---|---|
| Sist endret | 10. feb. 2026 10:33 |
| Referanse | 20251453 |
Annonsene kan være mangelfulle i forhold til lovpålagt opplysningsplikt. Før bindende avtale inngås oppfordres interessenter til å innhente komplett informasjon fra meglerforetaket, selger eller utleier.
































