Bildegalleri

Awet Tella v/ EiendomsMegler 1 har gleden av å presentere Malerhaugveien 32E.
Ensjø
Sjeldent pen 4-roms fra 2019 m/ 2 balkonger og 2 bad | Gjennomgående og solrik | Heis | Fyring/v.vann inkl | IN-ordning
Prisantydning8 800 000 kr
Nøkkelinfo
- Boligtype
- Leilighet
- Eieform
- Andel
- Soverom
- 3
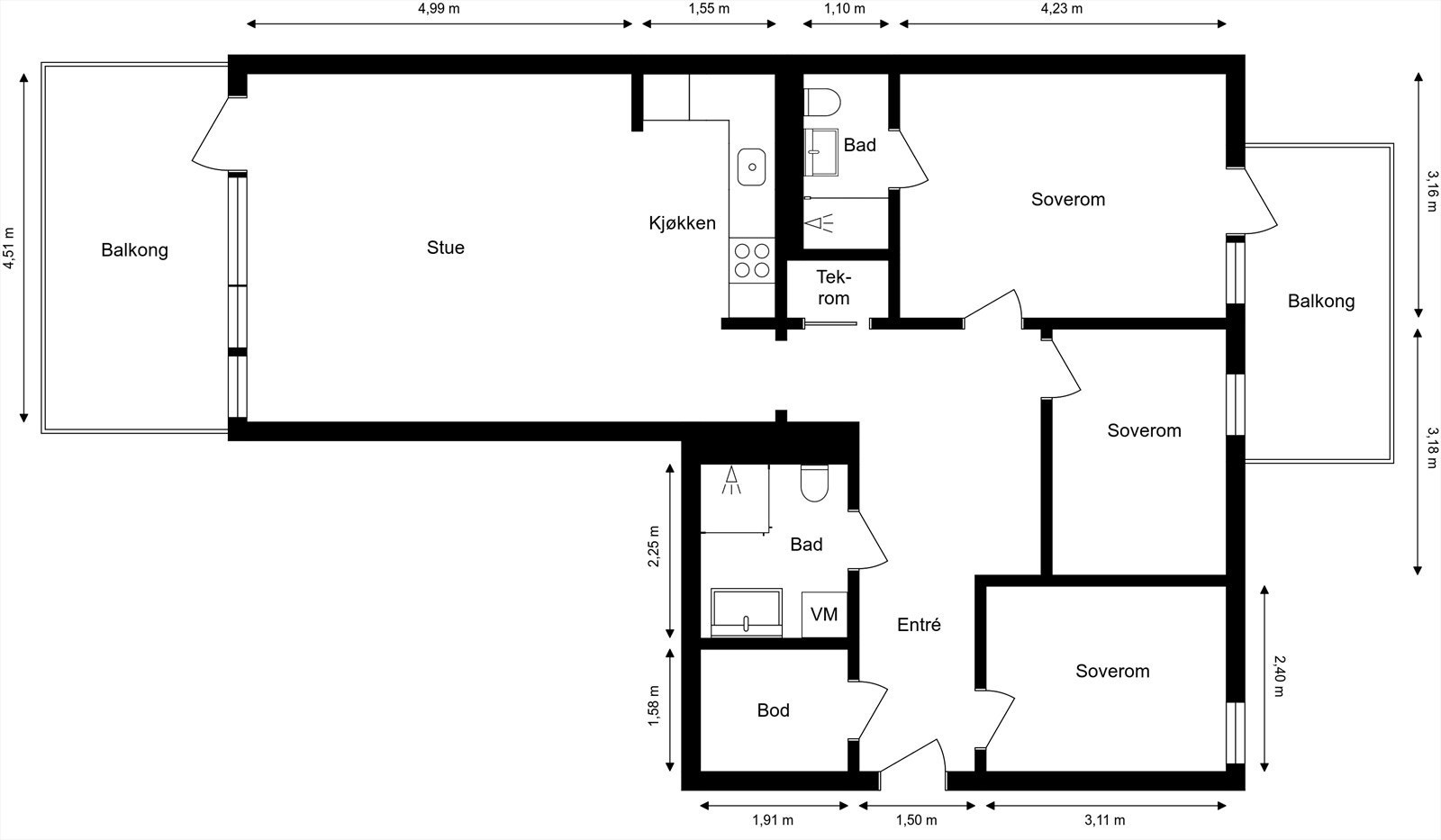
- Internt bruksareal
- 87 m² (BRA-i)
- Bruksareal
- 92 m²
- Eksternt bruksareal
- 5 m² (BRA-e)
- Balkong/Terrasse
- 15 m² (TBA)
- Etasje
- 3
- Byggeår
- 2019
- Energimerking
- D - Mørkegrønn
- Rom
- 4
- Tomteareal
- 4 748 m² (eiet)
Fasiliteter
Takterrasse
Balkong/Terrasse
Barnevennlig
Bredbåndstilknytning
Heis
Kabel-TV
Offentlig vann/kloakk
Parkett
Rolig
Sentralt
Utsikt
Vaktmester-/vektertjeneste
Turterreng
Balansert ventilasjon
Visning
torsdag, 08. januar
17:30 – 18:30
søndag, 11. januar
13:00 – 14:00
Vi ønsker på forhånd å vite om du kommer på visning og ber deg ta kontakt for avtale om visning på angitt dag. Dette gjør vi for å kunne yte bedre service til kundene våre.
For visninger utover de annonserte, ta kontakt med megler på telefon 984 48 506.
VisningspåmeldingOm boligen
Velkommen til Malerhaugveien 32E, en sjeldent pen og moderne 4-roms fra 2019 med gjennomgående planløsning og svært god romfølelse. Leiligheten har en lys og sosial stue- og kjøkkenløsning med rikelig plass til både hverdagsliv og gjester. Tre gode soverom og to delikate bad gir en fleksibel hverdag. To store, overbygde balkonger gir solrike uteplasser. Heis, balansert ventilasjon og lave vedlikeholdsbehov gir høy bokvalitet. Borettslaget har felles takterrasse og inkluderer ákonto fyring og varmtvann. Beliggenheten på Ensjø kombinerer urban livsstil med grønne omgivelser og kort vei til kollektiv og dagligvare.
Høydepunkter:
*4-roms fra 2019
*To balkonger | To bad
*Gjennomgående planløsning
*Heis og takterrasse
*Ákonto fyring/v.vann inkl.
*IN-ordning
*Ca. 9 min til T-bane
Høydepunkter:
*4-roms fra 2019
*To balkonger | To bad
*Gjennomgående planløsning
*Heis og takterrasse
*Ákonto fyring/v.vann inkl.
*IN-ordning
*Ca. 9 min til T-bane
NB: Knappen for å vise hele beskrivelsen har kun en visuell effekt.
NB: Knappen for å vise hele beskrivelsen har kun en visuell effekt.
Salgsoppgaven beskriver vesentlig og lovpålagt informasjon om eiendommen
Se komplett salgsoppgaveNyttige lenker
Nærområdet
EiendomsMegler 1 Stovner
Vi loser deg trygt gjennom hele boligsalget
Annonseinformasjon
| FINN-kode | 442853082 |
|---|---|
| Sist endret | 31. des. 2025 22:15 |
| Referanse | 3286250525 |
Annonsene kan være mangelfulle i forhold til lovpålagt opplysningsplikt. Før bindende avtale inngås oppfordres interessenter til å innhente komplett informasjon fra meglerforetaket, selger eller utleier.
































































