Bildegalleri

Velkommen til Solbakken 15! Presentert av Per Henrik Rolfsen v/Eiendomsmeglerne. Foto: Morten Eriksen
Eidsvoll Verk
Stor og moderne tomannsbolig fra 2020 | Solrike uteplasser med takterrasse | Garasje m/elbil-lader | Familievennlig
Prisantydning7 250 000 kr
Nøkkelinfo
- Boligtype
- Tomannsbolig
- Eieform
- Eier (Selveier)
- Soverom
- 5
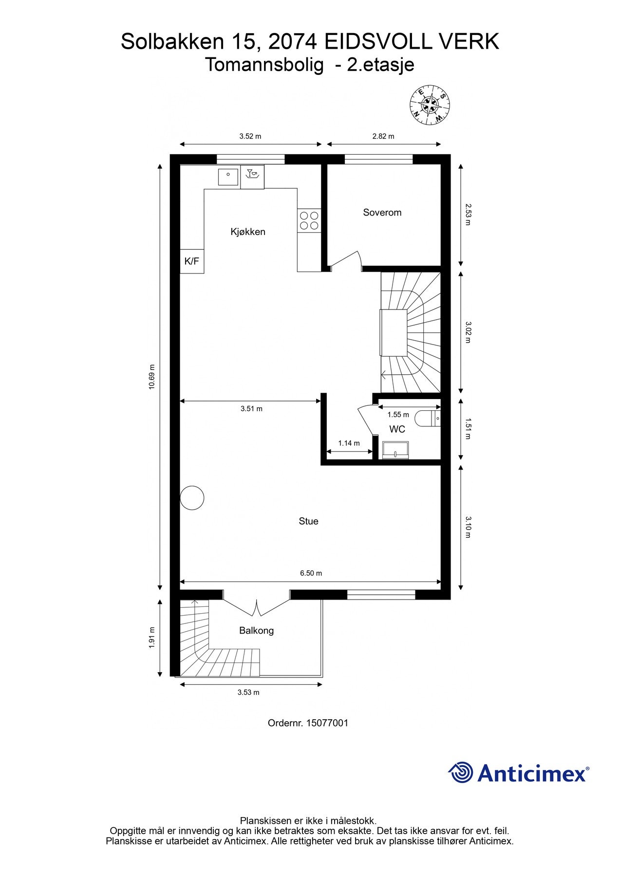
- Internt bruksareal
- 171 m² (BRA-i)
- Bruksareal
- 197 m²
- Eksternt bruksareal
- 26 m² (BRA-e)
- Balkong/Terrasse
- 59 m² (TBA)
- Byggeår
- 2020
- Energimerking
- B - Oransje
- Rom
- 7
- Tomteareal
- 271 m² (eiet)
Fasiliteter
Barnevennlig
Balkong/Terrasse
Garasje/P-plass
Kabel-TV
Offentlig vann/kloakk
Parkett
Peis/Ildsted
Utsikt
Sentralt
Bredbåndstilknytning
Moderne
Rolig
Lademulighet
Balansert ventilasjon
Visning
søndag, 11. januar
13:00 – 14:00
Velkommen til visning. Kontakt megler for privatvisning hvis oppsatt tidspunkt ikke passer.
mandag, 12. januar
17:00 – 18:00
Velkommen til visning. Kontakt megler for privatvisning hvis oppsatt tidspunkt ikke passer.
Om boligen
Velkommen til Solbakken 15!
Presentert av Per Henrik Rolfsen i Eiendomsmeglerne.
Moderne og innholdsrik tomannsbolig fra 2020, beliggende i et rolig og etablert boligområde på Solbakken i Eidsvoll Verk. Boligen går over tre plan og har en funksjonell planløsning med gode lysforhold og flere attraktive uteplasser, herunder takterrasse, balkonger og terrasseplatting. Integrert garasje med elbil-lader.
Boligen inneholder totalt fem soverom, flere bad/wc, romslig stue med åpen kjøkkenløsning samt gode oppbevaringsmuligheter.
Kort fortalt:
Presentert av Per Henrik Rolfsen i Eiendomsmeglerne.
Moderne og innholdsrik tomannsbolig fra 2020, beliggende i et rolig og etablert boligområde på Solbakken i Eidsvoll Verk. Boligen går over tre plan og har en funksjonell planløsning med gode lysforhold og flere attraktive uteplasser, herunder takterrasse, balkonger og terrasseplatting. Integrert garasje med elbil-lader.
Boligen inneholder totalt fem soverom, flere bad/wc, romslig stue med åpen kjøkkenløsning samt gode oppbevaringsmuligheter.
Kort fortalt:
- Tomannsbolig fra 2020
- Enstavsparkett
- 5 soverom
- Bolig over tre plan
- Takterrasse, balkonger og terrasseplatting
- Integrert garasje med elbil-lader
- Balansert ventilasjon
- Gulvvarme i alle rom (unntatt i soverommene)
- Peisovn i stue
- Barnevennlig beliggenhet
- Kun TG1
Velkommen til visning!
NB: Knappen for å vise hele beskrivelsen har kun en visuell effekt.
NB: Knappen for å vise hele beskrivelsen har kun en visuell effekt.
Salgsoppgaven beskriver vesentlig og lovpålagt informasjon om eiendommen
Se komplett salgsoppgaveNærområdet
Eiendomsmeglerne AS
Erfaring og lokalkunnskap
Annonseinformasjon
| FINN-kode | 442813263 |
|---|---|
| Sist endret | 05. jan. 2026 09:00 |
| Referanse | 202250247 |
Annonsene kan være mangelfulle i forhold til lovpålagt opplysningsplikt. Før bindende avtale inngås oppfordres interessenter til å innhente komplett informasjon fra meglerforetaket, selger eller utleier.


























































