Bildegalleri

Velkommen til Nyhavn 6E - presentert av Børge Systad i Eiendomsmegler Norge
Solgt
Unik og påkostet bryggeleilighet over to plan | 2 soverom, 2 bad, walk-in-closet og felles takterrasse!
Prisantydning6 490 000 kr
Nøkkelinfo
- Boligtype
- Leilighet
- Eieform
- Selveier
- Soverom
- 2
- Internt bruksareal
- 95 m² (BRA-i)
- Bruksareal
- 100 m²
- Eksternt bruksareal
- 5 m² (BRA-e)
- Etasje
- 1
- Byggeår
- 2019
- Energimerking
- Rom
- 3
- Tomteareal
- 1 516 m² (eiet)
Fasiliteter
Takterrasse
Barnevennlig
Bredbåndstilknytning
Heis
Parkett
Sentralt
Bademulighet
Fiskemulighet
Turterreng
Balansert ventilasjon
Om boligen
Eiendomsmegler Norge har gleden av å presentere denne unike leiligheten i vakre Nyhavn!
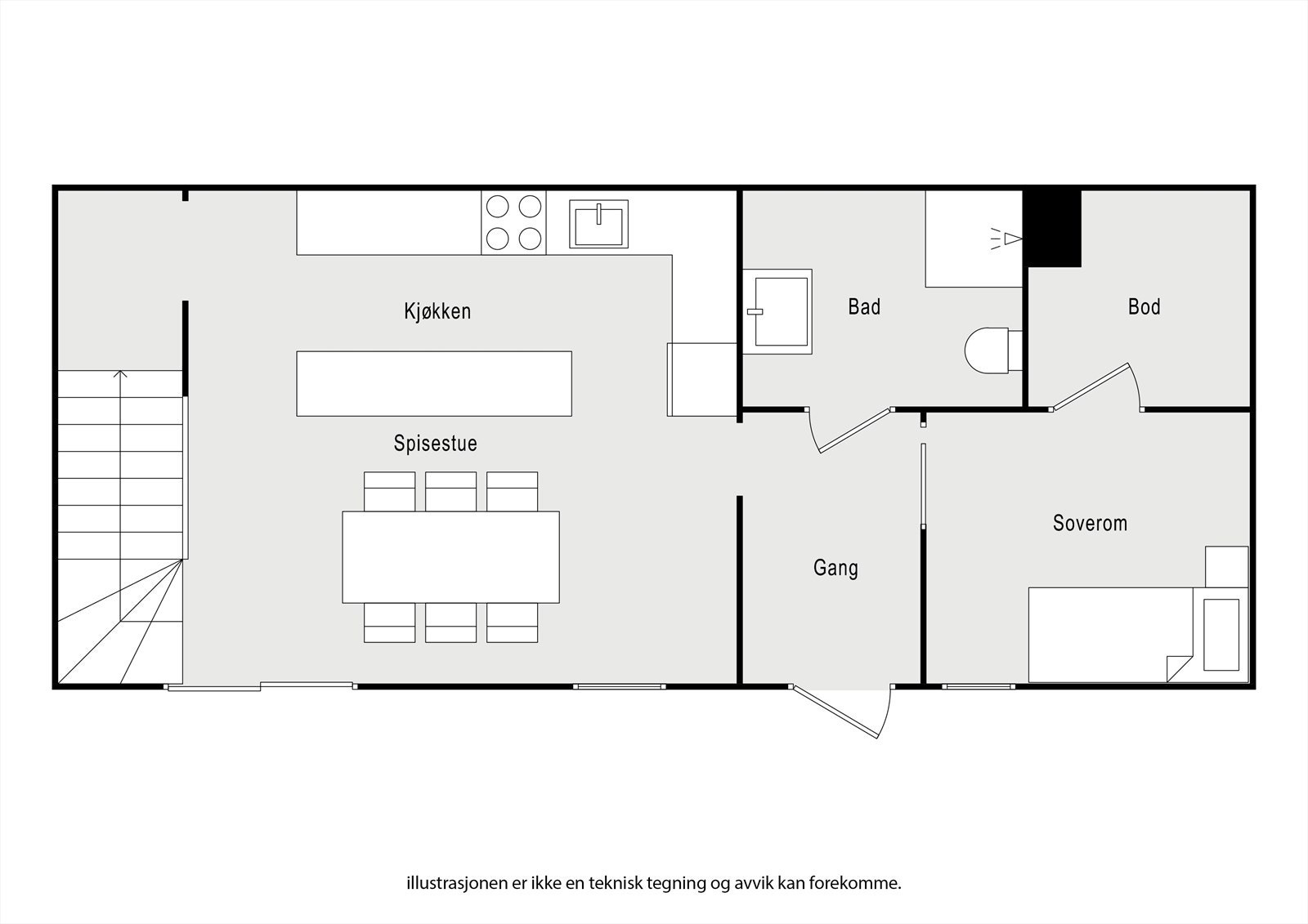
Her er ingenting er overlatt til tilfeldighetene hva gjelder planløsning, materialvalg og farger. Leiligheten ble vesentlig oppgradert utover prosjektert standard og har bl.a. to flotte baderom, nydelig Norema-kjøkken med integrerte hvitevarer, 1-stavs eikeparkett, vannbåren varme (stue/kjøkken i 1. etasje), spesialbygget eiketrapp med glassrekkverk m.m.
Nyhavn er et sentralt og meget ettertraktet område i Sandviken. Her bor du i flotte omgivelser - rett ved sjøen. Like utenfor bygget er en nydelig badebrygge som kan nytes på flotte sommerdager. Umiddelbar nærhet til Joker Nyhavn (søndagsåpen), samt kort gangavstand til busstopp og flotte turmuligheter.
Garasjeplass kan kjøpes mot tillegg.
Her er ingenting er overlatt til tilfeldighetene hva gjelder planløsning, materialvalg og farger. Leiligheten ble vesentlig oppgradert utover prosjektert standard og har bl.a. to flotte baderom, nydelig Norema-kjøkken med integrerte hvitevarer, 1-stavs eikeparkett, vannbåren varme (stue/kjøkken i 1. etasje), spesialbygget eiketrapp med glassrekkverk m.m.
Nyhavn er et sentralt og meget ettertraktet område i Sandviken. Her bor du i flotte omgivelser - rett ved sjøen. Like utenfor bygget er en nydelig badebrygge som kan nytes på flotte sommerdager. Umiddelbar nærhet til Joker Nyhavn (søndagsåpen), samt kort gangavstand til busstopp og flotte turmuligheter.
Garasjeplass kan kjøpes mot tillegg.
NB: Knappen for å vise hele beskrivelsen har kun en visuell effekt.
NB: Knappen for å vise hele beskrivelsen har kun en visuell effekt.
Salgsoppgaven beskriver vesentlig og lovpålagt informasjon om eiendommen
Se komplett salgsoppgaveNyttige lenker
Nærområdet
Eiendomsmegler Norge Fana
Best der du bor
Annonseinformasjon
| FINN-kode | 442676762 |
|---|---|
| Sist endret | 02. apr. 2026 16:44 |
| Referanse | 14250186 |
Annonsene kan være mangelfulle i forhold til lovpålagt opplysningsplikt. Før bindende avtale inngås oppfordres interessenter til å innhente komplett informasjon fra meglerforetaket, selger eller utleier.







































