Bildegalleri

Velkommen til Radioveien 13E, et flott beliggende enderekkehus i populært sameie. Privat takterrasse. Foto: Hanne Bruland
Radioveien v/Frysja
Moderne enderekkehus fra 2015 over 3 etg.+ stor takterrasse m. utsikt, carport m/lader | Barnevennlig beliggenhet
Prisantydning13 350 000 kr
Nøkkelinfo
- Boligtype
- Rekkehus
- Eieform
- Eier (Selveier)
- Soverom
- 3
- Internt bruksareal
- 125 m² (BRA-i)
- Bruksareal
- 125 m²
- Balkong/Terrasse
- 47 m² (TBA)
- Byggeår
- 2015
- Energimerking
- C - Rød
- Rom
- 5
- Tomteareal
- 2 646 m² (eiet)
Fasiliteter
Takterrasse
Balkong/Terrasse
Barnevennlig
Garasje/P-plass
Hage
Peis/Ildsted
Rolig
Sentralt
Utsikt
Bademulighet
Turterreng
Lademulighet
Balansert ventilasjon
Om boligen
Velkommen til Radioveien 13E
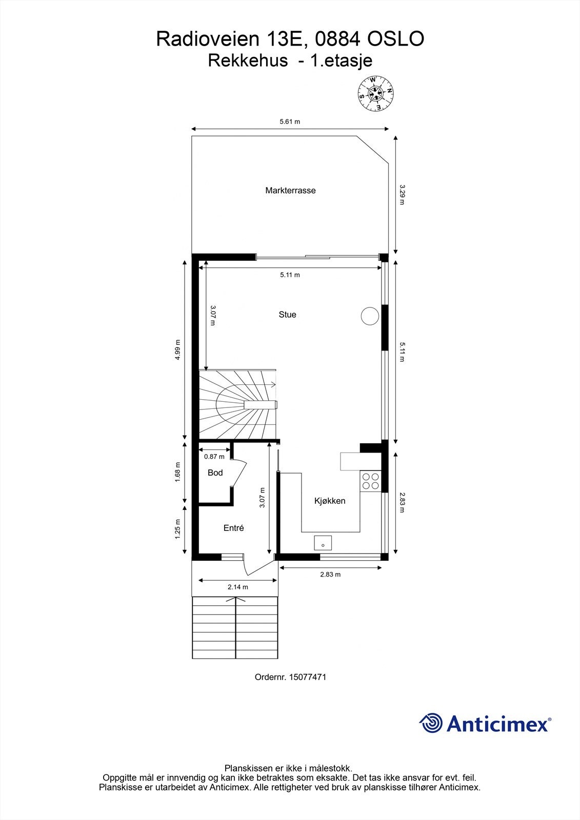
Et moderne og familievennlig enderekkehus fra 2015 med attraktiv beliggenhet i et rolig og markanært område. Boligen går over tre plan + takterrasse og byr på gjennomtenkte løsninger med gode lysforhold. Her får du stor markterrasse med direkte utgang fra stue, samt en romslig takterrasse med vid utsikt og gode solforhold. Eiendommen har i tillegg koselige uteplasser, samt carportplass med elbillader.
Planløsningen gir en åpen og luftig stue-/kjøkkenløsning, tre soverom og to bad, i tillegg til vaskerom. Kort vei til kafé, matbutikker, badeplass og gode kollektivforbindelser gjør hverdagen enkel. Et trygt og sosialt bomiljø med godt naboskap og nærhet til både by og marka.
Et moderne og familievennlig enderekkehus fra 2015 med attraktiv beliggenhet i et rolig og markanært område. Boligen går over tre plan + takterrasse og byr på gjennomtenkte løsninger med gode lysforhold. Her får du stor markterrasse med direkte utgang fra stue, samt en romslig takterrasse med vid utsikt og gode solforhold. Eiendommen har i tillegg koselige uteplasser, samt carportplass med elbillader.
Planløsningen gir en åpen og luftig stue-/kjøkkenløsning, tre soverom og to bad, i tillegg til vaskerom. Kort vei til kafé, matbutikker, badeplass og gode kollektivforbindelser gjør hverdagen enkel. Et trygt og sosialt bomiljø med godt naboskap og nærhet til både by og marka.
NB: Knappen for å vise hele beskrivelsen har kun en visuell effekt.
NB: Knappen for å vise hele beskrivelsen har kun en visuell effekt.
Salgsoppgaven beskriver vesentlig og lovpålagt informasjon om eiendommen
Se komplett salgsoppgaveNyttige lenker
Nærområdet
Krogsveen Grefsen
Velkommen til en enklere boligreise.
Annonseinformasjon
| FINN-kode | 442652430 |
|---|---|
| Sist endret | 06. jan. 2026 11:42 |
| Referanse | KR41.25110 |
Annonsene kan være mangelfulle i forhold til lovpålagt opplysningsplikt. Før bindende avtale inngås oppfordres interessenter til å innhente komplett informasjon fra meglerforetaket, selger eller utleier.





























































