Bildegalleri

Velkommen til Sandvedbøen 138 v/ Veronica Berge Olsen, Eiendomsmegler Norge.
Sandved
Flott og romslig leilighet over to plan med attraktiv og barnevennlig beliggenhet - Garasjeplass og utvendig parkering
Prisantydning3 750 000 kr
Nøkkelinfo
- Boligtype
- Leilighet
- Eieform
- Andel
- Soverom
- 1
- Internt bruksareal
- 111 m² (BRA-i)
- Bruksareal
- 115 m²
- Eksternt bruksareal
- 4 m² (BRA-e)
- Balkong/Terrasse
- 7 m² (TBA)
- Etasje
- 2
- Byggeår
- 1993
- Energimerking
- D - Rød
- Rom
- 2
- Tomteareal
- 1 357 m² (eiet)
Fasiliteter
Balkong/Terrasse
Garasje/P-plass
Kjæledyr tillatt
Parkett
Sentralt
Turterreng
Lademulighet
Visning
mandag, 12. januar
16:00 – 17:30
Velkommen til visning! Husk å melde deg på visningen ved å trykke på knappen visningspåmelding under, eller ta kontakt med megler for å gjøre en avtale. Visninger uten påmeldte blir avlyst.
VisningspåmeldingOm boligen
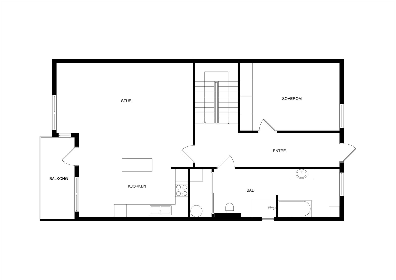
Denne flotte leiligheten over to plan byr på en perfekt kombinasjon av romslighet og praktisk beliggenhet. Hjemmet fremstår som innbydende og stilfullt med en trivelig atmosfære. To parkeringer.
Her har man optimal planløsning som vil passe mange med blant annet 4 soverom og 2 bad (soverom og bad på loft er ikke godkjent). Gjennomgående flotte farge- og materialvalg. Det er kort avstand til Sandnes sentrum og enkel tilkomst til E39. Sandvedparken ligger også like i nærheten og er et flott turområde for hele familien. Nærhet til skoler barnehager, togstasjon m.m. Dagligvarebutikk og bussholdeplass i umiddelbar nærhet.
Med flotte turområder, kort vei til Sandnes sentrum og enkel adkomst til E39 bor du her både sentralt og naturskjønt perfekt for deg som vil ha det beste av to verdener.
Her har man optimal planløsning som vil passe mange med blant annet 4 soverom og 2 bad (soverom og bad på loft er ikke godkjent). Gjennomgående flotte farge- og materialvalg. Det er kort avstand til Sandnes sentrum og enkel tilkomst til E39. Sandvedparken ligger også like i nærheten og er et flott turområde for hele familien. Nærhet til skoler barnehager, togstasjon m.m. Dagligvarebutikk og bussholdeplass i umiddelbar nærhet.
Med flotte turområder, kort vei til Sandnes sentrum og enkel adkomst til E39 bor du her både sentralt og naturskjønt perfekt for deg som vil ha det beste av to verdener.
NB: Knappen for å vise hele beskrivelsen har kun en visuell effekt.
NB: Knappen for å vise hele beskrivelsen har kun en visuell effekt.
Salgsoppgaven beskriver vesentlig og lovpålagt informasjon om eiendommen
Se komplett salgsoppgaveNyttige lenker
Nærområdet
Eiendomsmegler Norge Stavanger
Det viktigste stedet i Norge er der du bor
Annonseinformasjon
| FINN-kode | 442551995 |
|---|---|
| Sist endret | 02. jan. 2026 16:16 |
| Referanse | 20250210 |
Annonsene kan være mangelfulle i forhold til lovpålagt opplysningsplikt. Før bindende avtale inngås oppfordres interessenter til å innhente komplett informasjon fra meglerforetaket, selger eller utleier.





































