Bildegalleri

Velkommen til Viulvegen 15A presentert av DNB Eiendom v/ Joachim Vågen.
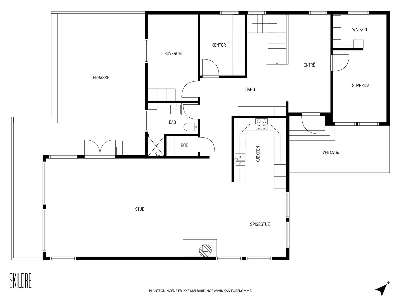
Familievennlig og Innholdsrik enebolig - Attraktiv beliggenhet - Gode solforhold og fine uteplasser - Dobbelgarasje
Prisantydning5 790 000 kr
Nøkkelinfo
- Boligtype
- Enebolig
- Eieform
- Eier (Selveier)
- Soverom
- 4
- Internt bruksareal
- 220 m² (BRA-i)
- Bruksareal
- 273 m²
- Eksternt bruksareal
- 53 m² (BRA-e)
- Balkong/Terrasse
- 44 m² (TBA)
- Etasje
- 2
- Byggeår
- 1957
- Energimerking
- G - Oransje
- Tomteareal
- 886 m² (eiet)
Fasiliteter
Balkong/Terrasse
Barnevennlig
Garasje/P-plass
Hage
Offentlig vann/kloakk
Peis/Ildsted
Rolig
Sentralt
Utsikt
Turterreng
Visning
tirsdag, 10. februar
16:30 – 17:30
Våre visninger har påmelding. Dette gjør vi for å kunne yte bedre service for våre kunder. Verdifullt for boligkjøper og for oss. Vi anbefaler at salgsoppgaven leses før visning, og ring oss gjerne på forhånd for spørsmål om boligen. Passer ikke angitt tidspunkt, ta kontakt så finner vi en løsning. Skulle det mot formodning ikke være påmeldte 4 timer før angitt visningstidspunkt vil ikke visning bli gjennomført.
VisningspåmeldingOm boligen
Velkommen til Viulvegen 15A - en velholdt og innholdsrik enebolig beliggende i et barnevennlig område. Her har du gangavstand til skoler, barnehage, lekeplass og idrettsanlegg. Eiendommen ligger like nordøst for Brumunddal sentrum i et attraktivt boligområde.
Eiendommen har en rekke gode kvaliteter:
Eiendommen har en rekke gode kvaliteter:
- Stort bruksareal på hele 273 kvm
- Familievennlig beliggenhet
- Gangavstand til skole, barnehage og idrettsanlegg
- Solrike uteplasser
- 4 soverom
- Dobbel garasje + flere biloppstillingsplasser på egen tomt
- Peisovn og varmepumpe
- Gode bodarealer i kjeller
- Tilbygget stue fra 2013
NB: Knappen for å vise hele beskrivelsen har kun en visuell effekt.
NB: Knappen for å vise hele beskrivelsen har kun en visuell effekt.
Salgsoppgaven beskriver vesentlig og lovpålagt informasjon om eiendommen
Se komplett salgsoppgaveNyttige lenker
Nærområdet
DNB Eiendom AS
Fra hjem til hjem
Annonseinformasjon
| FINN-kode | 442549235 |
|---|---|
| Sist endret | 31. jan. 2026 10:07 |
| Referanse | 517250157 |
Annonsene kan være mangelfulle i forhold til lovpålagt opplysningsplikt. Før bindende avtale inngås oppfordres interessenter til å innhente komplett informasjon fra meglerforetaket, selger eller utleier.

















































