Bildegalleri

Velkommen til Tollbugata 13, presentert av Emma Uhrberg ved EIE eiendomsmegling! Foto: Arne N. Schram.
KVADRATUREN / POSTHALLEN / OSLO SENTRUM
Stilren & unik 2-roms av god standard | Privat takterrasse på 12 kvm | Heis | Fyring, VV & internett inkl. | Sentralt
Prisantydning4 790 000 kr
Nøkkelinfo
- Boligtype
- Leilighet
- Eieform
- Eier (Selveier)
- Soverom
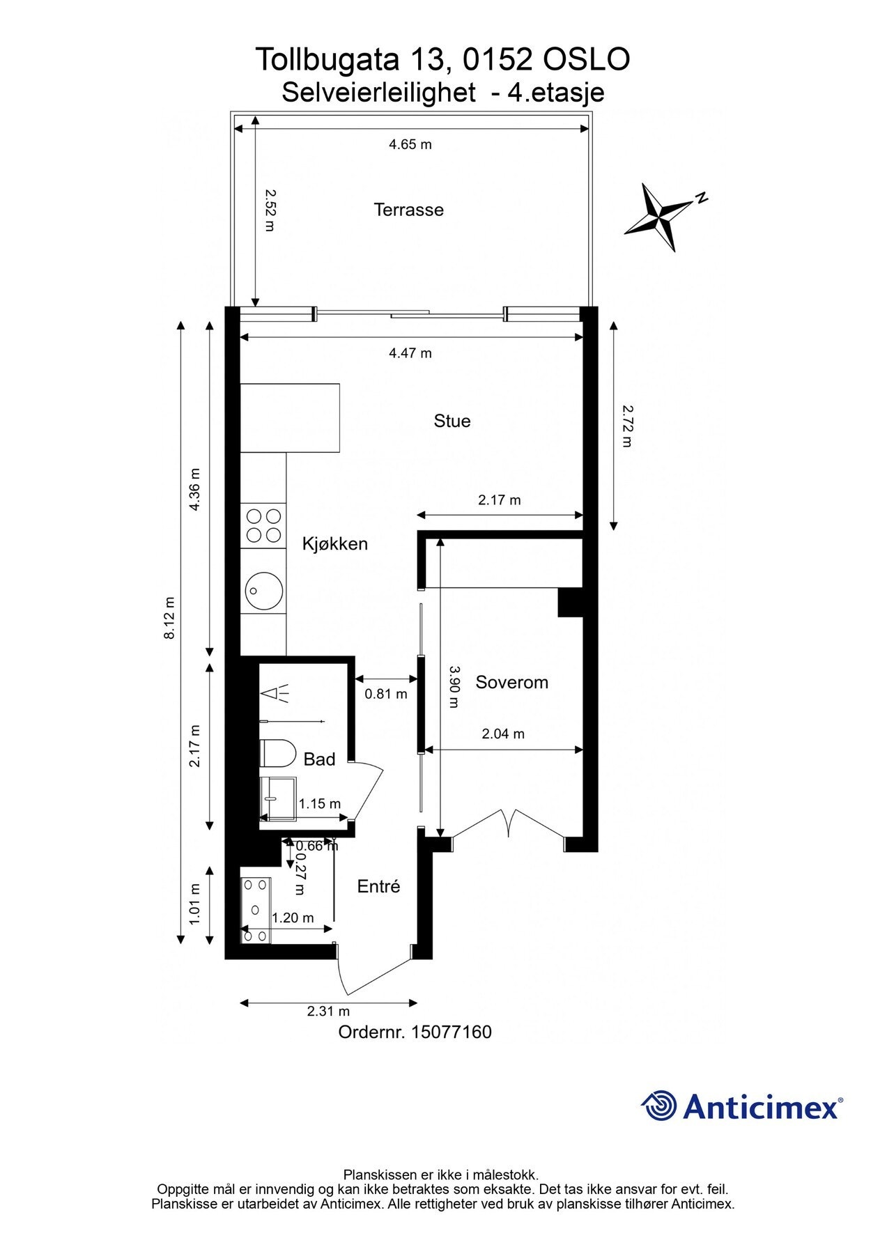
- 1
- Internt bruksareal
- 33 m² (BRA-i)
- Bruksareal
- 39 m²
- Eksternt bruksareal
- 6 m² (BRA-e)
- Balkong/Terrasse
- 12 m² (TBA)
- Etasje
- 4
- Byggeår
- 1916
- Energimerking
- G - Mørkegrønn
- Rom
- 2
- Tomteareal
- 4 654 m² (eiet)
Fasiliteter
Balkong/Terrasse
Kabel-TV
Heis
Offentlig vann/kloakk
Parkett
Vaktmester-/vektertjeneste
Fellesvaskeri
Sentralt
Bredbåndstilknytning
Moderne
Rolig
Balansert ventilasjon
Visning
søndag, 11. januar
12:00 – 13:00
For å yte premium rådgivning, har alle våre visninger påmelding. Dette sikrer at megler har god oversikt og tid til å imøtekomme alle interessenter på aller beste måte. Velkommen!
tirsdag, 13. januar
17:30 – 18:30
For å yte premium rådgivning, har alle våre visninger påmelding. Dette sikrer at megler har god oversikt og tid til å imøtekomme alle interessenter på aller beste måte. Velkommen!
Om boligen
Velkommen til Tollbugata 13! Her får du en unik og stilren 2-roms beliggende i 4. etasje i ikoniske Posthallen, midt i hjertet av Oslo sentrum. Her bor du i sentrum av alt, samtidig som leiligheten vender inn mot rolig bakgård og byr på en sjelden kombinasjon av urban puls og tilbaketrukket ro.
Leiligheten har en effektiv planløsning med entré, luftig stue med åpen løsning mot kjøkken og god takhøyde på 2,9 m. Store vindusflater og skyvedør gir rikelig lys og utgang til solrik terrasse på 12 kvm med gode solforhold. Kjøkkenet er tidsriktig og funksjonelt, og spisebord med ekstra plate gir plass til 3-6 personer. Romslig soverom m/ skyvedørsgarderobe, samt tidsriktig bad med gulvvarme.
Bygget ble totalrenovert og ombygget til leiligheter i 2006. Sameiet tilbyr takterrasser med flott utsikt, heis, kjellerbod på 6 kvm, sykkelrom og toppmoderne treningssenter i bygget. Døgnåpen Joker dagligvare i byggets 1. etasje. Umiddelbar nærhet til Operaen, Barcode, Sørenga, Aker Brygge og Oslo S.
Leiligheten har en effektiv planløsning med entré, luftig stue med åpen løsning mot kjøkken og god takhøyde på 2,9 m. Store vindusflater og skyvedør gir rikelig lys og utgang til solrik terrasse på 12 kvm med gode solforhold. Kjøkkenet er tidsriktig og funksjonelt, og spisebord med ekstra plate gir plass til 3-6 personer. Romslig soverom m/ skyvedørsgarderobe, samt tidsriktig bad med gulvvarme.
Bygget ble totalrenovert og ombygget til leiligheter i 2006. Sameiet tilbyr takterrasser med flott utsikt, heis, kjellerbod på 6 kvm, sykkelrom og toppmoderne treningssenter i bygget. Døgnåpen Joker dagligvare i byggets 1. etasje. Umiddelbar nærhet til Operaen, Barcode, Sørenga, Aker Brygge og Oslo S.
NB: Knappen for å vise hele beskrivelsen har kun en visuell effekt.
NB: Knappen for å vise hele beskrivelsen har kun en visuell effekt.
Salgsoppgaven beskriver vesentlig og lovpålagt informasjon om eiendommen
Se komplett salgsoppgaveNyttige lenker
Nærområdet
EIE eiendomsmegling Røa, Skøyen og Ullern
Annonseinformasjon
| FINN-kode | 442527710 |
|---|---|
| Sist endret | 04. jan. 2026 09:30 |
| Referanse | 50250367 |
Annonsene kan være mangelfulle i forhold til lovpålagt opplysningsplikt. Før bindende avtale inngås oppfordres interessenter til å innhente komplett informasjon fra meglerforetaket, selger eller utleier.


































