Bildegalleri

Velkommen til Skogsåsen 22C - presentert av Sebastian Håbesland v/Krogsveen - flott beliggende rekkehus fra 2021 i et svært barnevennlig boområde - foto: Oddphoto
Solgt
SKOGSÅSEN
Moderne bolig over 2 plan fra 2021 - solrike uteplasser - 4 soverom - garasje - meget barnevennlig område - nær marka
Prisantydning7 300 000 kr
Nøkkelinfo
- Boligtype
- Rekkehus
- Eieform
- Eier (Selveier)
- Soverom
- 4
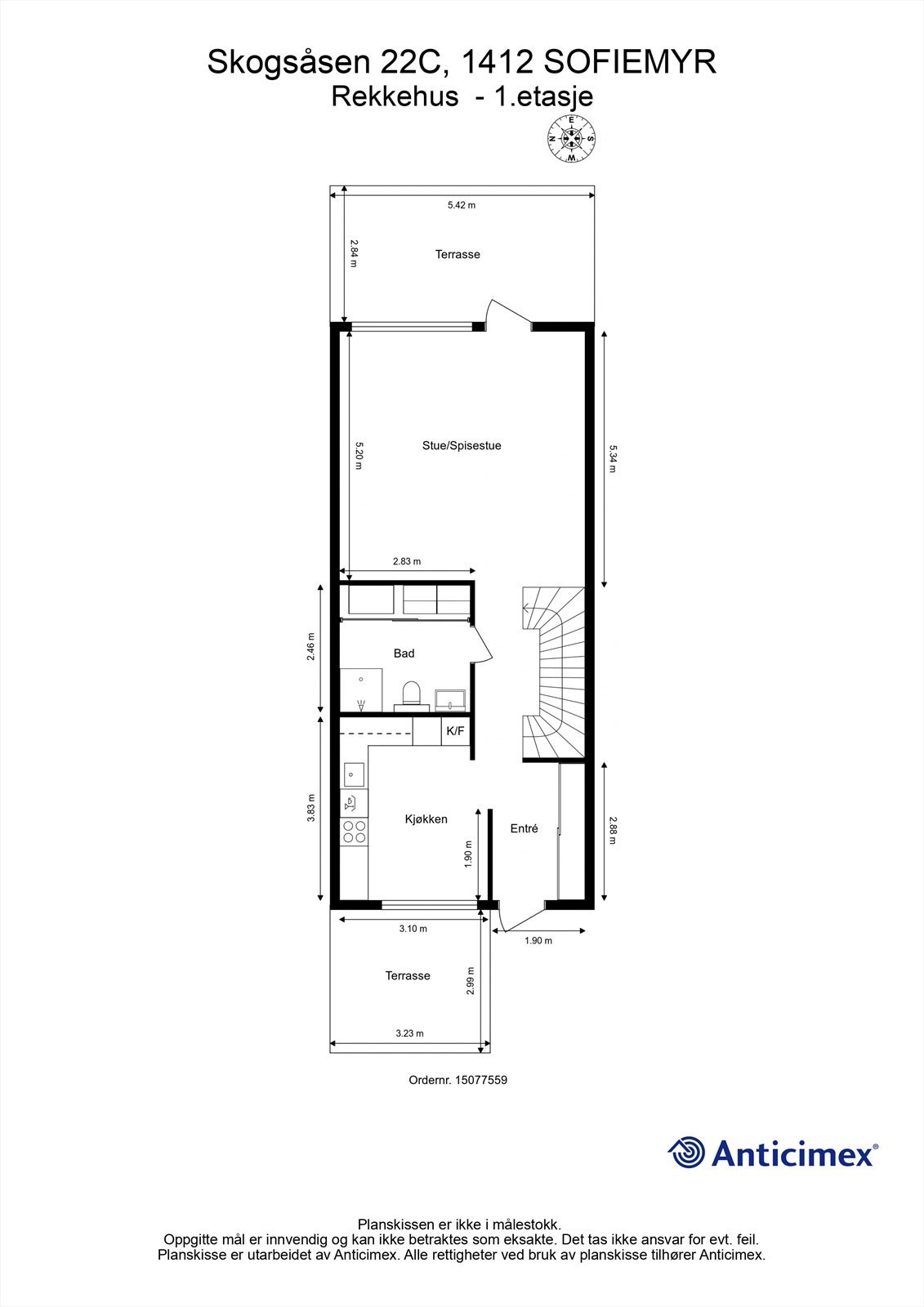
- Internt bruksareal
- 122 m² (BRA-i)
- Bruksareal
- 122 m²
- Balkong/Terrasse
- 25 m² (TBA)
- Byggeår
- 2021
- Energimerking
- B - Rød
- Tomteareal
- 124 m² (eiet)
Fasiliteter
Balkong/Terrasse
Barnevennlig
Garasje/P-plass
Kjæledyr tillatt
Sentralt
Turterreng
Lademulighet
Balansert ventilasjon
Om boligen
Flott beliggende rekkehus fra 2021 i et svært barnevennlig boområde. Boligen inneholder blant annet kjøkken med spiseplass, stue, 4 soverom og 2 bad. Rolig beliggenhet med lite biltrafikk. Sentralt med nærhet til marka.
- 2 solrike uteplasser med gode solforhold
- Kort gangavstand til garasjeplass med elbil-lader
- Gjennomgående bolig med gode lysforhold
- God lagringsplass med to romslige boder (én innebod og én utebod)
- Balansert ventilasjon
- Gangavstand til barnehager og skoler. Nær Myrvoll stasjon med dagligvarebutikk, café, frisør, m.m
- Kort vei til togstasjon med hyppige avganger til Oslo og Ski. Ca 20 min til Oslo S med tog
- Garanti fra utbygger i 5 år etter at boligen er oppført
NB: Knappen for å vise hele beskrivelsen har kun en visuell effekt.
NB: Knappen for å vise hele beskrivelsen har kun en visuell effekt.
Salgsoppgaven beskriver vesentlig og lovpålagt informasjon om eiendommen
Se komplett salgsoppgaveNyttige lenker
Nærområdet
Krogsveen Kolbotn
Verdien av en god megler.
Annonseinformasjon
| FINN-kode | 442525251 |
|---|---|
| Sist endret | 24. jan. 2026 11:09 |
| Referanse | KR49.25100 |
Annonsene kan være mangelfulle i forhold til lovpålagt opplysningsplikt. Før bindende avtale inngås oppfordres interessenter til å innhente komplett informasjon fra meglerforetaket, selger eller utleier.




































