Bildegalleri

Ytre Vågsbygd/Brøvigkollen

Innholdsrik og velholdt enebolig med hybel-Flott utsikt-Garasje-Store solrike uteplasser-Barnevennlig i blindvei

Prisantydning5 950 000 kr
Totalpris
6 117 840 kr
Omkostninger
167 840 kr
Kommunale avg.
13 274 kr per år
Eiendomsskatt
5 940 kr per år
Formuesverdi
1 371 537 kr

Nøkkelinfo

Boligtype
Enebolig
Eieform
Eier (Selveier)
Soverom
4
Internt bruksareal
210 m² (BRA-i)
Bruksareal
246 m²
Eksternt bruksareal
36 m² (BRA-e)
Balkong/Terrasse
79 m² (TBA)
Etasje
3
Byggeår
1988
Energimerking
C
Rom
6
Tomteareal
930 m² (eiet)

Les mer om bruksareal her

Fasiliteter

Balkong/Terrasse
Barnevennlig
Bredbåndstilknytning
Garasje/P-plass
Hage
Offentlig vann/kloakk
Peis/Ildsted
Rolig
Sentralt
Utsikt
Turterreng

Visning

tirsdag, 03. mars
16:30 – 17:30
Eiendomsmegler Norge sine visninger har påmelding. Påmelding gjøres enkelt ved å benytte knappen under. Ta kontakt med megler dersom oppsatt tidspunkt ikke passer. Det vil ikke bli avholdt visning uten påmelding, frist for påmelding er senest kl. 12.00 på visningsdagen. Husk å laste ned salgsoppgaven digitalt før visning. Velkommen til en hyggelig visning!
Visningspåmelding

Om boligen

Romslig enebolig med nydelig utsikt over innseilinga og sjøen.

Boligen ligger høyt og luftig på ei av områdets beste tomter med usjenert beliggenhet, panoramautsikt over sjøen og sol fra morgen til kveld. Pent opparbeidet tomt med solrike og usjenerte uteplasser.
Populært og barnevennlig i blindvei.

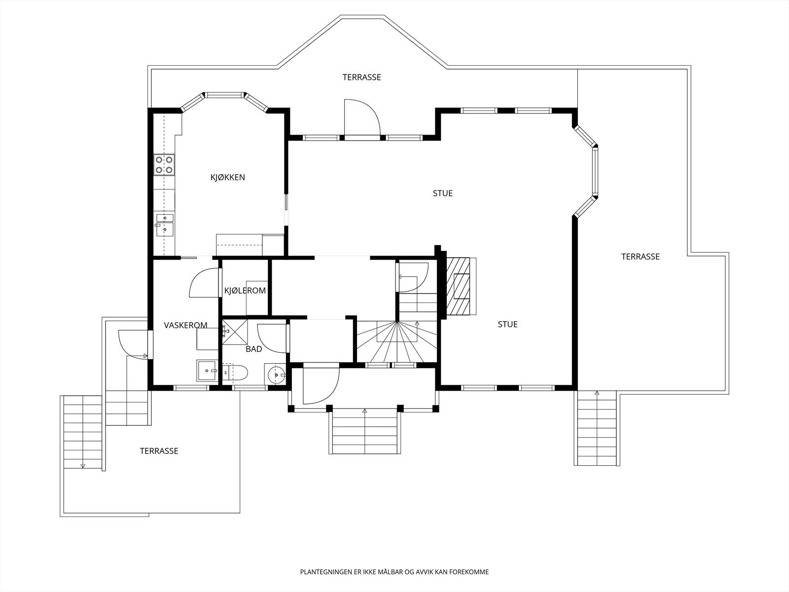
Hoveddel:

1. etg: Vindfang, gang, Separat wc med vask, stor og romslig vinkelstue med god plass for spisestue, kjøkken med hvitevarer og spiseplass, kjølerom og vaskerom.
2. etg: gang, bad/wc, loftstue/soverom og 2(3)soverom.
U. etg: Gang og stor bod.

Lys og trivelig hybel oppusset i (2022) med egen inngang og uteplass.
Gang, bad, stue, kjøkken, soverom og bod. Antatt utleieverdi er ca. kr. 10.000,- pr. mnd. + strøm.

Garasje med bod under og p-plasser på tomt.

Vel møtt!

Salgsoppgaven beskriver vesentlig og lovpålagt informasjon om eiendommen

Se komplett salgsoppgave

Nærområdet

Annonseinformasjon

FINN-kode442524404
Sist endret25. feb. 2026 11:42
Referanse50250284

Rapporter annonse

Annonsene kan være mangelfulle i forhold til lovpålagt opplysningsplikt. Før bindende avtale inngås oppfordres interessenter til å innhente komplett informasjon fra meglerforetaket, selger eller utleier.