Bildegalleri

Truls Martin Nygaard v/Nordvik Majorstuen har gleden av å presentere Sandakerveien 16D - Foto: Joakim Karlsen
Solgt
MYRENSKVARTALET PÅ TORSHOV
Moderne og stilren 4-roms fra 2020 | Solrik balkong på 10 kvm | Garasjeopsjon | IN-ordning | A-konto Fyring inkl.
Prisantydning8 700 000 kr
Nøkkelinfo
- Boligtype
- Leilighet
- Eieform
- Andel
- Soverom
- 3
- Internt bruksareal
- 80 m² (BRA-i)
- Bruksareal
- 85 m²
- Eksternt bruksareal
- 5 m² (BRA-e)
- Balkong/Terrasse
- 10 m² (TBA)
- Etasje
- 4
- Byggeår
- 2020
- Energimerking
- B - Mørkegrønn
- Rom
- 4
- Tomteareal
- 4 369 m² (eiet)
Fasiliteter
Balkong/Terrasse
Bredbåndstilknytning
Garasje/P-plass
Heis
Offentlig vann/kloakk
Parkett
Rolig
Sentralt
Vaktmester-/vektertjeneste
Om boligen
Truls Martin Nygaard v/ Nordvik Majorstuen har gleden av å presentere en moderne og attraktiv 4-roms leilighet med høy standard på populære Torshov.
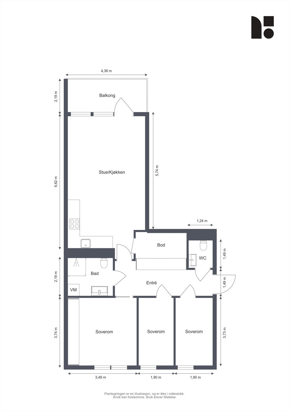
Leiligheten har en lys og romslig stue med åpen kjøkkenløsning, tre gode soverom, baderom og separat toalett. Fra stuen er det utgang til en stor, solrik balkong med gode møbleringsmuligheter. Det er mulighet for kjøp av garasjeplass med elbillader. Bygget er oppført i 2020 og har sonestyrt vannbåren gulvvarme inkludert i felleskostnadene. Beboerne har tilgang til et pent, lukket gårdsrom og en felles takterrasse med fantastisk panoramautsikt over Oslo.
- Bygg fra 2020 med høy standard
- Kjøper gis opsjon på garasje med lader til elbil, kr. 650 000
- Sonestyrt vannbåren gulvvarme
- Bod på 5 kvm
- 4. etasje
- Heis
- Felles takterrasse
Leiligheten har en lys og romslig stue med åpen kjøkkenløsning, tre gode soverom, baderom og separat toalett. Fra stuen er det utgang til en stor, solrik balkong med gode møbleringsmuligheter. Det er mulighet for kjøp av garasjeplass med elbillader. Bygget er oppført i 2020 og har sonestyrt vannbåren gulvvarme inkludert i felleskostnadene. Beboerne har tilgang til et pent, lukket gårdsrom og en felles takterrasse med fantastisk panoramautsikt over Oslo.
- Bygg fra 2020 med høy standard
- Kjøper gis opsjon på garasje med lader til elbil, kr. 650 000
- Sonestyrt vannbåren gulvvarme
- Bod på 5 kvm
- 4. etasje
- Heis
- Felles takterrasse
NB: Knappen for å vise hele beskrivelsen har kun en visuell effekt.
NB: Knappen for å vise hele beskrivelsen har kun en visuell effekt.
Salgsoppgaven beskriver vesentlig og lovpålagt informasjon om eiendommen
Se komplett salgsoppgaveNyttige lenker
Nærområdet
Nordvik Majorstuen
Annonseinformasjon
| FINN-kode | 442518962 |
|---|---|
| Sist endret | 23. jan. 2026 12:14 |
| Referanse | 8-0627/25 |
Annonsene kan være mangelfulle i forhold til lovpålagt opplysningsplikt. Før bindende avtale inngås oppfordres interessenter til å innhente komplett informasjon fra meglerforetaket, selger eller utleier.



































