Bildegalleri

EiendomsMegler 1 ved Martin Antonsen har gleden av å presentere Bynesveien 629!
Trolla/Flakk
INNHOLDSRIK FAMILIEBOLIG - LANDLIGE OMGIVELSER - GODE SOLFORHOLD - PARKERING - GOD KOLLEKTIV
Prisantydning6 590 000 kr
Nøkkelinfo
- Boligtype
- Enebolig
- Eieform
- Eier (Selveier)
- Soverom
- 4
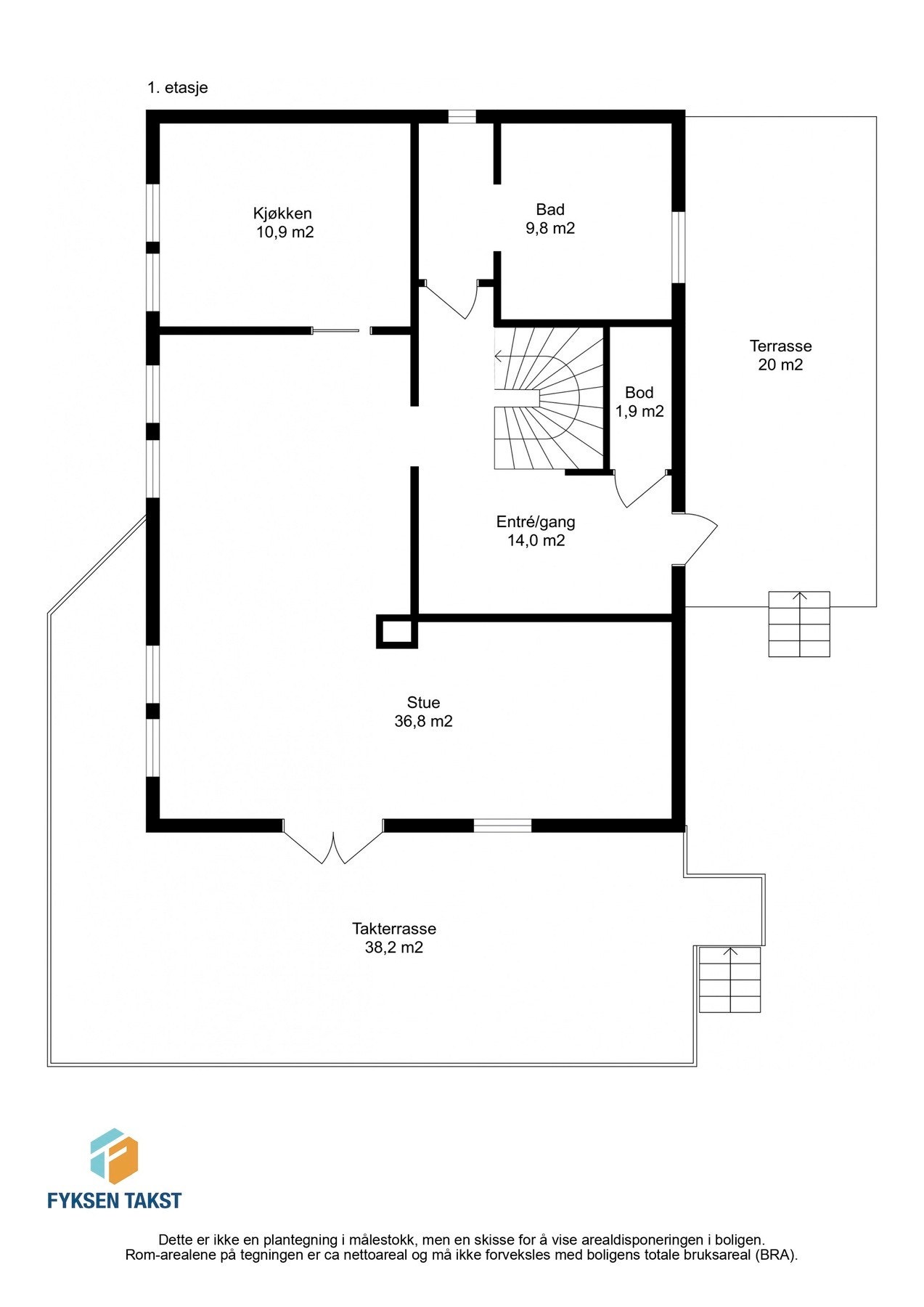
- Internt bruksareal
- 192 m² (BRA-i)
- Bruksareal
- 200 m²
- Eksternt bruksareal
- 8 m² (BRA-e)
- Balkong/Terrasse
- 61 m² (TBA)
- Etasje
- 3
- Byggeår
- 1998
- Energimerking
- C - Gul
- Rom
- 5
- Tomteareal
- 667 m² (eiet)
Fasiliteter
Barnevennlig
Balkong/Terrasse
Garasje/P-plass
Fiskemulighet
Offentlig vann/kloakk
Peis/Ildsted
Turterreng
Utsikt
Rolig
Bademulighet
Visning
tirsdag, 13. januar
15:30 – 16:30
Våre visninger har påmelding. Dette gjør vi for å kunne yte bedre service for våre kunder. Verdifullt for boligkjøper og for oss. Vi anbefaler at salgsoppgaven lastes ned digitalt før visning, og ring oss gjerne på forhånd for spørsmål om boligen. Passer ikke angitt tidspunkt, ta kontakt så finner vi en løsning. Skulle det mot formodning ikke være påmeldte til angitt visningstidspunkt vil ikke visning bli gjennomført.
Om boligen
Velkommen til Bynesveien 629!!
EiendomsMegler1 v/ Martin Antonsen har gleden av å presentere denne flotte og innholdsrike eneboligen på Flakk. Boligen er oppført i 3- etasjer. Boligen har et bruksareal på hele 200m² BRA.
Kvaliteter verdt å nevne:
- Boligen er på hele 200m² BRA.
- Velholdt tomt på hele 667m².
- Prakisk Kjøkken fra 2018 med god skap og benkeplass.
- Oppvarmning via elektrisitet, vedfyring og varmepumpe.
- God plass til parkering av flere biler i carport og på egen tomt.
- Takterrasse hvor man fint møblere med grill og utemøbler.
- Svært rolig og fredelig bolimorådet i landlige omgivelser.
:Velkommen til hyggelig visning!:
EiendomsMegler1 v/ Martin Antonsen har gleden av å presentere denne flotte og innholdsrike eneboligen på Flakk. Boligen er oppført i 3- etasjer. Boligen har et bruksareal på hele 200m² BRA.
Kvaliteter verdt å nevne:
- Boligen er på hele 200m² BRA.
- Velholdt tomt på hele 667m².
- Prakisk Kjøkken fra 2018 med god skap og benkeplass.
- Oppvarmning via elektrisitet, vedfyring og varmepumpe.
- God plass til parkering av flere biler i carport og på egen tomt.
- Takterrasse hvor man fint møblere med grill og utemøbler.
- Svært rolig og fredelig bolimorådet i landlige omgivelser.
:Velkommen til hyggelig visning!:
NB: Knappen for å vise hele beskrivelsen har kun en visuell effekt.
NB: Knappen for å vise hele beskrivelsen har kun en visuell effekt.
Salgsoppgaven beskriver vesentlig og lovpålagt informasjon om eiendommen
Se komplett salgsoppgaveNyttige lenker
Nærområdet
EiendomsMegler 1 Heimdal
Vi loser deg trygt gjennom hele boligsalget
Annonseinformasjon
| FINN-kode | 442518685 |
|---|---|
| Sist endret | 26. des. 2025 13:02 |
| Referanse | 31250785 |
Annonsene kan være mangelfulle i forhold til lovpålagt opplysningsplikt. Før bindende avtale inngås oppfordres interessenter til å innhente komplett informasjon fra meglerforetaket, selger eller utleier.


































