Bildegalleri

Velkommen til Stokkåsen 12 og Hus C!
Stokkåsen
Stilren enebolig på 200m² ferdigstilit 2025 | Uteplasser på 42m² | Gode solforhold | Carport | 3 bad | Praktikantdel
Prisantydning10 390 000 kr
Nøkkelinfo
- Boligtype
- Enebolig
- Eieform
- Eier (Selveier)
- Soverom
- 4
- Internt bruksareal
- 200 m² (BRA-i)
- Bruksareal
- 200 m²
- Balkong/Terrasse
- 42 m² (TBA)
- Etasje
- 2
- Byggeår
- 2025
- Rom
- 6
- Tomteareal
- 357 m² (eiet)
Fasiliteter
Balkong/Terrasse
Barnevennlig
Bredbåndstilknytning
Garasje/P-plass
Hage
Kabel-TV
Offentlig vann/kloakk
Rolig
Utsikt
Turterreng
Lademulighet
Balansert ventilasjon
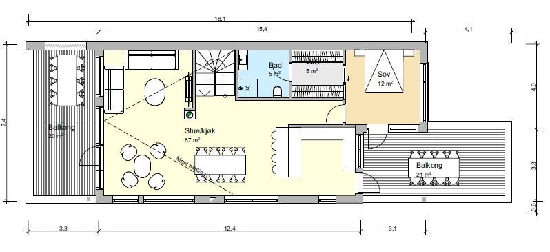
Om boligen
En delikat enebolig med moderne utforming og flott beliggenhet. Boligen går over to plan og er svært innholdsrik med blant annet egen praktikantdel, 3 baderom, vaskerom, 4 gode soverom hvor hovedsoverom har eget bad og walk-in closet. Stuen og kjøkkenet er i åpen løsning på hele 67m². Store vindusflater og meget god takhøyde gir en herlig romfølelse. Videre er det to verandaer på hver sin side av boligen som gir gode solforhold.
Kvaliteter
- Moderne og romslig enebolig på ca 200m² med egen carport.
- 2 balkonger på til sammen 42m²
- Eksepsjonell takhøyde i stuen
- Selveid tomt med eget hageareal
- Praktikantdel i boligen
- 5 års nybyggaranti fra desember 25
Ta kontakt med megler ved spørsmål eller ved ønske om visning!
Kvaliteter
- Moderne og romslig enebolig på ca 200m² med egen carport.
- 2 balkonger på til sammen 42m²
- Eksepsjonell takhøyde i stuen
- Selveid tomt med eget hageareal
- Praktikantdel i boligen
- 5 års nybyggaranti fra desember 25
Ta kontakt med megler ved spørsmål eller ved ønske om visning!
NB: Knappen for å vise hele beskrivelsen har kun en visuell effekt.
NB: Knappen for å vise hele beskrivelsen har kun en visuell effekt.
Salgsoppgaven beskriver vesentlig og lovpålagt informasjon om eiendommen
Se komplett salgsoppgaveNyttige lenker
Nærområdet
Heimdal Eiendomsmegling avd. Rosten
Annonseinformasjon
| FINN-kode | 442505520 |
|---|---|
| Sist endret | 19. des. 2025 08:32 |
| Referanse | 1-25-0503 |
Annonsene kan være mangelfulle i forhold til lovpålagt opplysningsplikt. Før bindende avtale inngås oppfordres interessenter til å innhente komplett informasjon fra meglerforetaket, selger eller utleier.









































