Bildegalleri

EIE eiendomsmegling v/ Andreas Forsell Lund og Julie Marie Vollan Brennvik ønsker velkommen til Flatåstoppen 13! Fotograf: Robin Syrstad v/ EFKT. Dette er en svært innbydende og meget godt vedlikeholdt enebolig med en gjennomgående god standard, funksjon

Flatåsen

Stor enebolig på Flatåstoppen med utleiemulighet i sokkeletg. Meget godt vedlikeholdt enebolig med fine uteal | Må sees!

Prisantydning9 190 000 kr
Totalpris
9 441 000 kr
Omkostninger
251 000 kr
Kommunale avg.
26 472 kr per år
Eiendomsskatt
10 396 kr per år
Formuesverdi
2 129 899 kr

Nøkkelinfo

Boligtype
Enebolig
Eieform
Eier (Selveier)
Soverom
5
Internt bruksareal
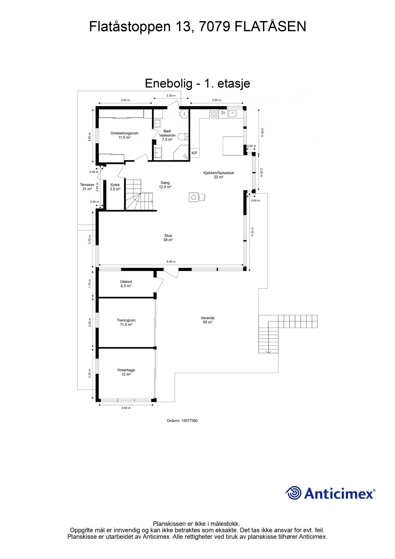
251 m² (BRA-i)
Bruksareal
292 m²
Eksternt bruksareal
85 m² (BRA-e)
Balkong/Terrasse
207 m² (TBA)
Byggeår
1986
Energimerking
E - Gul
Rom
7
Tomteareal
772 m² (eiet)

Les mer om bruksareal her

Fasiliteter

Barnevennlig
Balkong/Terrasse
Garasje/P-plass
Kabel-TV
Offentlig vann/kloakk
Peis/Ildsted
Turterreng
Utsikt
Aircondition
Bredbåndstilknytning
Moderne
Rolig
Lademulighet

Visning

onsdag, 07. januar
17:00 – 18:30
Visningspåmelding

Om boligen

EIE eiendomsmegling ved Andreas Forsell Lund og Julie Marie Vollan Brennvik ønsker velkommen til flotte Flatåstoppen 13!

Dette er en svært innbydende og meget godt vedlikeholdt enebolig med en gjennomgående god standard, funksjonell planløsning og høy bokvalitet.

Boligen inneholder en 2-roms utleiedel i sokkeletasje der man kan få gode leieinntekter.

Store fine uteareal med flere verandaer og plattinger.

Kjøkkenet ble byttet i 2023 & fremstår som moderne & tidsriktig, samtidig som det er et naturlig samlingspunkt i boligen. Stuen er romslig og luftig, med plass til flere soner.

Merk deg:
  • Boligens totale bruksareal 292 kvm
  • Stor tomt på 772 kvm
  • Lagt varmekabler i stue og soverom i kjeller
  • Utleiedel med skattefrie inntekter
  • Stor åpen løsning mellom kjøkken og stue. Store vindusflater med mye naturlig lys
  • Parkering i garasje og i innkjørsel

    Velkommen til hyggelig EIE-visning!

Salgsoppgaven beskriver vesentlig og lovpålagt informasjon om eiendommen

Se komplett salgsoppgave

Nærområdet

Annonseinformasjon

FINN-kode442468789
Sist endret29. des. 2025 20:12
Referanse97251227

Rapporter annonse

Annonsene kan være mangelfulle i forhold til lovpålagt opplysningsplikt. Før bindende avtale inngås oppfordres interessenter til å innhente komplett informasjon fra meglerforetaket, selger eller utleier.