Bildegalleri

Utmerket plassert leilighet i 4.etasje
Sandnes sentrum
Nyere, delikat leilighet på hjørnet i 4. etasje | Sørvendt | Heis | Vannbåren varme | Garasje | Utsikt mot vakker natur
Prisantydning5 590 000 kr
Nøkkelinfo
- Boligtype
- Leilighet
- Eieform
- Andel
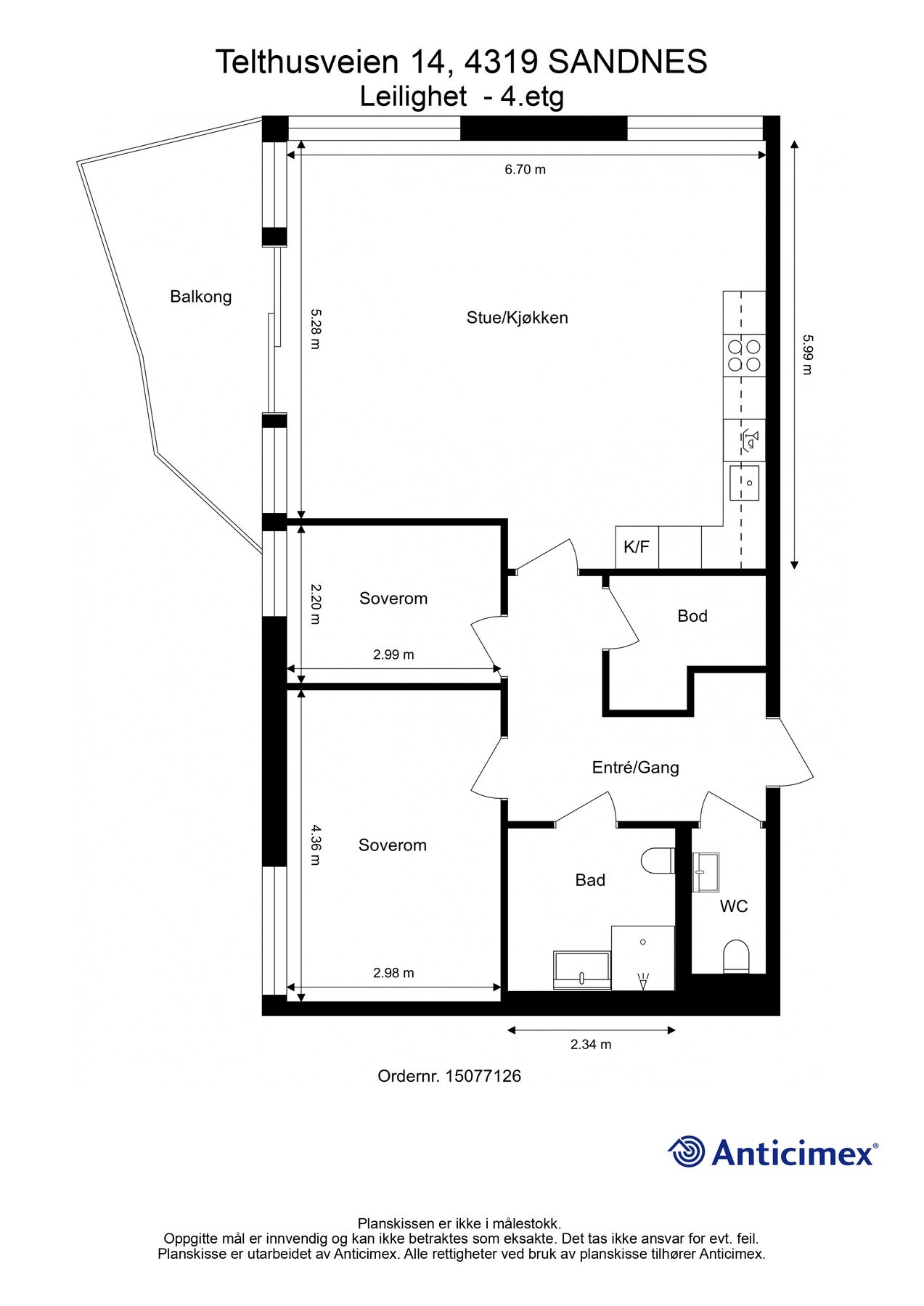
- Soverom
- 2
- Internt bruksareal
- 81 m² (BRA-i)
- Bruksareal
- 86 m²
- Eksternt bruksareal
- 5 m² (BRA-e)
- Balkong/Terrasse
- 9 m² (TBA)
- Etasje
- 4
- Byggeår
- 2023
- Energimerking
- A - Mørkegrønn
- Tomteareal
- 775 m² (eiet)
Fasiliteter
Barnevennlig
Balkong/Terrasse
Garasje/P-plass
Heis
Offentlig vann/kloakk
Turterreng
Utsikt
Bredbåndstilknytning
Moderne
Rolig
Lademulighet
Balansert ventilasjon
Visning
mandag, 12. januar
16:30 – 17:30
Meld deg på visning eller kontakt eiendomsmegler for privatvisning.
Visning blir ikke gjennomført uten påmeldte.
Om boligen
Vi har gleden av å presentere en nyere leilighet i 4. etasje i Rådhusmarka borettslag, tegnet av Helen & Hard Arkitekter. Leiligheten har gode solforhold hele året og ligger flott plassert på hjørne mot sørvest. Her får du en usjenert og flott beliggenhet med utsikt mot grønne omgivelser som gir leiligheten lys og fargetoner, alt etter årstidene, gjennom store vindusflater.
Leiligheten har gode praktiske løsninger, romslig gang, gjestetoalett samt to gode soverom og bod. Badet er delikat, har fliser og vannbåren varme i gulvet.
Kvadratisk stue er enkel å møblere med god plass til både salong og spisestue. Åpen løsning mot innbydende kjøkken med god skap- og benkeplass. Integrert komfyr og oppvaskmaskin medfølger.
Gjestehybel og Felleshuset er en del av fellesarealet til Rådhusmarka. I Felleshuset kan du delta på arrangementer eller bruke huset til egne private arrangement. Via Heime appen får du hele oversikten over alle arrangementer.
P-plass med lader og bod i kjeller.
Leiligheten har gode praktiske løsninger, romslig gang, gjestetoalett samt to gode soverom og bod. Badet er delikat, har fliser og vannbåren varme i gulvet.
Kvadratisk stue er enkel å møblere med god plass til både salong og spisestue. Åpen løsning mot innbydende kjøkken med god skap- og benkeplass. Integrert komfyr og oppvaskmaskin medfølger.
Gjestehybel og Felleshuset er en del av fellesarealet til Rådhusmarka. I Felleshuset kan du delta på arrangementer eller bruke huset til egne private arrangement. Via Heime appen får du hele oversikten over alle arrangementer.
P-plass med lader og bod i kjeller.
NB: Knappen for å vise hele beskrivelsen har kun en visuell effekt.
NB: Knappen for å vise hele beskrivelsen har kun en visuell effekt.
Salgsoppgaven beskriver vesentlig og lovpålagt informasjon om eiendommen
Se komplett salgsoppgaveNyttige lenker
Nærområdet
Verdi &Partners Sandnes
Verdien av lokalkunnskap
Annonseinformasjon
| FINN-kode | 442424586 |
|---|---|
| Sist endret | 02. jan. 2026 14:19 |
| Referanse | 203250157 |
Annonsene kan være mangelfulle i forhold til lovpålagt opplysningsplikt. Før bindende avtale inngås oppfordres interessenter til å innhente komplett informasjon fra meglerforetaket, selger eller utleier.




























