Bildegalleri

EIE eiendomsmegling ved Brynjar Netskar har gleden av å presentere Sagstuveien 20A! Foto: Mateusz Michalowski

Innholdsrikt enderekkehus over to plan | 4 soverom & 2 bad | Attraktive uteplasser | Helt nytt yttertak 2026

Prisantydning5 500 000 kr
Totalpris
5 711 706 kr
Omkostninger
140 600 kr
Fellesgjeld
71 106 kr
Kommunale avg.
15 732 kr per år
Formuesverdi
1 072 170 kr

Nøkkelinfo

Boligtype
Rekkehus
Eieform
Eier (Selveier)
Soverom
4
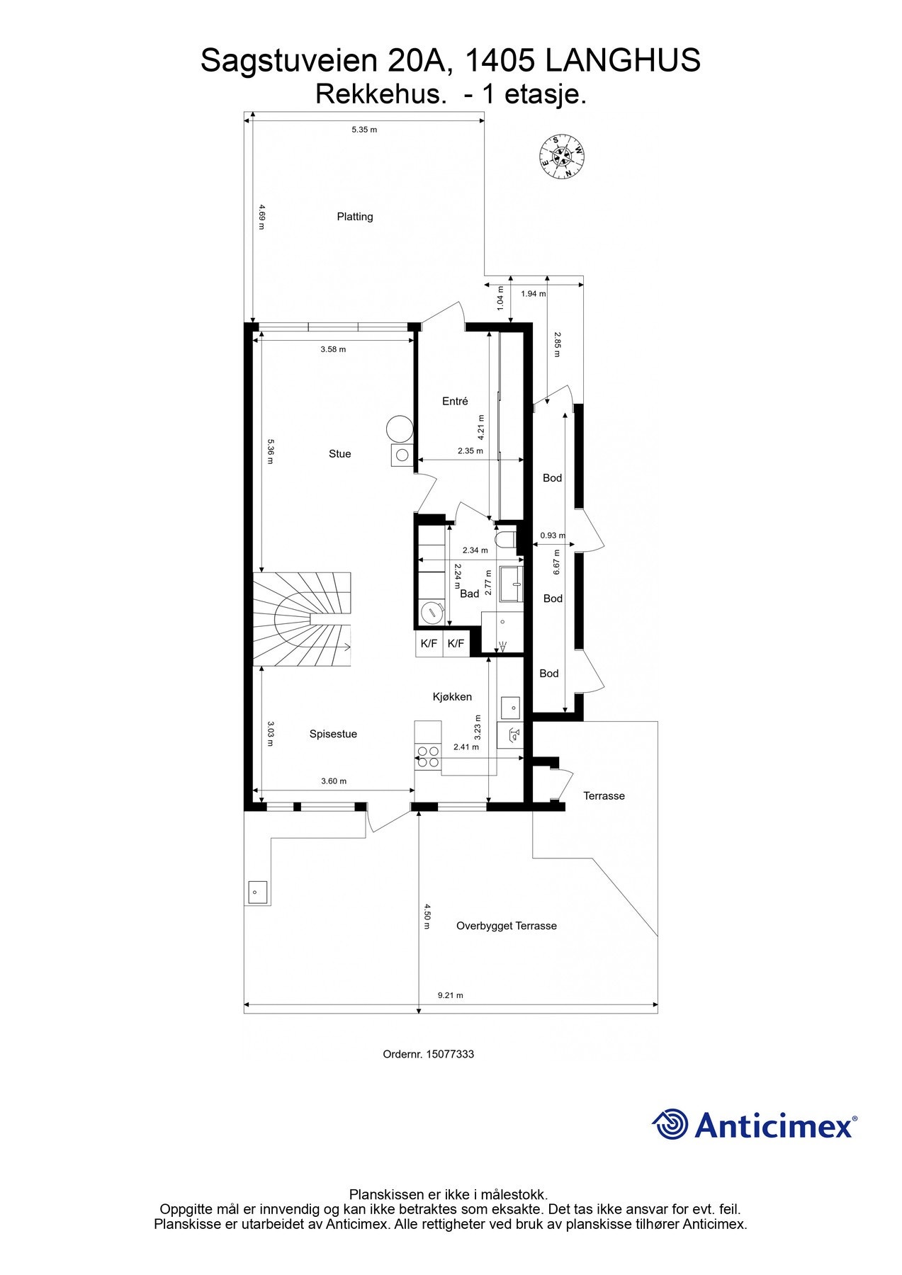
Internt bruksareal
117 m² (BRA-i)
Bruksareal
132 m²
Eksternt bruksareal
15 m² (BRA-e)
Balkong/Terrasse
75 m² (TBA)
Byggeår
1978
Energimerking
E - Gul
Rom
5
Tomteareal
282 m² (eiet)

Les mer om bruksareal her

Fasiliteter

Barnevennlig
Balkong/Terrasse
Garasje/P-plass
Offentlig vann/kloakk
Peis/Ildsted
Turterreng
Sentralt
Rolig
Lademulighet

Visning

mandag, 12. januar
17:30 – 18:30
Visningspåmelding

Om boligen

EIE eiendomsmegling ved Brynjar Netskar har gleden av å presentere Sagstuveien 20A! Et familievennlig ende rekkehus over to plan med en praktisk og god planløsning. Boligen inneholder romslige og lyse oppholdsrom, åpen stue- og kjøkkenløsning, fire soverom og to flislagte bad. Bad og vaskerom ble totalrehabilitert i 2014 og fremstår som delikate og funksjonelle med gulvvarme og moderne innredning.

Rekkehuset ligger på en eiet tomt og har gode uteplasser på begge sider av boligen, med både sydvendt platting og nordvendt, delvis overbygget markterrasse med utekjøkken. Praktiske oppbevaringsløsninger i tilliggende bod, frittstående bod og garasjeplass med elbillader.

Eiendommen ligger attraktivt til i et rolig og barnevennlig område på Langhus, med kort vei til skole, barnehage, servicetilbud, kollektivtransport og flotte tur- og friluftsområder. Gode pendlermuligheter til Ski og Oslo via Follobanen.

Velkommen til visning!

Salgsoppgaven beskriver vesentlig og lovpålagt informasjon om eiendommen

Se komplett salgsoppgave

Nærområdet

Annonseinformasjon

FINN-kode442421314
Sist endret31. des. 2025 07:51
Referanse84250102

Rapporter annonse

Annonsene kan være mangelfulle i forhold til lovpålagt opplysningsplikt. Før bindende avtale inngås oppfordres interessenter til å innhente komplett informasjon fra meglerforetaket, selger eller utleier.