Bildegalleri

Velkommen til Sons gate 3A presentert av Karoline Dovland. Foto: Lens85 (Paul Dragoman)
Solgt
Idylliske Kampen
Innbydende og koselig 2(3)-roms | Store vinduer og Fantastisk parkutsikt | V.vann inkl | Peis & varmefolie | IN-ordning*
Prisantydning5 300 000 kr
Nøkkelinfo
- Boligtype
- Leilighet
- Eieform
- Andel
- Soverom
- 1
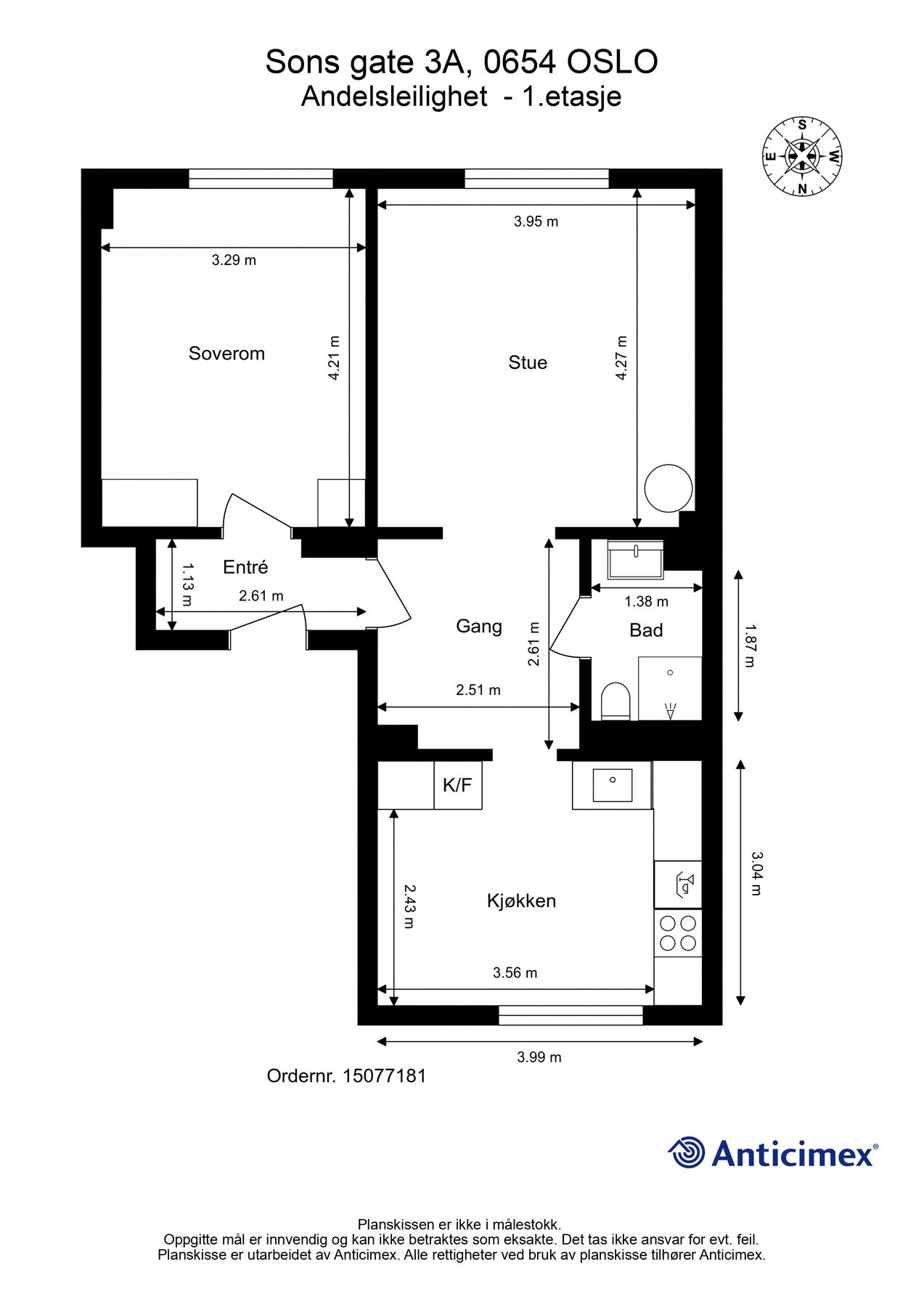
- Internt bruksareal
- 58 m² (BRA-i)
- Bruksareal
- 67 m²
- Eksternt bruksareal
- 9 m² (BRA-e)
- Byggeår
- 1931
- Energimerking
- G - Oransje
- Rom
- 2
- Tomteareal
- 1 687 m² (eiet)
Fasiliteter
Offentlig vann/kloakk
Ingen gjenboere
Parkett
Peis/Ildsted
Utsikt
Vaktmester-/vektertjeneste
Fellesvaskeri
Sentralt
Bredbåndstilknytning
Moderne
Rolig
Om boligen
Vil du bo rolig og sentralt rett ved Kampen park?
Leiligheten har en attraktiv og tilbaketrukket beliggenhet på populære og sjarmerende Kampen i enveiskjørt gate, med Kampen park som nærmeste nabo og med kort vei til alt!
Leiligheten har flotte kvaliteter som moderne og gjennomtenkte farge- og materialvalg og nyere oppgraderinger som gulvvarme, gulv, peisovn, store klassiske vindusflater.
- Lys og sjarmerende 2(3)-roms
- oppleves som 2. etasje
- Store vindusflater fra 2024
- Nydelig utsikt mot frodige Kampen park og helt opp mot Holmenkollen
- Gode lysforhold og gj. gående planløsning
- Stilrent kjøkken med int. hvitevarer
- Moderne peisovn fra 2020
- Varmtvann inkl.
- Énstavs parkett med varmefolie i gang, stue og kjøkken
- Veldrevet borettslag
- IN-ordning*
- Gode oppbevaringsmuligheter
- Trivelige fellesområder i bakgård
- Gjesteleilighet i brl som kan leies
*Ved innfrielse av andel f. gjeld vil mnd. felleskostnader reduseres til ca. kr. 3 898,02 pr. mnd p.t
Leiligheten har en attraktiv og tilbaketrukket beliggenhet på populære og sjarmerende Kampen i enveiskjørt gate, med Kampen park som nærmeste nabo og med kort vei til alt!
Leiligheten har flotte kvaliteter som moderne og gjennomtenkte farge- og materialvalg og nyere oppgraderinger som gulvvarme, gulv, peisovn, store klassiske vindusflater.
- Lys og sjarmerende 2(3)-roms
- oppleves som 2. etasje
- Store vindusflater fra 2024
- Nydelig utsikt mot frodige Kampen park og helt opp mot Holmenkollen
- Gode lysforhold og gj. gående planløsning
- Stilrent kjøkken med int. hvitevarer
- Moderne peisovn fra 2020
- Varmtvann inkl.
- Énstavs parkett med varmefolie i gang, stue og kjøkken
- Veldrevet borettslag
- IN-ordning*
- Gode oppbevaringsmuligheter
- Trivelige fellesområder i bakgård
- Gjesteleilighet i brl som kan leies
*Ved innfrielse av andel f. gjeld vil mnd. felleskostnader reduseres til ca. kr. 3 898,02 pr. mnd p.t
NB: Knappen for å vise hele beskrivelsen har kun en visuell effekt.
NB: Knappen for å vise hele beskrivelsen har kun en visuell effekt.
Salgsoppgaven beskriver vesentlig og lovpålagt informasjon om eiendommen
Se komplett salgsoppgaveNyttige lenker
Nærområdet
EIE eiendomsmegling Majorstuen & St. Hanshaugen
Annonseinformasjon
| FINN-kode | 442416543 |
|---|---|
| Sist endret | 16. jan. 2026 15:34 |
| Referanse | 25251479 |
Annonsene kan være mangelfulle i forhold til lovpålagt opplysningsplikt. Før bindende avtale inngås oppfordres interessenter til å innhente komplett informasjon fra meglerforetaket, selger eller utleier.













































