Bildegalleri

Nordvik Tønsberg har gleden av å ønske velkommen til Aråsveien 27! Foto: Fotograf Asmyhr.
Solgt
Nøtterøy / Arås
Velholdt og innholdsrik familiebolig m/hybel i rolig område. Eiertomt m/skjermet hage og romslig veranda. Dobbelgarasje.
Prisantydning6 500 000 kr
Nøkkelinfo
- Boligtype
- Enebolig
- Eieform
- Eier (Selveier)
- Soverom
- 3
- Internt bruksareal
- 186 m² (BRA-i)
- Bruksareal
- 186 m²
- Balkong/Terrasse
- 53 m² (TBA)
- Byggeår
- 1980
- Energimerking
- E - Gul
- Rom
- 4
- Tomteareal
- 1 004 m² (eiet)
Fasiliteter
Balkong/Terrasse
Barnevennlig
Garasje/P-plass
Hage
Kjæledyr tillatt
Ingen gjenboere
Offentlig vann/kloakk
Parkett
Peis/Ildsted
Rolig
Turterreng
Lademulighet
Om boligen
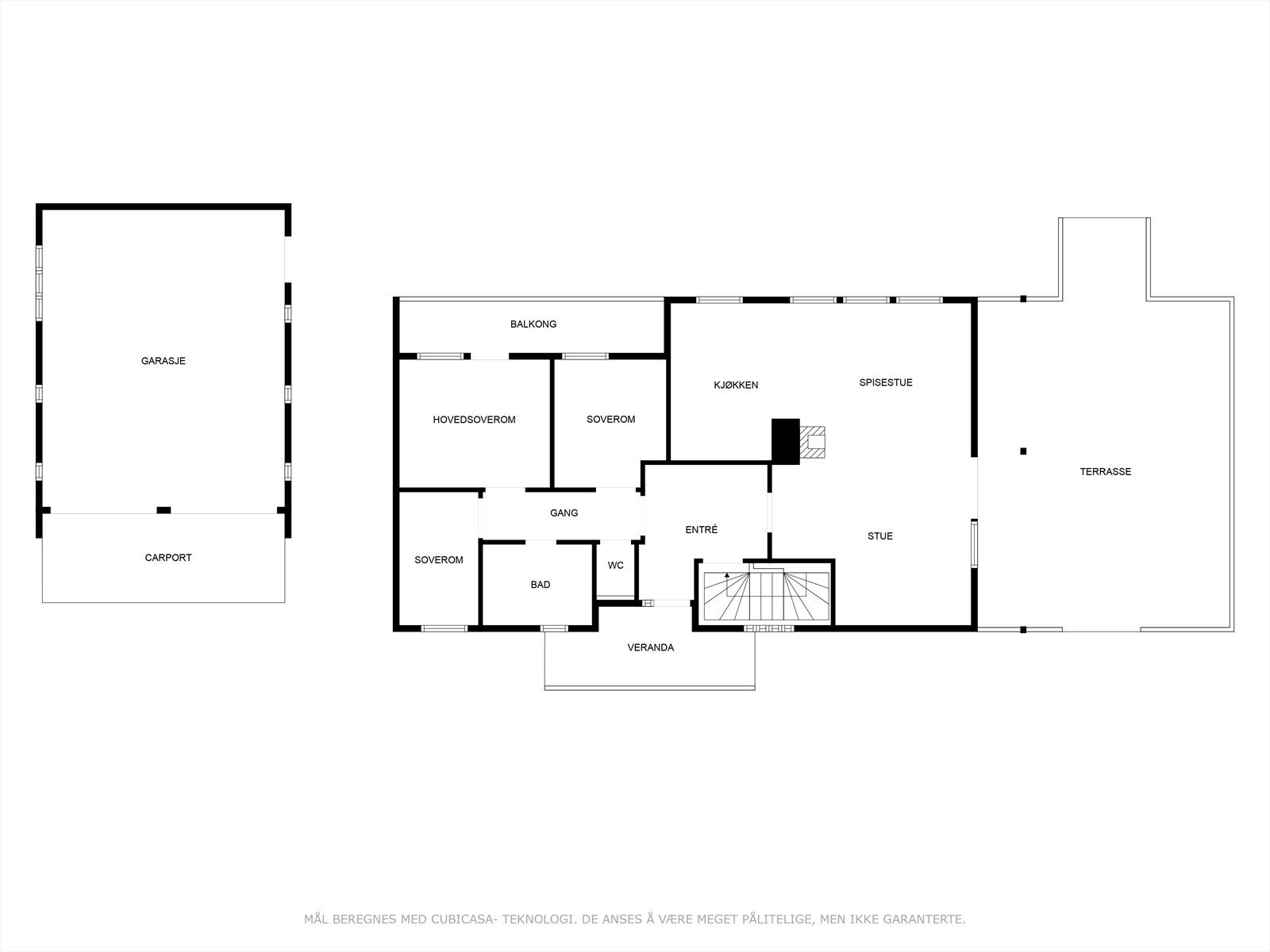
I familievennlige omgivelser på Arås ligger denne velholdte eneboligen fra 1980. Boligen ligger fint plassert på en romslig tomt på ca. ett mål, med stor veranda og skjermet hage. Frittliggende dobbelgarasje med gode parkeringsmuligheter.
I boligens kjelleretasje er det en innredet del (hybel) med egen inngang, bad, soverom, stue og kjøkken. Hoveddelen av boligen har inngang i første etasje, med et nyoppusset bad (fra 2024), wc-rom, tre soverom og stue/kjøkken i åpen løsning. I stuen er det både peisovn og varmepumpe (luft-til-luft). Videre er det et stilrent, moderne kjøkken med integrerte hvitevarer både på hovedkjøkkenet og delvis på kjøkkenet i hybelen. Hoveddelen av boligen har også et lekkert bad/vaskerom og koselig kjellerstue i kjelleretasjen - perfekt for storfamilien.
I boligens kjelleretasje er det en innredet del (hybel) med egen inngang, bad, soverom, stue og kjøkken. Hoveddelen av boligen har inngang i første etasje, med et nyoppusset bad (fra 2024), wc-rom, tre soverom og stue/kjøkken i åpen løsning. I stuen er det både peisovn og varmepumpe (luft-til-luft). Videre er det et stilrent, moderne kjøkken med integrerte hvitevarer både på hovedkjøkkenet og delvis på kjøkkenet i hybelen. Hoveddelen av boligen har også et lekkert bad/vaskerom og koselig kjellerstue i kjelleretasjen - perfekt for storfamilien.
NB: Knappen for å vise hele beskrivelsen har kun en visuell effekt.
NB: Knappen for å vise hele beskrivelsen har kun en visuell effekt.
Salgsoppgaven beskriver vesentlig og lovpålagt informasjon om eiendommen
Se komplett salgsoppgaveNyttige lenker
Nærområdet
Nordvik Tønsberg
Annonseinformasjon
| FINN-kode | 442399085 |
|---|---|
| Sist endret | 27. jan. 2026 15:19 |
| Referanse | 25-0037/25 |
Annonsene kan være mangelfulle i forhold til lovpålagt opplysningsplikt. Før bindende avtale inngås oppfordres interessenter til å innhente komplett informasjon fra meglerforetaket, selger eller utleier.





























































