Bildegalleri

DNB Eiendom v/Veronika Bjønnes har gleden av å presentere en lekker innflytningsklar enebolig -Dronninga 23
Helt ny og innflytningsklar enebolig med super beliggenhet - lave omkostninger ved kjøp!
Prisantydning7 190 000 kr
Nøkkelinfo
- Boligtype
- Enebolig
- Eieform
- Eier (Selveier)
- Soverom
- 4
- Internt bruksareal
- 148 m² (BRA-i)
- Bruksareal
- 148 m²
- Balkong/Terrasse
- 105 m² (TBA)
- Etasje
- 2
- Byggeår
- 2025
- Energimerking
- B - Rød
- Tomteareal
- 484 m² (eiet)
Fasiliteter
Balkong/Terrasse
Barnevennlig
Bredbåndstilknytning
Garasje/P-plass
Hage
Kjæledyr tillatt
Offentlig vann/kloakk
Parkett
Rolig
Utsikt
Turterreng
Balansert ventilasjon
Visning
lørdag, 14. februar
12:00 – 13:00
Velkommen til visning! Meld deg på ved å trykke "visningspåmelding" i våre boligannonser. Visning med megler til stede vil ikke bli avholdt uten påmeldinger. Ta gjerne kontakt med megler i forkant av visningen om du har spørsmål.
VisningspåmeldingOm boligen
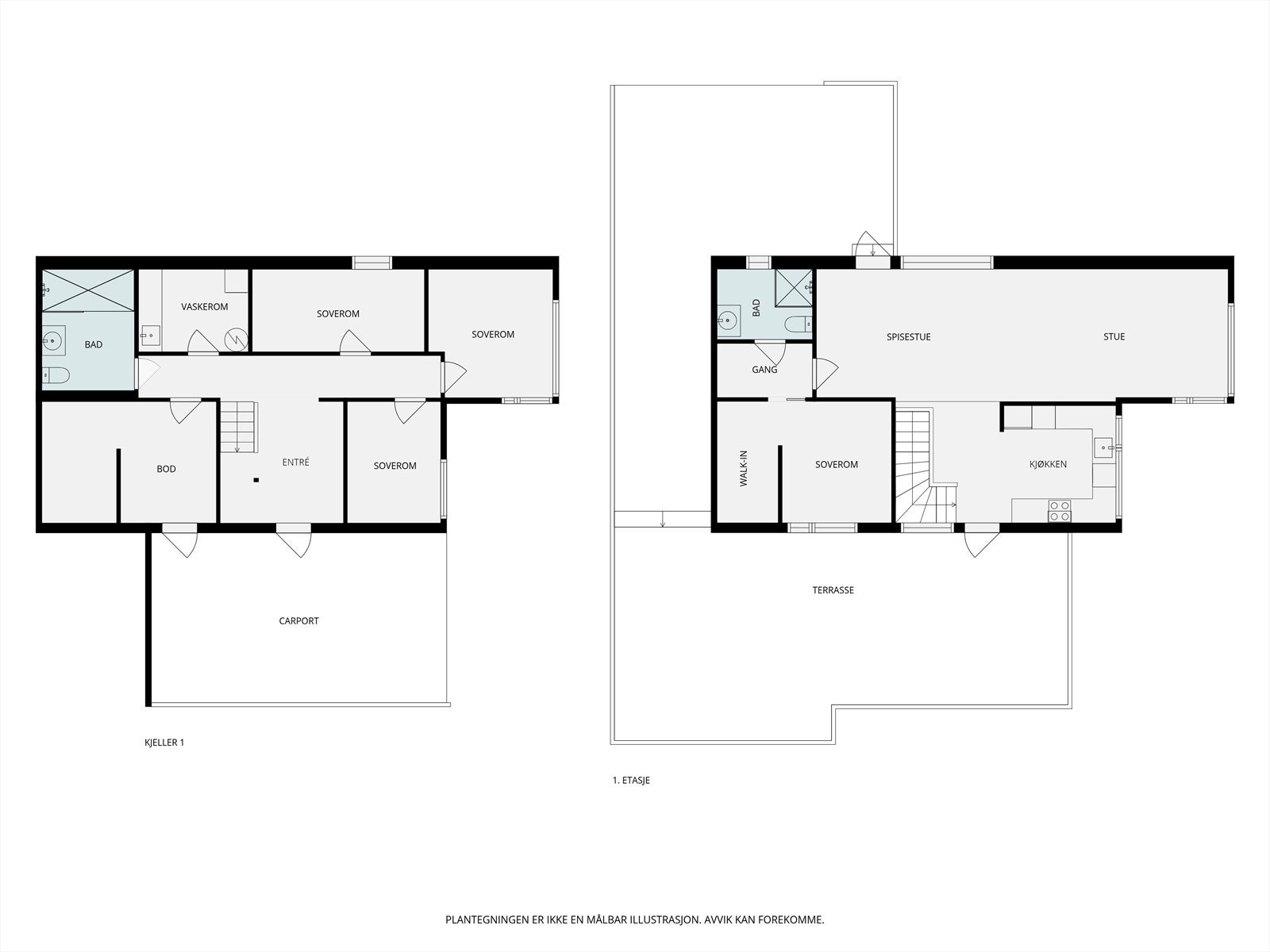
En lekker og moderne enebolig i et barnevennlig område med kort vei til sentrum. Boligen er svært innholdsrik og inneholder 3-4 soverom, 2 bad, kjøkken, 1-2 stuer, vaskerom og stor innvendig bod med egen adkomst. Det er også 2 flotte terrasser på hver side av boligen ( over 100 kvm) . Gode solforhold. God planløsning.
Kort fortalt:
- Lekker og moderne stil
- Innholdsrik og god planløsning
- Kort vei til sentrum, skole og dagligvarebutikker
- Kort avstand til flotte Lahelle brygge med badeplass og strender
- 4 soverom
- 2 terrasser på hver side av boligen
- Carport
- Romslig bod med sep. adkomst til carport
- Supre solforhold
- Landlig og fri utsikt
- Lav dok. avgift
- Særdeles fin tilstandsrapport
- Innflytningsklar nå!
Ta kontakt dersom du ønsker en visning!
Kort fortalt:
- Lekker og moderne stil
- Innholdsrik og god planløsning
- Kort vei til sentrum, skole og dagligvarebutikker
- Kort avstand til flotte Lahelle brygge med badeplass og strender
- 4 soverom
- 2 terrasser på hver side av boligen
- Carport
- Romslig bod med sep. adkomst til carport
- Supre solforhold
- Landlig og fri utsikt
- Lav dok. avgift
- Særdeles fin tilstandsrapport
- Innflytningsklar nå!
Ta kontakt dersom du ønsker en visning!
NB: Knappen for å vise hele beskrivelsen har kun en visuell effekt.
NB: Knappen for å vise hele beskrivelsen har kun en visuell effekt.
Salgsoppgaven beskriver vesentlig og lovpålagt informasjon om eiendommen
Se komplett salgsoppgaveNyttige lenker
Nærområdet
DNB Eiendom AS
Fra hjem til hjem
Annonseinformasjon
| FINN-kode | 442391048 |
|---|---|
| Sist endret | 09. feb. 2026 09:50 |
| Referanse | 605250291 |
Annonsene kan være mangelfulle i forhold til lovpålagt opplysningsplikt. Før bindende avtale inngås oppfordres interessenter til å innhente komplett informasjon fra meglerforetaket, selger eller utleier.

























































