Bildegalleri

Velkommen til Vårveien 4B - presentert av Anita Heer, Aktiv eiendomsmegling Mysen og Rakkestad.
Meget oppgradert og tiltalende bolig med hybel. Gode materialvalg. Innerst i blindvei. Stor gårdsplass.
Prisantydning5 990 000 kr
Nøkkelinfo
- Boligtype
- Enebolig
- Eieform
- Eier (Selveier)
- Soverom
- 4
- Internt bruksareal
- 186 m² (BRA-i)
- Bruksareal
- 232 m²
- Eksternt bruksareal
- 46 m² (BRA-e)
- Balkong/Terrasse
- 54 m² (TBA)
- Etasje
- 2
- Byggeår
- 1974
- Energimerking
- D - Oransje
- Rom
- 6
- Tomteareal
- 1 152 m² (eiet)
Fasiliteter
Balkong/Terrasse
Barnevennlig
Garasje/P-plass
Hage
Kjæledyr tillatt
Offentlig vann/kloakk
Parkett
Peis/Ildsted
Rolig
Sentralt
Turterreng
Om boligen
Velkommen til en flott enebolig i Vårveien 4B, med en attraktiv og solrik beliggenhet i et barnevennlig område. Boligen ligger i en blindvei, noe som gir en stille og trygg atmosfære. Området er ideelt for familier, med nærhet til skoler, barnehager og gode kollektivtilbud. Her finner du også dagligvarebutikker og turområder innen kort avstand.
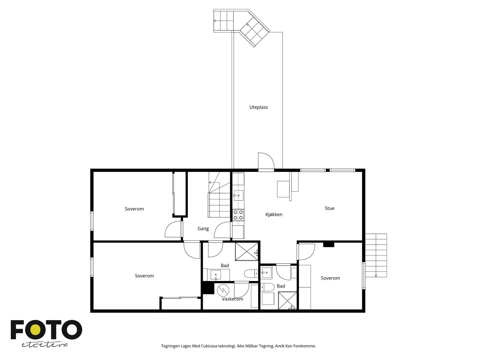
Oppført i 1974, ombygd i 2020, bra: 186 m² fordelt på to etasjer samt hybel. Boligen er totalrenovert innvendig og delvis utvendig. Det er oppgraderinger som nytt elektrisk anlegg, kjøkken og våtrom, m.m.
Boligen inneholder:
1. etg. : entré, stue utg. til store terrasse, kjøkken, soverom, bad og vaskerom.
U. etg.: gang, 2 soverom, bad og bod.
Hybel: gang, stue/kjøkken, soverom og bad.
Garasje på 28 m² og bod på 18m².
Velkommen til visning
Oppført i 1974, ombygd i 2020, bra: 186 m² fordelt på to etasjer samt hybel. Boligen er totalrenovert innvendig og delvis utvendig. Det er oppgraderinger som nytt elektrisk anlegg, kjøkken og våtrom, m.m.
Boligen inneholder:
1. etg. : entré, stue utg. til store terrasse, kjøkken, soverom, bad og vaskerom.
U. etg.: gang, 2 soverom, bad og bod.
Hybel: gang, stue/kjøkken, soverom og bad.
Garasje på 28 m² og bod på 18m².
Velkommen til visning
NB: Knappen for å vise hele beskrivelsen har kun en visuell effekt.
NB: Knappen for å vise hele beskrivelsen har kun en visuell effekt.
Salgsoppgaven beskriver vesentlig og lovpålagt informasjon om eiendommen
Se komplett salgsoppgaveNærområdet
Aktiv Mysen og Rakkestad
Annonseinformasjon
| FINN-kode | 442390486 |
|---|---|
| Sist endret | 19. des. 2025 14:08 |
| Referanse | 1113250263 |
Annonsene kan være mangelfulle i forhold til lovpålagt opplysningsplikt. Før bindende avtale inngås oppfordres interessenter til å innhente komplett informasjon fra meglerforetaket, selger eller utleier.




















































