Bildegalleri

Illustrasjon | Vollebekk Stasjon består av 149 leiligheter fordelt på tre bygg med totalt åtte oppganger, A til H. Plassert mellom sentrum og marka har Vollebekk det beste fra begge verdener. Avvik kan forekomme.
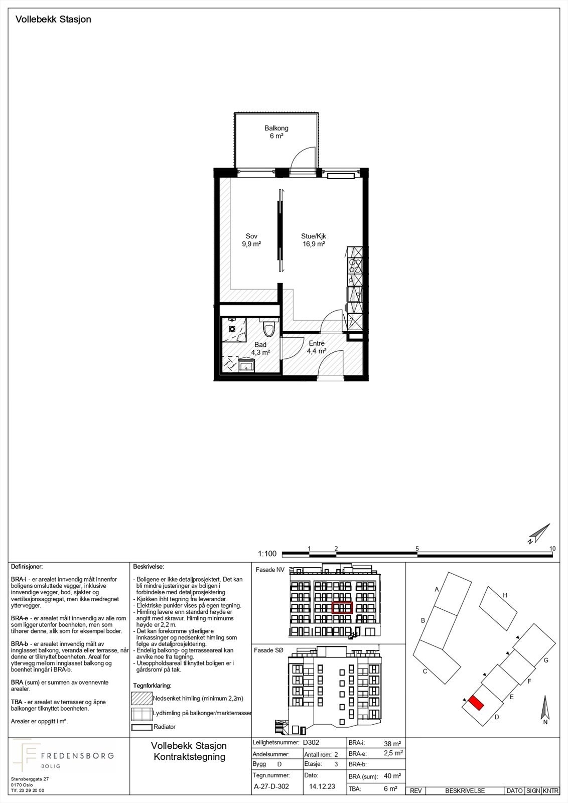
Vollebekk Stasjon
Ny, lekker 2-roms i 3. etasje med nordvestvendt balkong på 6 m². Rett ved t-bane. Lav dok.avg. Est. ferdig Q4 26/Q1 27
Prisantydning2 360 000 kr
Nøkkelinfo
- Boligtype
- Leilighet
- Eieform
- Andel
- Soverom
- 1
- Internt bruksareal
- 38 m² (BRA-i)
- Bruksareal
- 41 m²
- Eksternt bruksareal
- 3 m² (BRA-e)
- Balkong/Terrasse
- 6 m² (TBA)
- Etasje
- 3
- Byggeår
- 2025
- Rom
- 2
- Tomt
- Eiet
Fasiliteter
Takterrasse
Balkong/Terrasse
Bredbåndstilknytning
Heis
Kjæledyr tillatt
Parkett
Sentralt
Balansert ventilasjon
Visning
Salg av kontraktsposisjon: Leiligheten er under oppføring og det er ikke tilgang på selve leiligheten/byggeplass. Det er mulig å gjennomføre en digital visning på Teams for en gjennomgang av spørsmål/fly i simulator (utsikt/solforhold). Konferer med megler for ytterligere informasjon og en hyggelig prat.
VisningspåmeldingOm boligen
Dette er et salg av kontraktsposisjon vedrørende leilighet D-302 i prosjektet Vollebekk Stasjon. En lekker 2-roms som ligger i byggets 3. etasje. Leiligheten har nordvestvendt balkong på ca. 6 m². Prosjektet har høy bokvalitet med mye lys og store uterom. Beliggenhet mellom sentrum og marka, og Vollebekk har det beste fra begge verdener. Her har du plass til å leve livet slik du ønsker.
- Estimert innflytting Q4 2026-Q1 2027
- Lekker 2-roms andelsleilighet beliggende i 3. etasje
- Nordvestvendt balkong på ca. 6 m²
- Lav dokumentavgift
- 5 års reklamasjonsrett
- Stilrent kjøkken fra Sigdal med integrerte hvitevarer fra Bosch
- Påkostet 1-stavs eikeparkett
- Heis
- Energivennlig og godt isolert
- Balansert ventilasjon
- Kjellerbod
- Felles takterrasse
- Sentral beliggenhet
- Nærhet til t-bane
- Estimert innflytting Q4 2026-Q1 2027
- Lekker 2-roms andelsleilighet beliggende i 3. etasje
- Nordvestvendt balkong på ca. 6 m²
- Lav dokumentavgift
- 5 års reklamasjonsrett
- Stilrent kjøkken fra Sigdal med integrerte hvitevarer fra Bosch
- Påkostet 1-stavs eikeparkett
- Heis
- Energivennlig og godt isolert
- Balansert ventilasjon
- Kjellerbod
- Felles takterrasse
- Sentral beliggenhet
- Nærhet til t-bane
NB: Knappen for å vise hele beskrivelsen har kun en visuell effekt.
NB: Knappen for å vise hele beskrivelsen har kun en visuell effekt.
Salgsoppgaven beskriver vesentlig og lovpålagt informasjon om eiendommen
Se komplett salgsoppgaveNyttige lenker
Nærområdet
Røisland & Co Eiendomsmegling AS
Tenk nytt - bo godt!
Annonseinformasjon
| FINN-kode | 442336248 |
|---|---|
| Sist endret | 30. des. 2025 20:25 |
| Referanse | RCOPS3.25135 |
Annonsene kan være mangelfulle i forhold til lovpålagt opplysningsplikt. Før bindende avtale inngås oppfordres interessenter til å innhente komplett informasjon fra meglerforetaket, selger eller utleier.























