Bildegalleri

Velkommen til Ånnerudskogen 96, presentert av Nordvik Asker. Foto: X ?
Asker / Ånnerud
Innbydende enderekkehus - Solrike uteplasser - Garasje m/lader - Barnevennlig - Nær marka og Asker sentrum
Prisantydning6 750 000 kr
Nøkkelinfo
- Boligtype
- Rekkehus
- Eieform
- Eier (Selveier)
- Soverom
- 3
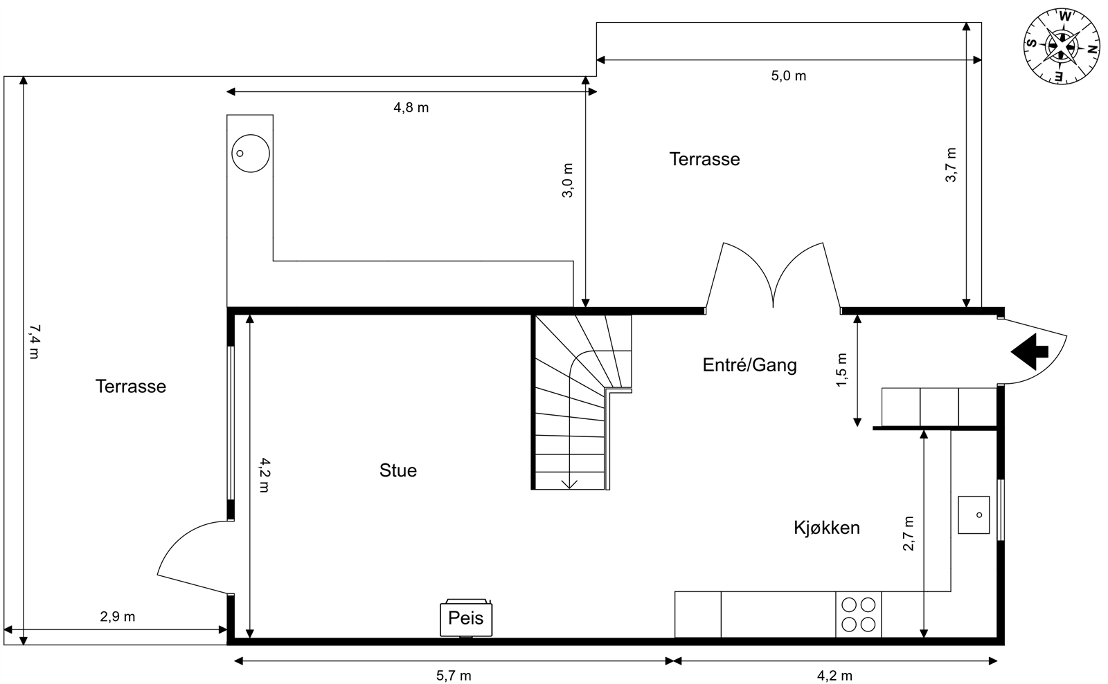
- Internt bruksareal
- 120 m² (BRA-i)
- Bruksareal
- 124 m²
- Eksternt bruksareal
- 4 m² (BRA-e)
- Balkong/Terrasse
- 54 m² (TBA)
- Etasje
- 3
- Byggeår
- 1968
- Energimerking
- G - Oransje
- Tomteareal
- 260 m² (eiet)
Fasiliteter
Balkong/Terrasse
Barnevennlig
Bredbåndstilknytning
Garasje/P-plass
Hage
Kabel-TV
Offentlig vann/kloakk
Parkett
Peis/Ildsted
Rolig
Sentralt
Turterreng
Visning
søndag, 11. januar
13:30 – 14:15
Alle våre visninger har påmelding. På denne måten sikrer vi at megler har god oversikt og tid til å imøtekomme alle interessenter. Meld deg på visning ved å trykke på lenken visningspåmelding. Ta kontakt med megler dersom det er ønskelig med privat visning.
VisningspåmeldingOm boligen
Et velholdt og familievennlig rekkehus med en meget god intern beliggenhet på feltet, attraktive uteplasser og gode solforhold. Boligen er jevnlig oppgradert de senere årene og byr på en gjennomtenkt planløsning med flere oppholdsrom, moderne kjøkken, hyggelig uteområder og utekjøkken. Beliggenheten kombinerer rolige omgivelser med nærhet til natur, skole og Asker sentrum.
Høydepunkter:
- Oppgradert bolig med flere tiltak fra 2018-2025
- Garasje med lader
- Moderne kjøkken fra 2018
- Kjellerstue pusset opp i 2019 (ikke bruksendret)
- Utvidet og funksjonell entré
- Oppgraderte uteplasser med nye terrassebord
- Utekjøkken fra 2025
- Utbedret avløp i kjeller i 2025
- Oppdatert el-utstyr, inkludert komfyrvakt og termostat
- Kort vei til Asker sentrum
- Attraktivt og barnevennlig nabolag
Høydepunkter:
- Oppgradert bolig med flere tiltak fra 2018-2025
- Garasje med lader
- Moderne kjøkken fra 2018
- Kjellerstue pusset opp i 2019 (ikke bruksendret)
- Utvidet og funksjonell entré
- Oppgraderte uteplasser med nye terrassebord
- Utekjøkken fra 2025
- Utbedret avløp i kjeller i 2025
- Oppdatert el-utstyr, inkludert komfyrvakt og termostat
- Kort vei til Asker sentrum
- Attraktivt og barnevennlig nabolag
NB: Knappen for å vise hele beskrivelsen har kun en visuell effekt.
NB: Knappen for å vise hele beskrivelsen har kun en visuell effekt.
Salgsoppgaven beskriver vesentlig og lovpålagt informasjon om eiendommen
Se komplett salgsoppgaveNyttige lenker
Nærområdet
Nordvik Asker
Vi vet hva det er verdt
Annonseinformasjon
| FINN-kode | 442290852 |
|---|---|
| Sist endret | 27. des. 2025 00:32 |
| Referanse | 33-0229/25 |
Annonsene kan være mangelfulle i forhold til lovpålagt opplysningsplikt. Før bindende avtale inngås oppfordres interessenter til å innhente komplett informasjon fra meglerforetaket, selger eller utleier.


























































