Bildegalleri

Nordvik Eiendomsmegling v/ Mats J. Kolsrud presenterer Fjellvegen 8.
Gjøvik / Nordbyen
Velholdt enebolig i Nordbyen på hjørnetomt med Mjøsutsikt, garasje og tidløs standard - Flere uteområder - Elbillader
Prisantydning5 490 000 kr
Nøkkelinfo
- Boligtype
- Enebolig
- Eieform
- Eier (Selveier)
- Soverom
- 3
- Internt bruksareal
- 213 m² (BRA-i)
- Bruksareal
- 245 m²
- Eksternt bruksareal
- 32 m² (BRA-e)
- Etasje
- 3
- Byggeår
- 1958
- Energimerking
- F - Gul
- Rom
- 4
- Tomteareal
- 1 176 m² (eiet)
Fasiliteter
Balkong/Terrasse
Barnevennlig
Bredbåndstilknytning
Garasje/P-plass
Hage
Kjæledyr tillatt
Offentlig vann/kloakk
Parkett
Peis/Ildsted
Rolig
Sentralt
Utsikt
Utvidelsesmuligheter
Turterreng
Visning
søndag, 11. januar
12:00 – 13:00
Meld deg på visning ved å trykke på lenken visningspåmelding.
VisningspåmeldingOm boligen
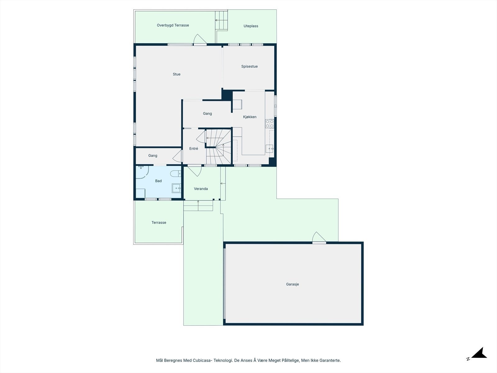
Nordvik Eiendomsmegling presenterer Fjellvegen 8 - En påkostet enebolig Nordbyen med garasje, luftig hjørnetomt og nydelig utsikt i flere retninger. Boligen ble renovert i 2014 og er senere etterisolert med ny kledning i 2020.
God planløsning med entre, stue med flere avdelinger, kjøkken og bad/vaskerom i første etasje. Soveromsavdeling med tre sov, stort bad og romslig gangarealer i 2. etasje. Kjeller med egen inngang, våtrom og potensiale.
Kort oppsummert
God planløsning med entre, stue med flere avdelinger, kjøkken og bad/vaskerom i første etasje. Soveromsavdeling med tre sov, stort bad og romslig gangarealer i 2. etasje. Kjeller med egen inngang, våtrom og potensiale.
Kort oppsummert
- Svært velholdt enebolig over to etasjer og kjeller i Nordbyen.
- Fantastisk utsikt mot Mjøsa, romslig tomt og asfaltert adkomst.
- Stue som deles i flere soner, tidløst kjøkken og to store bad.
- Tre soverom av god størrelse - Et med balkong.
- Kjeller med egen inngang og potensiale for videre utnyttelse.
NB: Knappen for å vise hele beskrivelsen har kun en visuell effekt.
NB: Knappen for å vise hele beskrivelsen har kun en visuell effekt.
Salgsoppgaven beskriver vesentlig og lovpålagt informasjon om eiendommen
Se komplett salgsoppgaveNyttige lenker
Nærområdet
Nordvik Gjøvik
Vi vet hva det er verdt!
Annonseinformasjon
| FINN-kode | 442278560 |
|---|---|
| Sist endret | 02. jan. 2026 16:37 |
| Referanse | 71-0240/25 |
Annonsene kan være mangelfulle i forhold til lovpålagt opplysningsplikt. Før bindende avtale inngås oppfordres interessenter til å innhente komplett informasjon fra meglerforetaket, selger eller utleier.















































