Bildegalleri

Flytt rett inn i dette moderne enderekkehuset fra 2021 i Nybakveien 61A!

Moderne enderekkehus fra 2021 med garasjeplass. Vannbåren varme. Sentralt og barnevennlig. Gangavstand til togstasjon.

Prisantydning7 000 000 kr
Totalpris
7 176 090 kr
Omkostninger
176 090 kr
Felleskost/mnd.
3 427 kr
Fellesformue
21 600 kr
Kommunale avg.
18 450 kr per år
Eiendomsskatt
2 152 kr per år
Formuesverdi
1 671 573 kr

Nøkkelinfo

Boligtype
Rekkehus
Eieform
Eier (Selveier)
Soverom
3
Internt bruksareal
119 m² (BRA-i)
Bruksareal
124 m²
Eksternt bruksareal
5 m² (BRA-e)
Balkong/Terrasse
50 m² (TBA)
Byggeår
2021
Energimerking
B - Rød
Rom
5
Tomteareal
6 477 m² (eiet)

Les mer om bruksareal her

Fasiliteter

Barnevennlig
Balkong/Terrasse
Garasje/P-plass
Ingen gjenboere
Parkett
Turterreng
Utsikt
Aircondition
Sentralt
Bredbåndstilknytning
Moderne
Rolig
Bademulighet
Lademulighet
Balansert ventilasjon

Visning

søndag, 11. januar
15:00 – 16:00
Velkommen til visning! Alle våre visninger har påmelding. På denne måten sikrer vi at megler har god oversikt og tid til å imøtekomme alle interessenter på beste måte. Dette er veldig verdifullt for boligkjøpere og for oss. Det er enkelt å melde seg på, og du kan like enkelt melde deg av. Kontakt også gjerne megler i forkant av visning dersom du har spørsmål.
Visningspåmelding

Om boligen

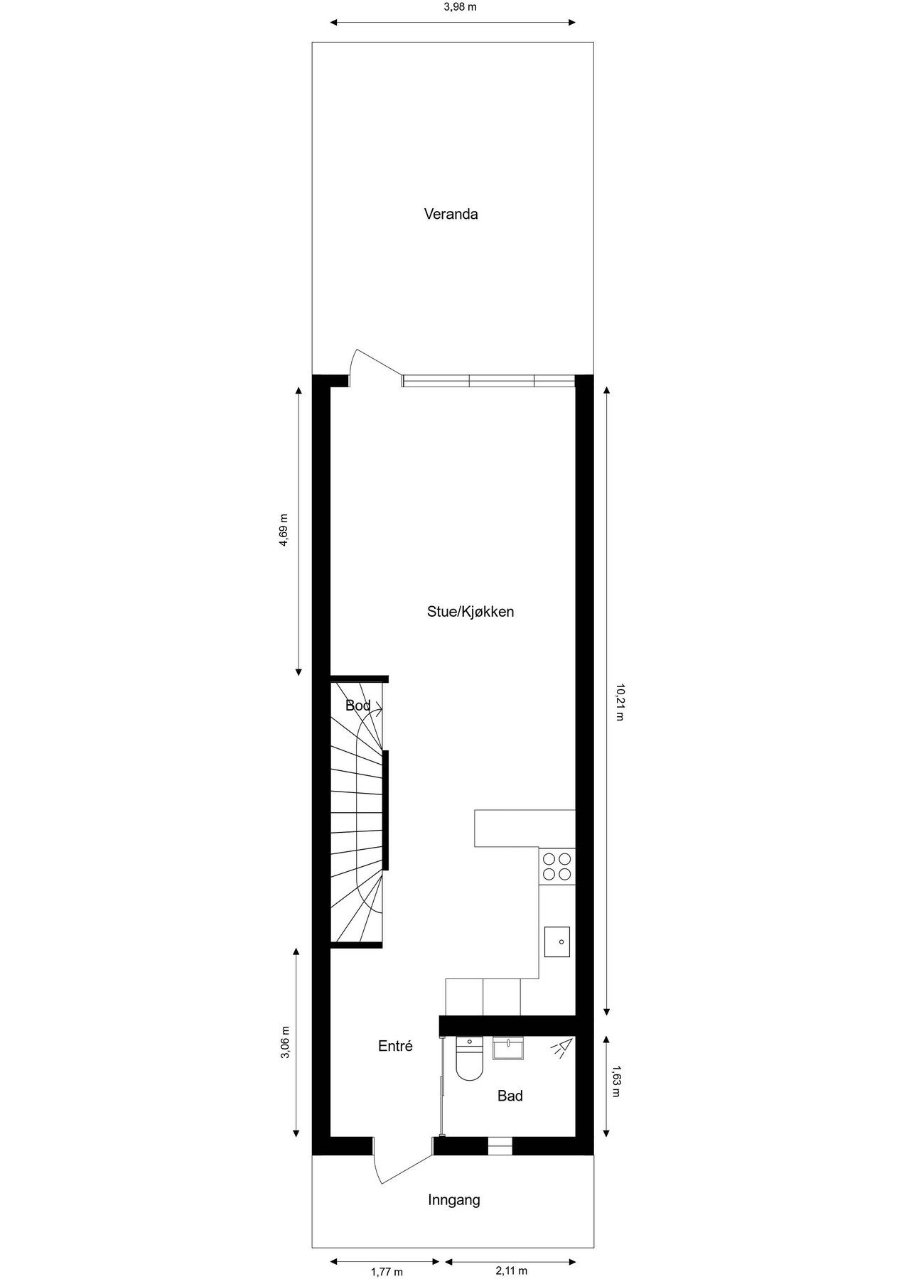
Velkommen til Nybakveien 61A! - Et moderne, innholdsrikt enderekkehus over tre plan. Det er oppført i 2021. God standard og praktiske planløsninger. Boligen har lyse oppholdsrom, tidsriktig kjøkken og to bad. Det er to uteplasser, herunder en takterrasse i 3. etasje. I tillegg er det en uteplass med utgang fra stue i 1. etasje. Parkering i felles garasjekjeller med tilhørende bod. Boligen ligger i et rolig og veletablert boligområde med nærhet til servicetilbud, kollektivtransport og rekreasjonsområder.

KVALITETER

  • Enderekkehus over tre plan

  • Lys og god planløsning

  • To bad og to stuer

  • Vannbåren varme i hele 1.etg

  • Solrike uteplasser med flott utsikt

  • Uteplass med direkte utgang fra stue

  • Parkering med lader i felles garasje

  • Gangavstand, til skoler, barnehager, buss og togstasjon

  • Rolig og veletablert boligområde i gangavstand til servicetilbud og kollektivtransport

Salgsoppgaven beskriver vesentlig og lovpålagt informasjon om eiendommen

Se komplett salgsoppgave

Nærområdet

Annonseinformasjon

FINN-kode442256580
Sist endret29. des. 2025 09:34
Referanse24251002

Rapporter annonse

Annonsene kan være mangelfulle i forhold til lovpålagt opplysningsplikt. Før bindende avtale inngås oppfordres interessenter til å innhente komplett informasjon fra meglerforetaket, selger eller utleier.