Bildegalleri

Velkommen til Kornett Rasmussens veg 21.
Flott enebolig med anneks, dobbelgarasje og stor terrasse. Sentralt på Råholt; innerst i rolig og landlig blindvei.
Prisantydning6 950 000 kr
Nøkkelinfo
- Boligtype
- Enebolig
- Eieform
- Eier (Selveier)
- Soverom
- 3
- Internt bruksareal
- 155 m² (BRA-i)
- Bruksareal
- 233 m²
- Eksternt bruksareal
- 78 m² (BRA-e)
- Balkong/Terrasse
- 45 m² (TBA)
- Byggeår
- 1915
- Energimerking
- G - Oransje
- Tomteareal
- 778 m² (eiet)
Fasiliteter
Barnevennlig
Balkong/Terrasse
Garasje/P-plass
Offentlig vann/kloakk
Peis/Ildsted
Sentralt
Bredbåndstilknytning
Moderne
Rolig
Lademulighet
Om boligen
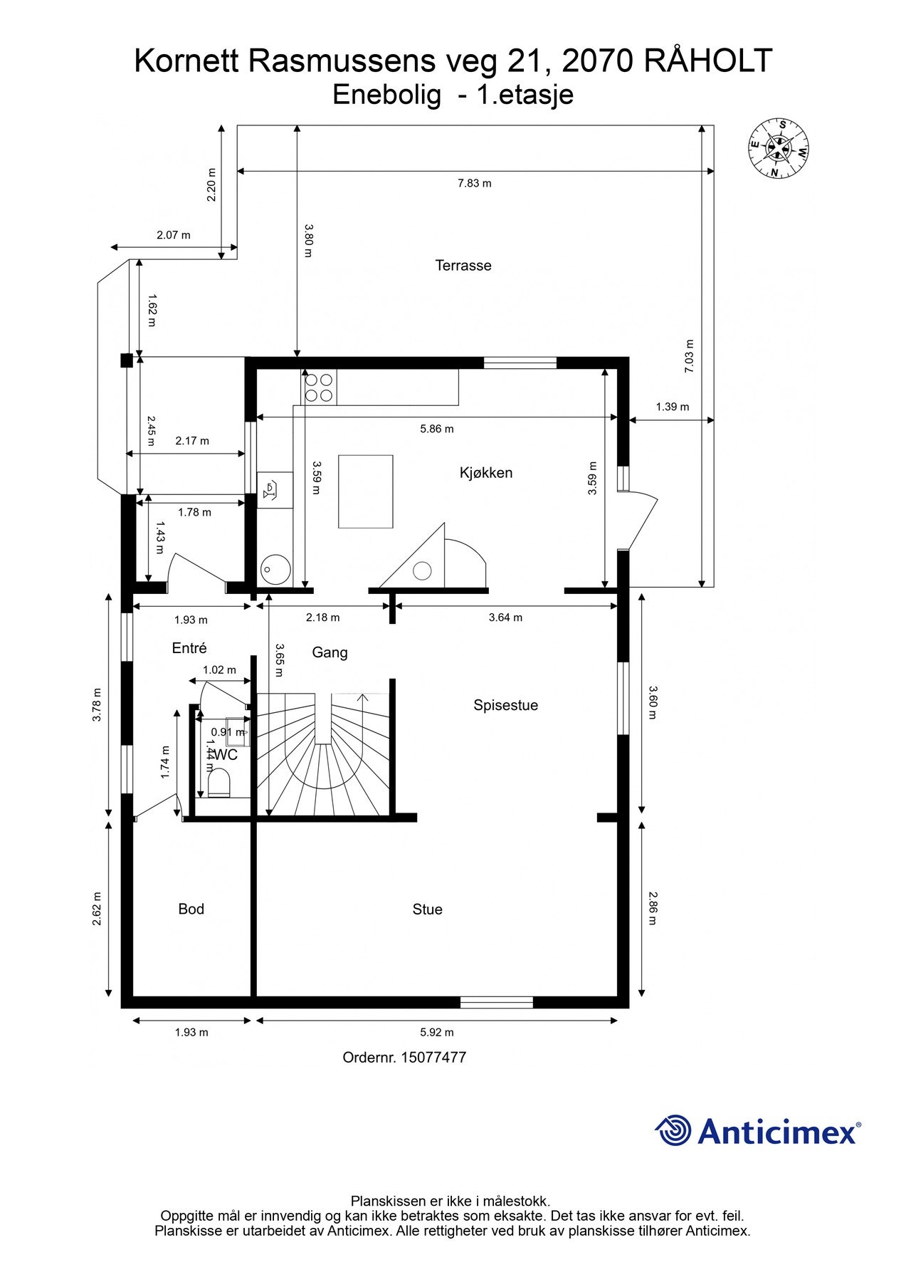
Kornett Rasmussens veg 21 er en pen, velholdt og funksjonell enebolig over to etasjer. Sammen med en frittstående dobbelgarasje og et innredet anneks fra 2017 gir huset eiendommen et totalt areal på rundt 233 kvm. Her er mulighetene mange og boltreplassen god. Også beliggenheten er attraktiv; sentralt på Råholt med gangavstand til tog, skoler, butikker og idrettsanlegg. Plassert innerst i en rolig blindvei, har boligen en romslig hage med fint utsyn.
Kjøkkenet forlenges av en herlig terrasse med pergola og ulike soner. To stuer gir god fleksibilitet, hvor den ene har nyere varmepumpe. Stuene er tilknyttet et flott kjøkken med hendig øy, mye oppbevaring og de fleste hvitevarer integrert. På badet er det gulvvarme, og boligen har et gjestetoalett og tre soverom samlet i 2. etasje.
Velkommen til visning!
Kjøkkenet forlenges av en herlig terrasse med pergola og ulike soner. To stuer gir god fleksibilitet, hvor den ene har nyere varmepumpe. Stuene er tilknyttet et flott kjøkken med hendig øy, mye oppbevaring og de fleste hvitevarer integrert. På badet er det gulvvarme, og boligen har et gjestetoalett og tre soverom samlet i 2. etasje.
Velkommen til visning!
NB: Knappen for å vise hele beskrivelsen har kun en visuell effekt.
NB: Knappen for å vise hele beskrivelsen har kun en visuell effekt.
Salgsoppgaven beskriver vesentlig og lovpålagt informasjon om eiendommen
Se komplett salgsoppgaveNyttige lenker
Nærområdet
EIE eiendomsmegling Jessheim
Annonseinformasjon
| FINN-kode | 442177915 |
|---|---|
| Sist endret | 02. feb. 2026 07:40 |
| Referanse | 20251432 |
Annonsene kan være mangelfulle i forhold til lovpålagt opplysningsplikt. Før bindende avtale inngås oppfordres interessenter til å innhente komplett informasjon fra meglerforetaket, selger eller utleier.



















































