Bildegalleri

Velkommen til Sannergata 5B! Foto: Tina Cicilie Gogstad
GRÜNERLØKKA
Lys og stor 2(3)-roms | Solrik balkong | Kjøkken fra 2014 | God og gjennomgående planløsning | V.vann og fyring inkl.
Prisantydning5 190 000 kr
Nøkkelinfo
- Boligtype
- Leilighet
- Eieform
- Aksje
- Soverom
- 1
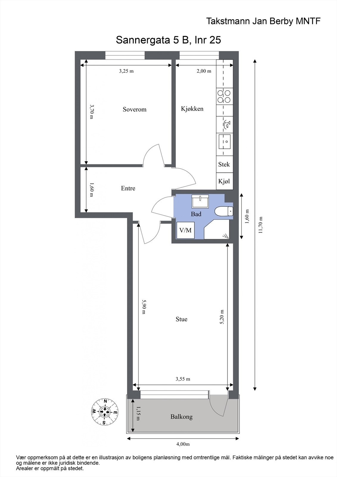
- Internt bruksareal
- 51 m² (BRA-i)
- Bruksareal
- 54 m²
- Eksternt bruksareal
- 3 m² (BRA-e)
- Balkong/Terrasse
- 5 m² (TBA)
- Etasje
- 3
- Byggeår
- 1942
- Energimerking
- G - Mørkegrønn
- Rom
- 2
- Tomteareal
- 1 077 m² (eiet)
Fasiliteter
Balkong/Terrasse
Bredbåndstilknytning
Kjæledyr tillatt
Kabel-TV
Offentlig vann/kloakk
Rolig
Sentralt
Utsikt
Vaktmester-/vektertjeneste
Turterreng
Visning
søndag, 11. januar
12:00 – 13:00
Privatvisning etter avtale ta kontakt med megler for å avtale tidspunkt som passer for deg!
VisningspåmeldingOm boligen
Velkommen til Sannergata 5,
Her får du en innbydende leilighet med gjennomgående planløsning og mye naturlig lys. Planløsningen er fleksibel og byr på mulighet for å etablere et ekstra soverom. Leiligheten oppleves romslig med god takhøyde og lune fargevalg. Varme sommerdager kan nytes på en solrik balkong som vender mot bakgård.
- Lys og lekker bolig
- Stor og god planløsning
- IN-ordning på fellesgjeld (fellekost 4.602,- ved innfrielse)
- Mulig å etablere ekstra soverom*
- Separat kjøkken med mye oppbevaringsplass
- Opplegg for vaskemaskin på bad
- God takhøyde på 2.64 m
- Nytt, flott gulv fra 2021
- Fyring via radiatorer, samt varmtvann inkludert
- Veldrevet aksjelag med god økonomi og vedlikeholdshistorikk
- Buss/trikk i umiddelbar nærhet
- Midt mellom Kiellands plass og Grünerløkka
Her får du en innbydende leilighet med gjennomgående planløsning og mye naturlig lys. Planløsningen er fleksibel og byr på mulighet for å etablere et ekstra soverom. Leiligheten oppleves romslig med god takhøyde og lune fargevalg. Varme sommerdager kan nytes på en solrik balkong som vender mot bakgård.
- Lys og lekker bolig
- Stor og god planløsning
- IN-ordning på fellesgjeld (fellekost 4.602,- ved innfrielse)
- Mulig å etablere ekstra soverom*
- Separat kjøkken med mye oppbevaringsplass
- Opplegg for vaskemaskin på bad
- God takhøyde på 2.64 m
- Nytt, flott gulv fra 2021
- Fyring via radiatorer, samt varmtvann inkludert
- Veldrevet aksjelag med god økonomi og vedlikeholdshistorikk
- Buss/trikk i umiddelbar nærhet
- Midt mellom Kiellands plass og Grünerløkka
NB: Knappen for å vise hele beskrivelsen har kun en visuell effekt.
NB: Knappen for å vise hele beskrivelsen har kun en visuell effekt.
Salgsoppgaven beskriver vesentlig og lovpålagt informasjon om eiendommen
Se komplett salgsoppgaveNyttige lenker
Nærområdet
Emera Eiendomsmegling
Annonseinformasjon
| FINN-kode | 442164208 |
|---|---|
| Sist endret | 04. jan. 2026 18:35 |
| Referanse | EMERA2.25176 |
Annonsene kan være mangelfulle i forhold til lovpålagt opplysningsplikt. Før bindende avtale inngås oppfordres interessenter til å innhente komplett informasjon fra meglerforetaket, selger eller utleier.




























