Bildegalleri

Ellen Celine Heireth v/EIE eiendomsmegling har gleden av å presentere Sennerudtoppen 6! Foto: Diakrit (Frode Røang)
Moderne og innbydende 2-roms fra 2020 i 5. etasje | Balkong på 12 m² | Perfekt førstegangskjøp eller til utleie!
Prisantydning3 100 000 kr
Nøkkelinfo
- Boligtype
- Leilighet
- Eieform
- Eier (Selveier)
- Soverom
- 1
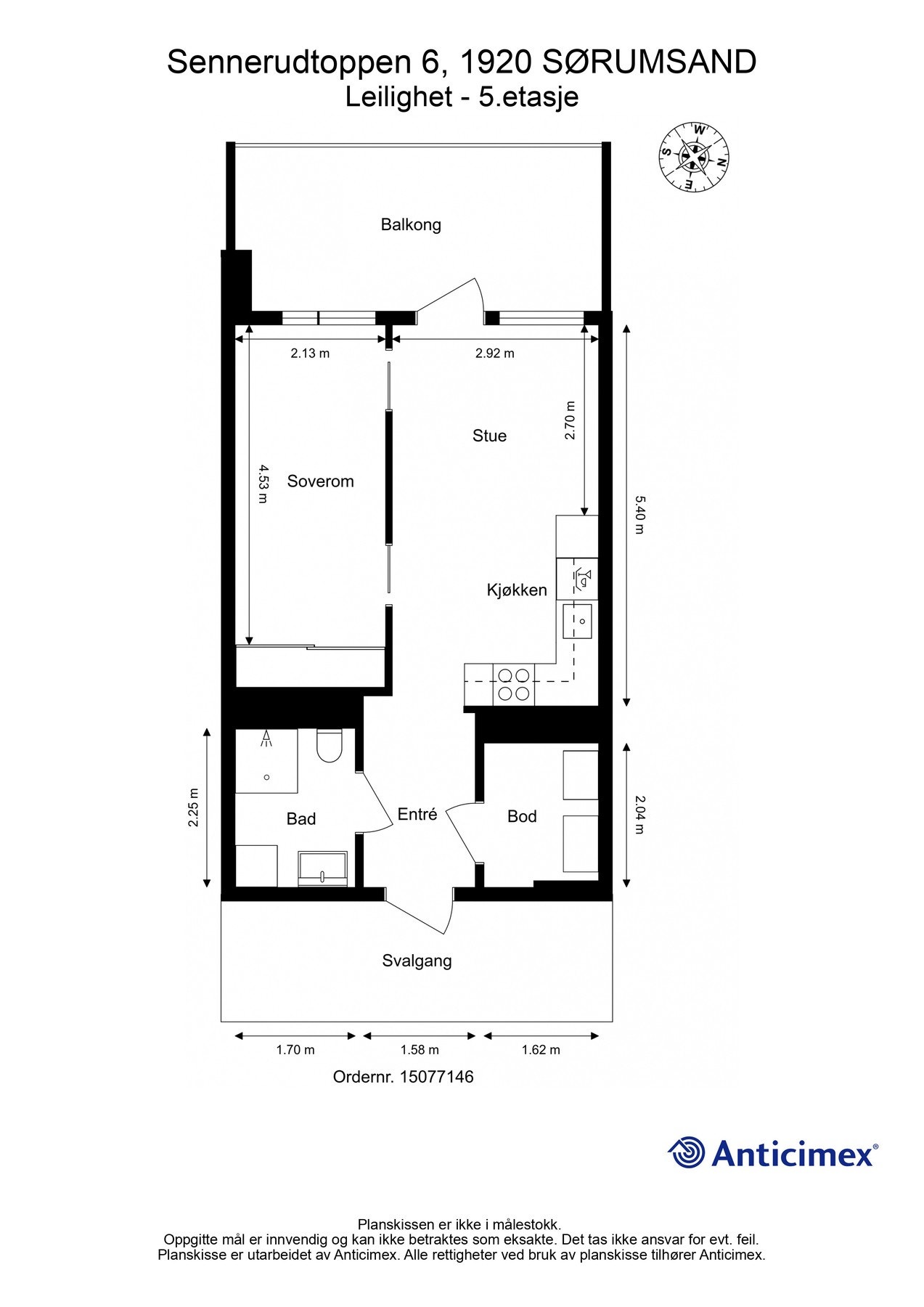
- Internt bruksareal
- 42 m² (BRA-i)
- Bruksareal
- 47 m²
- Eksternt bruksareal
- 5 m² (BRA-e)
- Balkong/Terrasse
- 12 m² (TBA)
- Etasje
- 5
- Byggeår
- 2020
- Rom
- 2
- Tomteareal
- 1 964 m² (eiet)
Fasiliteter
Balkong/Terrasse
Kabel-TV
Heis
Offentlig vann/kloakk
Parkett
Sentralt
Bredbåndstilknytning
Moderne
Rolig
Balansert ventilasjon
Visning
søndag, 11. januar
12:00 – 13:00
For å yte premium rådgivning, har alle våre visninger påmelding. Dette sikrer at megler har god oversikt og tid til å imøtekomme alle interessenter på aller beste måte. Dersom ingen interessenter er påmeldt, kan visningen bli avlyst.
Om boligen
Ellen Celine Heireth v/EIE eiendomsmegling har gleden av å presentere Sennerudtoppen 6!
En moderne og innbydende 2-roms selveier beliggende i byggets 5. etasje. Leiligheten er fra 2020 og passer perfekt både for førstegangskjøperen, for pendleren og for deg som ønsker et trygt og godt utleieobjekt. Boligen byr på en luftig stue-/kjøkkenløsning, et romslig soverom, innvendig bod og en stor balkong på hele 12 m². Her bor du rett ved togstasjonen, med kort vei til både hverdagstilbud og fritidsaktiviteter som tennis, fotball, bueskyting og squash. Samtidig tar toget deg til Oslo S på kun 27 minutter, ideelt for deg som vil kombinere rolige omgivelser med enkel pendling.
Høydepunkter:
En moderne og innbydende 2-roms selveier beliggende i byggets 5. etasje. Leiligheten er fra 2020 og passer perfekt både for førstegangskjøperen, for pendleren og for deg som ønsker et trygt og godt utleieobjekt. Boligen byr på en luftig stue-/kjøkkenløsning, et romslig soverom, innvendig bod og en stor balkong på hele 12 m². Her bor du rett ved togstasjonen, med kort vei til både hverdagstilbud og fritidsaktiviteter som tennis, fotball, bueskyting og squash. Samtidig tar toget deg til Oslo S på kun 27 minutter, ideelt for deg som vil kombinere rolige omgivelser med enkel pendling.
Høydepunkter:
- Gjennomtenkt planløsning og god standard fra 2020
- Stor og flott balkong på 12 m²
- Perfekt som førstegangskjøp eller utleie
- Lave felleskostnader
- Mangler du egenkapital? Boligen kan kjøpes med Finit Deleie.
NB: Knappen for å vise hele beskrivelsen har kun en visuell effekt.
NB: Knappen for å vise hele beskrivelsen har kun en visuell effekt.
Salgsoppgaven beskriver vesentlig og lovpålagt informasjon om eiendommen
Se komplett salgsoppgaveNærområdet
EIE eiendomsmegling Lørenskog
Annonseinformasjon
| FINN-kode | 442152487 |
|---|---|
| Sist endret | 31. des. 2025 18:13 |
| Referanse | 32250274 |
Annonsene kan være mangelfulle i forhold til lovpålagt opplysningsplikt. Før bindende avtale inngås oppfordres interessenter til å innhente komplett informasjon fra meglerforetaket, selger eller utleier.






















