Bildegalleri

Velkommen til disse lekre tomannsboligene på Ælvebruket!

Geithus

Delikat nyoppført tomannsbolig i moderne stil med alt på en flate | Hage | 2 soverom | Gode solforhold | Lav dokavgift

Prisantydning2 890 000 kr
Totalpris
2 901 276 kr
Omkostninger
11 276 kr

Nøkkelinfo

Boligtype
Tomannsbolig
Eieform
Eier (Selveier)
Soverom
2
Bruksareal
55 m²
Etasje
1
Byggeår
2025
Energimerking
B - Rød
Rom
3
Tomteareal
203 m² (eiet)

Les mer om bruksareal her

Fasiliteter

Barnevennlig
Hage
Offentlig vann/kloakk
Turterreng
Balansert ventilasjon

Visning

Ønsker du å delta på visningen ber vi deg melde deg på slik at vi vet at du kommer. Da kan vi bistå alle best mulig og gi deg tiden du trenger på visningen. Kontakt gjerne megler før visning hvis du har spørsmål. Visningen avholdes bare dersom det er påmeldte. Hvis det ikke er oppsatt visningstidspunkt eller tidspunkt ikke passer, kontakt megler. 
Visningspåmelding

Om boligen

Nyoppført tomannsbolig i moderne stil med delikate farge- og materialvalg. 7 av 8 boliger er allerede solgt! Boligen har en god og funksjonell planløsning med åpen stue-/kjøkkenløsning som gir en god romfølelse og store vindusflater som slipper inn mye naturlig lys. Fra stuen er det utgang til egen romslig uteplass/hage med generelt gode solforhold. Bilen parkeres enkelt i gruset gårdsplass.

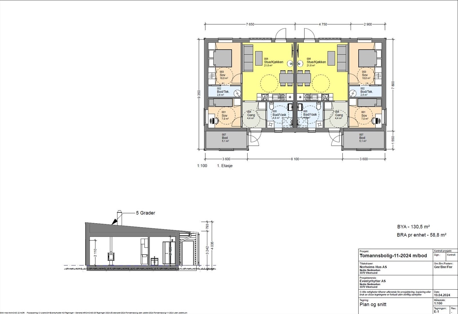
Tomannsboligen har praktisk og funksjonell planløsning med alt på en flate. Boligen er på ca. 55 kvm og inneholder:

1.etg: Entre/gang, 2 soverom, åpen stue-/kjøkkenløsning, bad/vaskerom og bod/teknisk rom. I tillegg til nevnte er boligen utstyrt med en utvendig sportsbod på ca. 5 kvm i forbindelse med inngangspartiet.

Velkommen til visning!

Salgsoppgaven beskriver vesentlig og lovpålagt informasjon om eiendommen

Se komplett salgsoppgave

Nærområdet

Annonseinformasjon

FINN-kode442141401
Sist endret16. des. 2025 11:30
Referanse2870250190

Rapporter annonse

Annonsene kan være mangelfulle i forhold til lovpålagt opplysningsplikt. Før bindende avtale inngås oppfordres interessenter til å innhente komplett informasjon fra meglerforetaket, selger eller utleier.