Bildegalleri

Blakstadheia
Vertikaldelt tomannsbolig med alt på en flate - Flott hage og terrasse med pergola - Nærhet til "alt"!
Prisantydning2 390 000 kr
Nøkkelinfo
- Boligtype
- Tomannsbolig
- Eieform
- Eier (Selveier)
- Soverom
- 2
- Internt bruksareal
- 74 m² (BRA-i)
- Bruksareal
- 74 m²
- Balkong/Terrasse
- 36 m² (TBA)
- Etasje
- 1
- Byggeår
- 2012
- Energimerking
- C - Oransje
- Rom
- 3
- Tomteareal
- 680 m² (eiet)
Fasiliteter
Balkong/Terrasse
Barnevennlig
Bredbåndstilknytning
Garasje/P-plass
Hage
Kjæledyr tillatt
Offentlig vann/kloakk
Parkett
Peis/Ildsted
Rolig
Sentralt
Turterreng
Balansert ventilasjon
Visning
mandag, 29. desember
16:00 – 17:00
For å delta på visning, ber vi om at du melder deg på. Da sikrer vi at du får nødvendig informasjon og at det er satt av tilstrekkelig med tid. Kontakt megler dersom annet tidspunkt ønskes. Husk å lese salgsoppgaven før visningen, så du stiller forberedt. NB. Visning utgår dersom det ikke er noen påmeldte.
Ønsker du kun å bli holdt orientert, kan du fra eiendommens hjemmeside få varsel om solgtpris, eller kontakte megler.
VisningspåmeldingOm boligen
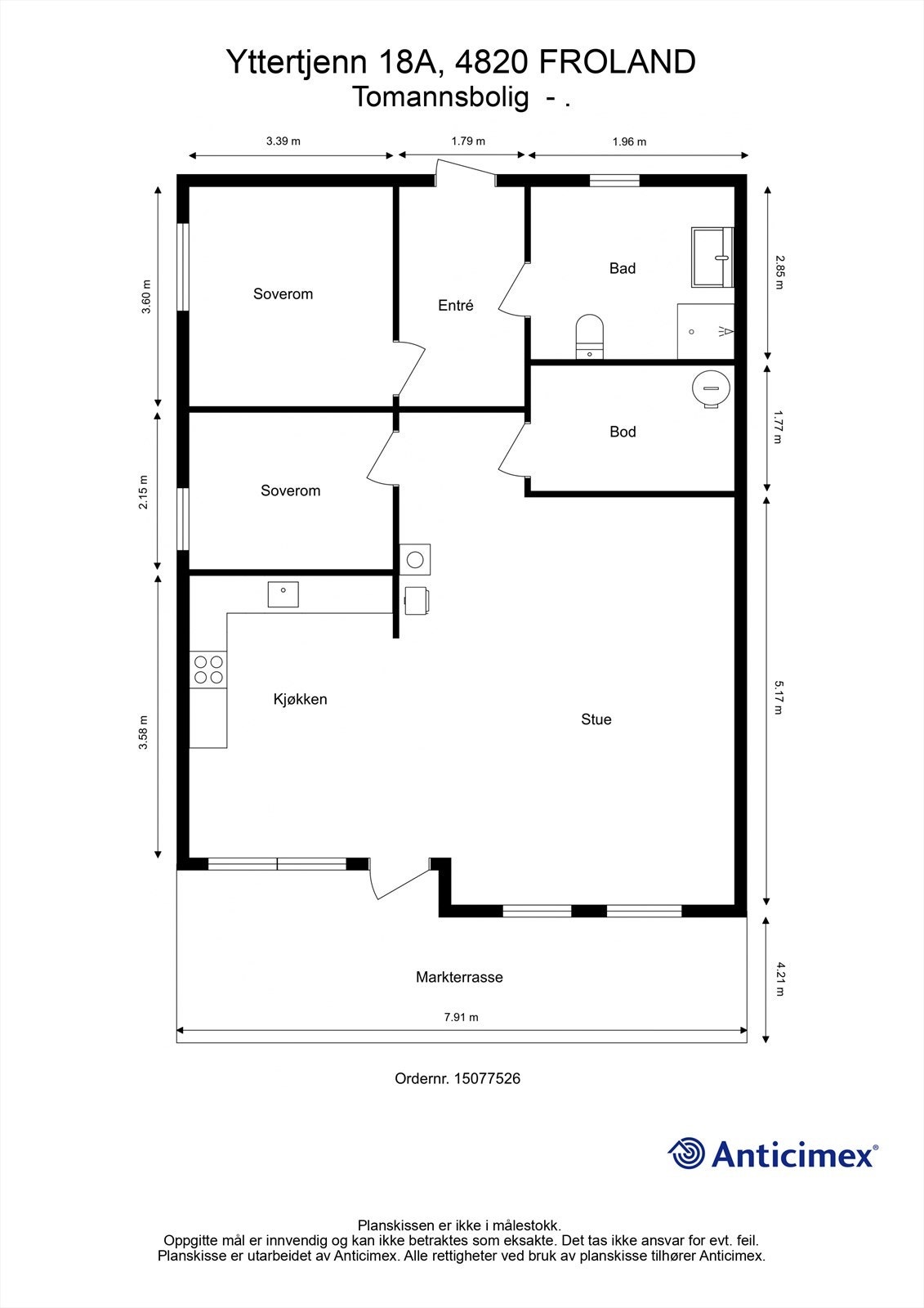
Yttertjenn 18A ligger flott plassert med romslig hage, og stor terrasse på ca. 36m². Boligen har lyse og malte flater, samt fliser i gangen og på badet. Boligen inneholder entré, to soverom, bad/vaskerom, bod og stue/kjøkken i åpen løsning. Det er også en utvendig redskapsbod, terrasse med levegg og pergola, samt hage og biloppstillingsplasser. Boligen ligger meget sentralt til på Blakstadheia med nærhet til skole, turløyper i naturen og ca. 5 minutter unna nærmeste matbutikk. Det tar ca. 7 minutter til Osedalen og ca. 15 minutter til Arendal sentrum fra boligen. Det er også kort gangvei til barnehage og bussholdeplass.
NB: Knappen for å vise hele beskrivelsen har kun en visuell effekt.
NB: Knappen for å vise hele beskrivelsen har kun en visuell effekt.
Salgsoppgaven beskriver vesentlig og lovpålagt informasjon om eiendommen
Se komplett salgsoppgaveNyttige lenker
Nærområdet
Krogsveen Arendal
Velkommen til en enklere boligreise.
Annonseinformasjon
| FINN-kode | 442139106 |
|---|---|
| Sist endret | 18. des. 2025 07:39 |
| Referanse | KR47.25196 |
Annonsene kan være mangelfulle i forhold til lovpålagt opplysningsplikt. Før bindende avtale inngås oppfordres interessenter til å innhente komplett informasjon fra meglerforetaket, selger eller utleier.































