Bildegalleri

Velkommen til nannestadvegen 522!

MAURA / Solheimsfeltet

Nyere sjarmerende 2-roms i 3 etasje, med solrik sørvestvendt balkong og garasjeplass!

Prisantydning2 790 000 kr
Totalpris
2 871 740 kr
Omkostninger
81 740 kr
Felleskost/mnd.
3 155 kr

Nøkkelinfo

Boligtype
Leilighet
Eieform
Eier (Selveier)
Soverom
1
Internt bruksareal
40 m² (BRA-i)
Bruksareal
45 m²
Eksternt bruksareal
5 m² (BRA-e)
Etasje
3
Byggeår
2022
Tomteareal
8 797 m² (eiet)

Les mer om bruksareal her

Fasiliteter

Balkong/Terrasse
Garasje/P-plass
Heis
Ingen gjenboere
Kabel-TV
Bredbåndstilknytning
Balansert ventilasjon
Barnevennlig
Turterreng
Lademulighet

Visning

søndag, 11. januar
13:00 – 14:00
Dersom du ønsker privatvisning er det bare å ta kontakt.
mandag, 12. januar
18:00 – 19:00
Dersom du ønsker privatvisning er det bare å ta kontakt.
Visningspåmelding

Om tomten

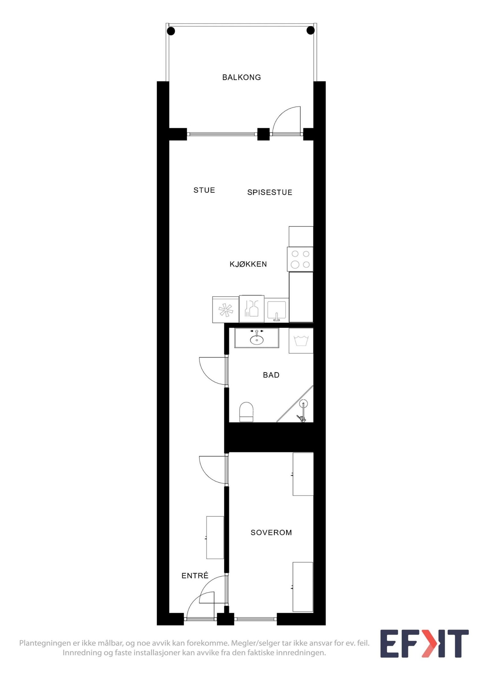
Velkommen til en nyere lys og moderne 2-roms selveierleilighet med høy standard og solrik balkong. Denne moderne og lyse leiligheten er perfekt for førstegangskjøpere, studenter eller en som ønsker en praktisk og stilren bolig med god beliggenhet. Med en solrik vestvendt balkong, egen garasjeplass med opplegg for el lading og en ekstra bod, er dette en bolig som tilbyr både komfort og funksjonalitet.

Boligen består av entré, ett soverom, bad med opplegg for vaskemaskin, stue med åpen kjøkkenløsning, og utgang til sørvestvendt balkong på litt over 8m². Det medfølger også en kjellerbod på 5m², samt garasjeplass med opplegg for el bil lading.

Verdt å merke seg:
Ferdigstilt i 2022 - god standard og lave bokostnader.
Kommunale avgifter, vartmvann og fyring inkl. i felleskostnader.
Gulvvarme på badet.
Garasjeplass klargjort for elbillader.
Kjellerbod på ca. 5 m²
Solrik sørvestvendt balkong på 8 m²
Sentralt - rolig.
Kort vei til Gardermoen (15 min. bil, 20 min. med buss)

Beliggenhet

Leiligheten ligger i et rolig og populært område med nærhet til alt du trenger i hverdagen. Her finner du matbutikker, apotek, bensinstasjon, frisør, tannlege og lege i gåavstand fra leiligheten. Det er bussstopp rett utenfor leiligheten, som enkelt tar deg til Gardermoen eller Jessheim. Skole og barnehager finner du også i gåavstand fra leiligheten.
Noe av det beste med leiligheten, er tilgang på natur med flotte turmuligheter rett utenfor, og ikke minst Nordåsen for skigåing (en av de sikreste stedene for snø på østlandet), og Åslia for slalomkjøring. For den som liker innendørstrening er det også et nytt treningssenter beliggende i første etasje i leilighetskomplekset.
Her har du med andre ord tilgang på alt i umiddelbar nærhet!

Annet

Ved ønske om privatvisning ta kontakt.

Omkostninger

10 900 kr (HELP boligkjøperforsikring (valgfritt))
69 750 kr (Dokumentavgift)
545 kr (Tinglysing av pantedokument)
545 kr (Tinglysing av skjøte)

---

81 740 kr (Omkostninger totalt)

---

2 871 740 kr (Totalpris inkl. omkostninger)

NB: Regnestykket forutsetter at det kun tinglyses én låneobligasjon og at eiendommen selges til prisantydning.

Det tas forbehold om endringer i offentlige og private gebyrer.

Selger er selv ansvarlig for følgende gebyr:

6 570 kr (Eierskiftegebyr)
545 kr (Panterett med urådighet)

Salgsoppgaven beskriver vesentlig og lovpålagt informasjon om eiendommen

Se komplett salgsoppgave

Nærområdet

Annonseinformasjon

FINN-kode442049747
Sist endret01. jan. 2026 09:43

Rapporter annonse

Annonsene kan være mangelfulle i forhold til lovpålagt opplysningsplikt. Før bindende avtale inngås oppfordres interessenter til å innhente komplett informasjon fra meglerforetaket, selger eller utleier.