Bildegalleri

Velkommen til Geitmyrsveien 73F - Presentert av Farzan Hamid Khan!

St.Hanshaugen/Lindern

Lys og stilren 3-roms topp- og hjørneleilighet oppusset i 2020. Solrik balkong m/​ nydelig utsikt. V.v. og fyring inkl.

Prisantydning7 390 000 kr
Totalpris
7 481 389 kr
Omkostninger
14 193 kr
Fellesgjeld
77 196 kr
Felleskost/mnd.
4 725 kr
Fellesformue
22 294 kr

Nøkkelinfo

Boligtype
Leilighet
Eieform
Aksje
Soverom
2
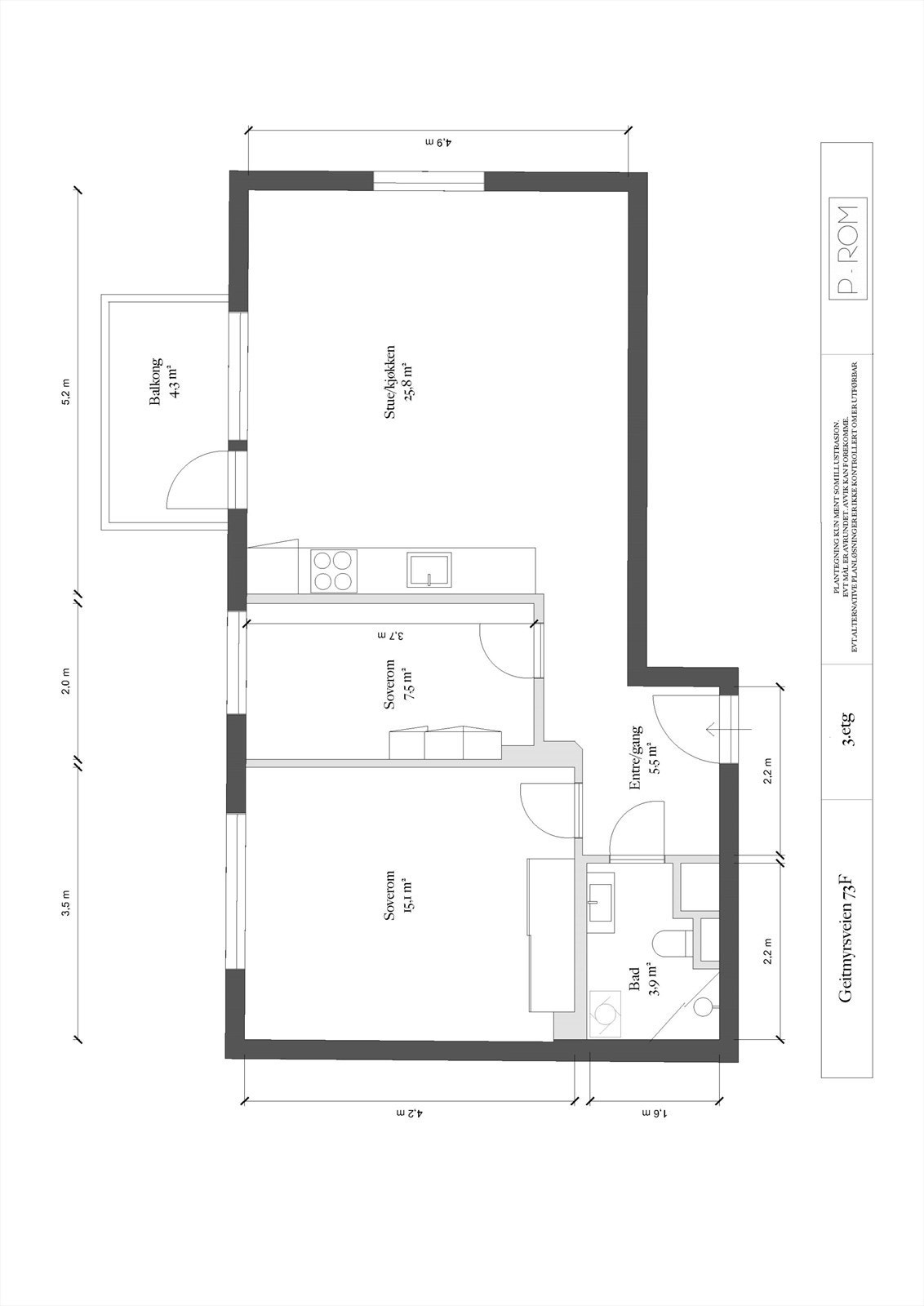
Internt bruksareal
60 m² (BRA-i)
Bruksareal
69 m²
Eksternt bruksareal
9 m² (BRA-e)
Balkong/Terrasse
4 m² (TBA)
Etasje
3
Byggeår
1943
Energimerking
G - Mørkegrønn
Rom
3
Tomteareal
3 467 m² (eiet)

Les mer om bruksareal her

Fasiliteter

Balkong/Terrasse
Bredbåndstilknytning
Fellesvaskeri
Ingen gjenboere
Kabel-TV
Offentlig vann/kloakk
Parkett
Sentralt
Utsikt
Lademulighet

Visning

søndag, 04. januar
15:30 – 16:30
mandag, 05. januar
17:00 – 18:00
Velkommen til visning! Husk å melde deg på ved å trykke på visningspåmelding i våre boligannonser. Ta gjerne kontakt med megler i forkant av visningen dersom du har spørsmål.
Visningspåmelding

Om boligen

Velkommen til denne flotte 3-roms leiligheten perfekt for deg som ønsker en kombinasjon av urban livsstil og rolige omgivelser beliggende på populære St.Hanshaugen/Lindern.

Høydepunkter:
- Solrik balkong med flott utsikt, blant annet mot Grefsenkollen
- Usjenert beliggenhet uten biltrafikk og minimalt innsyn
- Bad og kjøkken fra 2020 med benkeplate i stein
- God takhøyde med downlights i stue og entré
- El-anlegg fra 2020 med Elko-plus
- Varmtvann, fyring, Kabel-TV og internett inkl.
- Mulig å leie garasjeplass etter venteliste
- 1-stavs eikeparkett
- Sykkelparkering og Elbil-lading i bakgården
- To store boder medfølger (kjeller og loft)
- Skreddersydde gardiner fra Luxaflex i begge soverom og stue
- Buss og trikk i nærheten
- Hele leiligheten er nymalt i 2025 i beige toner

Salgsoppgaven beskriver vesentlig og lovpålagt informasjon om eiendommen

Se komplett salgsoppgave

Nærområdet

Annonseinformasjon

FINN-kode442037947
Sist endret27. des. 2025 00:00
Referanse325250218

Rapporter annonse

Annonsene kan være mangelfulle i forhold til lovpålagt opplysningsplikt. Før bindende avtale inngås oppfordres interessenter til å innhente komplett informasjon fra meglerforetaket, selger eller utleier.