Bildegalleri

Bruvoll
Småbruk med tomt på 20 830 m² I Enebolig m/3 soverom I Fjøs, garasje og hagestue I Usjenert med skogen som nærmeste nabo
Prisantydning2 150 000 kr
Nøkkelinfo
- Boligtype
- Gårdsbruk/Småbruk
- Eieform
- Eier (Selveier)
- Soverom
- 3
- Internt bruksareal
- 104 m² (BRA-i)
- Bruksareal
- 142 m²
- Eksternt bruksareal
- 38 m² (BRA-e)
- Balkong/Terrasse
- 49 m² (TBA)
- Byggeår
- 1938
- Energimerking
- G - Oransje
- Rom
- 4
- Tomteareal
- 20 830 m² (eiet)
Om boligen
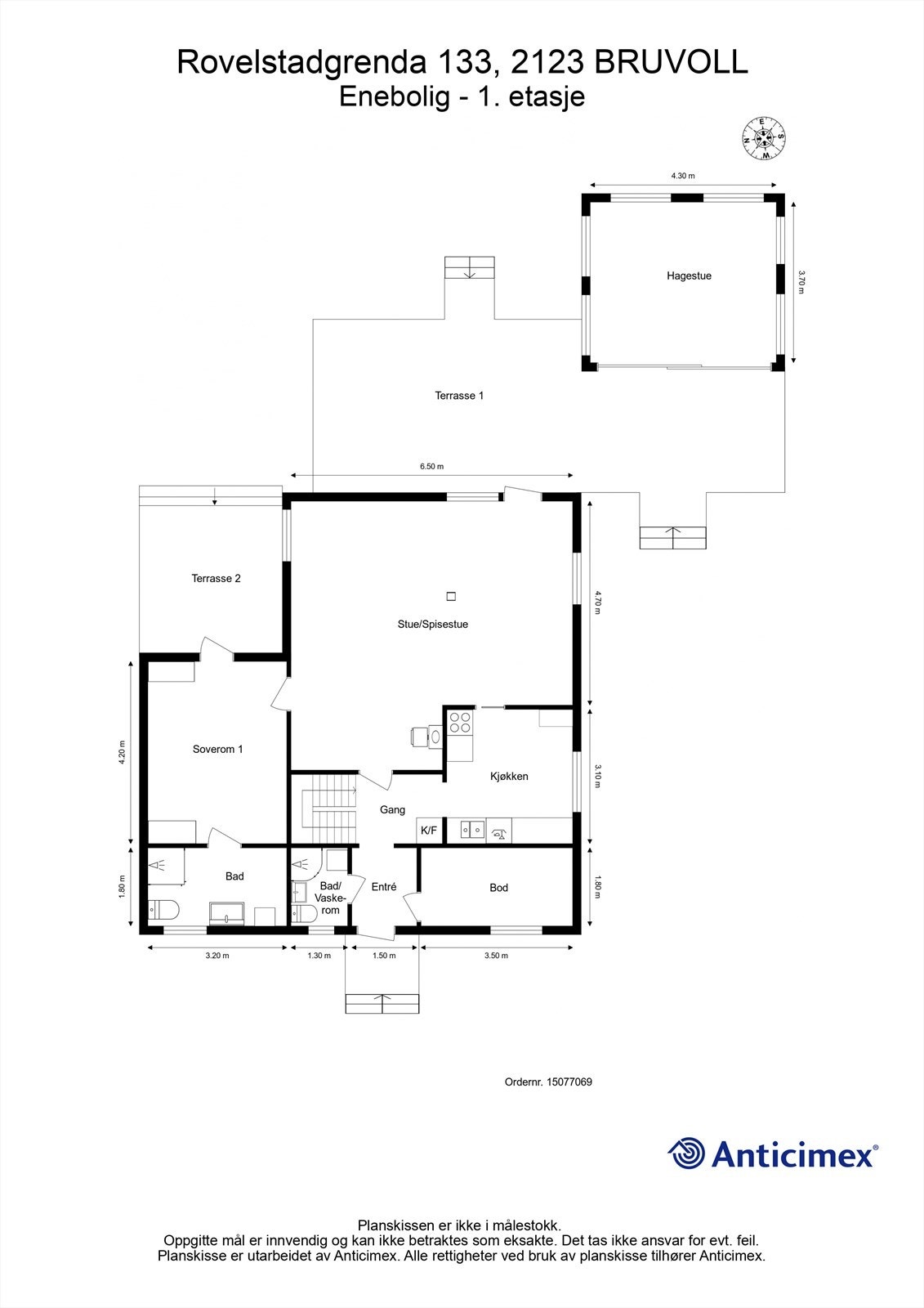
Velkommen til Rovelstadgrenda 133! Dette er en spennende eiendom med stor tomt på gode 20 830 m² med enebolig på 104m² BRA-i, garasje, fjøs og hagestue. Eneboligen har en praktisk planløsning med 3 gode soverom, 2 bad, hvorav det ene benyttes som kombinert vaskerom. Videre er det separat kjøkken, romslig stue og en hagestue. Det er to terrasser, som utgjør gode 49m² til sammen. Eiendommen byr på god bolteplass med et uteområde som byr på rike innhøstingsmuligheter og flott natur.
Høydepunkter:
- Stor tomt med gode innhøstingsmuligheter
- Småbruk beliggende ca. 1 t fra Lillestrøm og 1,5 t fra Oslo
- Kort kjørevei til butikk, barnehager og skoler
- Naturskjønne omgivelser med skogen som nærmeste nabo
- Parkering i garasje, eller biloppstillingsplasser på egen tomt
Høydepunkter:
- Stor tomt med gode innhøstingsmuligheter
- Småbruk beliggende ca. 1 t fra Lillestrøm og 1,5 t fra Oslo
- Kort kjørevei til butikk, barnehager og skoler
- Naturskjønne omgivelser med skogen som nærmeste nabo
- Parkering i garasje, eller biloppstillingsplasser på egen tomt
NB: Knappen for å vise hele beskrivelsen har kun en visuell effekt.
NB: Knappen for å vise hele beskrivelsen har kun en visuell effekt.
Salgsoppgaven beskriver vesentlig og lovpålagt informasjon om eiendommen
Se komplett salgsoppgaveNyttige lenker
Nærområdet
Krogsveen Skedsmokorset
Verdien av en god megler.
Annonseinformasjon
| FINN-kode | 442027120 |
|---|---|
| Sist endret | 11. feb. 2026 15:17 |
| Referanse | KR59.25145 |
Annonsene kan være mangelfulle i forhold til lovpålagt opplysningsplikt. Før bindende avtale inngås oppfordres interessenter til å innhente komplett informasjon fra meglerforetaket, selger eller utleier.












































