Bildegalleri

- Foto: Scott Kvitberg
Velkommen til Risløkka
Lys og innbydende bolig over to plan med peis, balkong og to parkeringsplasser. Egen hybel med separat inngang.
Prisantydning8 300 000 kr
Nøkkelinfo
- Boligtype
- Leilighet
- Eieform
- Eier (Selveier)
- Soverom
- 3
- Internt bruksareal
- 129 m² (BRA-i)
- Bruksareal
- 131 m²
- Eksternt bruksareal
- 2 m² (BRA-e)
- Balkong/Terrasse
- 12 m² (TBA)
- Byggeår
- 1950
- Energimerking
- F - Oransje
- Rom
- 5
- Tomteareal
- 640 m² (eiet)
Fasiliteter
Barnevennlig
Balkong/Terrasse
Garasje/P-plass
Parkett
Peis/Ildsted
Moderne
Rolig
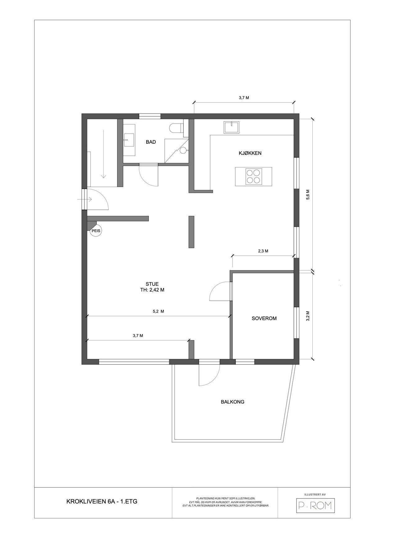
Om boligen
Lys og luftig bolig med attraktiv beliggenhet på barnevennlige Risløkka. I Krokliveien 6A kan du nyte morgenkaffen på balkongen med utsikt mot frodige, velstelte hager. Her bor du sentralt med kort vei til butikker, buss og T-bane, samtidig som Bjerkedalen park og Lillomarka ligger like i nærheten.
Boligen er gjennomgående over to etasjer og byr på en åpen og funksjonell planløsning med gode innredningsmuligheter. Store vindusflater gir rikelig med naturlig lys og en innbydende atmosfære. Hoveddelen inneholder romslig stue med peis, spisestue tilknyttet kjøkken, to flislagte bad, to soverom samt et innredet rom/bod. I tillegg medfølger en praktisk 2-roms hybel med skattefri leieinntekt. Videre er det to biloppstillingsplasser, én med elbillader.
Boligen er gjennomgående over to etasjer og byr på en åpen og funksjonell planløsning med gode innredningsmuligheter. Store vindusflater gir rikelig med naturlig lys og en innbydende atmosfære. Hoveddelen inneholder romslig stue med peis, spisestue tilknyttet kjøkken, to flislagte bad, to soverom samt et innredet rom/bod. I tillegg medfølger en praktisk 2-roms hybel med skattefri leieinntekt. Videre er det to biloppstillingsplasser, én med elbillader.
NB: Knappen for å vise hele beskrivelsen har kun en visuell effekt.
NB: Knappen for å vise hele beskrivelsen har kun en visuell effekt.
Salgsoppgaven beskriver vesentlig og lovpålagt informasjon om eiendommen
Se komplett salgsoppgaveNyttige lenker
Nærområdet
Privatmegleren Premium
Kun det beste på dine vegne
Annonseinformasjon
| FINN-kode | 442018741 |
|---|---|
| Sist endret | 03. feb. 2026 11:37 |
| Referanse | 321251004 |
Annonsene kan være mangelfulle i forhold til lovpålagt opplysningsplikt. Før bindende avtale inngås oppfordres interessenter til å innhente komplett informasjon fra meglerforetaket, selger eller utleier.
































