Bildegalleri

Nordvik ved Morten S. Hannestad har gleden av å presentere Bjerregaards gate 29C. Foto: Trond Walsø.
ST. HANSHAUGEN
Pen, gjennomgående og velholdt 3-roms - Kjøkken fra 2015 - Akto oppvarming inkl - Felles takterrasse og idyllisk bakgård
Prisantydning8 750 000 kr
Nøkkelinfo
- Boligtype
- Leilighet
- Eieform
- Eier (Selveier)
- Soverom
- 2
- Internt bruksareal
- 98 m² (BRA-i)
- Bruksareal
- 107 m²
- Eksternt bruksareal
- 9 m² (BRA-e)
- Etasje
- 3
- Byggeår
- 1932
- Energimerking
- G - Mørkegrønn
- Rom
- 3
- Tomteareal
- 4 209 m² (eiet)
Fasiliteter
Barnevennlig
Bredbåndstilknytning
Ingen gjenboere
Kabel-TV
Offentlig vann/kloakk
Parkett
Peis/Ildsted
Rolig
Sentralt
Utsikt
Turterreng
Visning
søndag, 11. januar
12:00 – 13:00
mandag, 12. januar
18:00 – 18:45
Alle våre visninger har påmelding. På denne måten sikrer vi at megler har god oversikt og tid til å imøtekomme alle interessenter. Meld deg på visning ved å trykke på lenken visningspåmelding.
VisningspåmeldingOm boligen
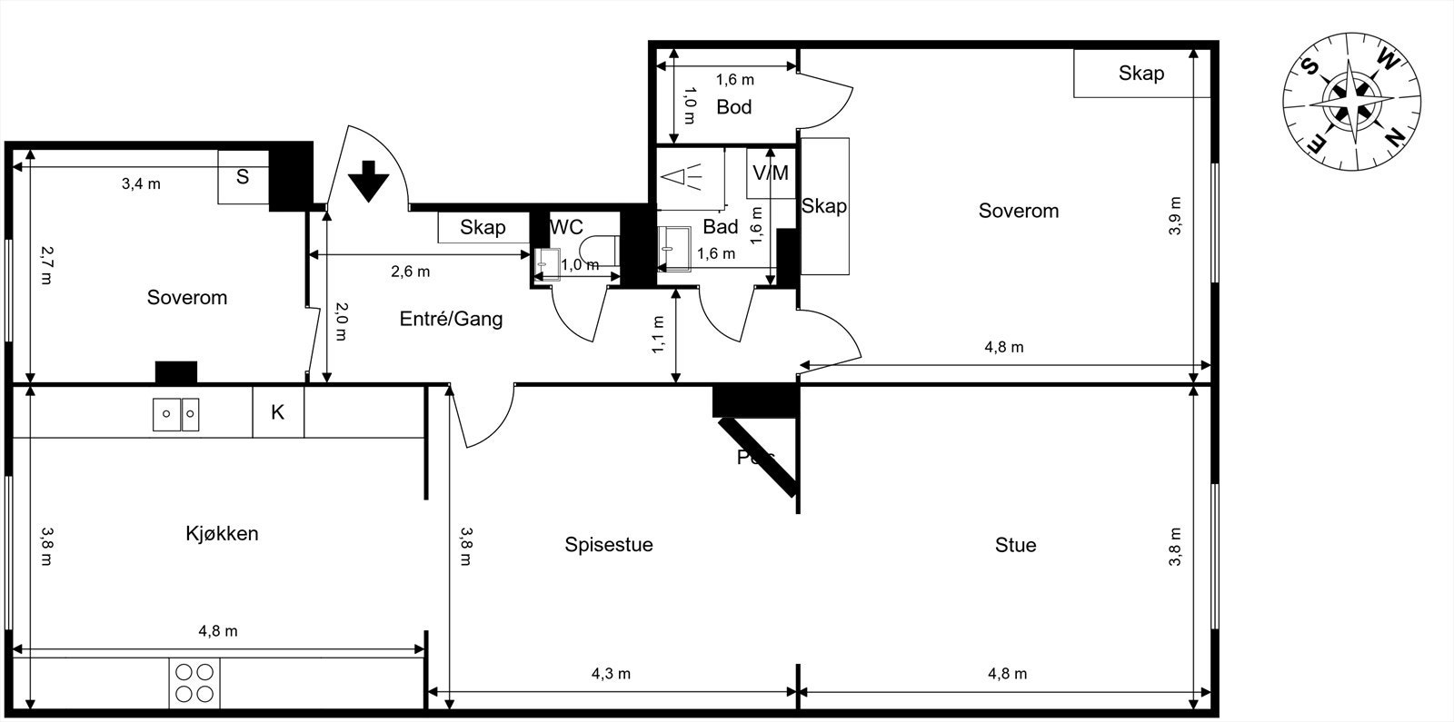
Lys, pen og velholdt 3-roms selveier med sentral beliggenhet. Leiligheten har en innholdsrik og fleksibel planløsning med store rom og naturlig arealfordeling. Her har du entré, kjøkken, stor stue, spisestue, bad, separat toalett og to gode soverom.
Leiligheten ligger skjermet til i en vakker funkisgård fra 1929 med tilbaketrukket beliggenhet midt på St. Hanshaugen. Det er kort vei til den populære St. Hanshaugen-parken, dagligvarehandel og offentlig kommunikasjon.
Leiligheten ligger skjermet til i en vakker funkisgård fra 1929 med tilbaketrukket beliggenhet midt på St. Hanshaugen. Det er kort vei til den populære St. Hanshaugen-parken, dagligvarehandel og offentlig kommunikasjon.
- HTH-kjøkken fra 2015
- Gjennomgående planløsning, store vindusflater og god takhøyde på 2,65 meter
- Peis
- Lagringsplass i innvendig bod og to eksterne boder
- Akto. oppvarming og internett inkludert
- To felles takterrasser med gode sol- og utsiktsforhold
- Idyllisk bakgård med sittegrupper og beplantning
NB: Knappen for å vise hele beskrivelsen har kun en visuell effekt.
NB: Knappen for å vise hele beskrivelsen har kun en visuell effekt.
Salgsoppgaven beskriver vesentlig og lovpålagt informasjon om eiendommen
Se komplett salgsoppgaveNyttige lenker
Nærområdet
Nordvik St.Hanshaugen
Annonseinformasjon
| FINN-kode | 442004682 |
|---|---|
| Sist endret | 07. jan. 2026 14:27 |
| Referanse | 5-0450/25 |
Annonsene kan være mangelfulle i forhold til lovpålagt opplysningsplikt. Før bindende avtale inngås oppfordres interessenter til å innhente komplett informasjon fra meglerforetaket, selger eller utleier.







































